Szeged, Eladó Társasházi lakás (#178352)
Szeged belvárosában, a Novotel szomszédságában – egy darabka történelem várja új tulajdonosát!
Az Openhouse Szeged Ingatlaniroda kínálatában eladó a #178352 hivatkozási számú szegedi társasházi lakás.
Szeged belvárosában, a Novotel szomszédságában – egy darabka történelem várja új tulajdonosát!
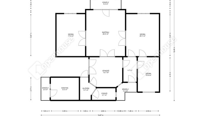
Eladásra kínálunk egy felújítandó, 112 m²-es nagypolgári lakást a belváros szívében, Sebestyén Endre szegedi tervező által megálmodott, különleges hangulatú ház első emeletén.
A háromszintes épület elegáns megjelenésével és hangulatos előkertjével a régi idők polgári báját idézi. A lakásban a nagypolgári terek, a három erkély, valamint a nappali + 3 különnyíló szoba biztosítja a tágas, levegős életteret.
A külön konyha és étkező praktikus elrendezést nyújt, a cserépkályha és a konvektoros fűtés pedig autentikus hangulatot ad. A nagy erkélyről a ház előkertjére nyíló kilátás minden évszakban élményt nyújt.
A lakóközösség igényes és összetartó, a környék pedig egyszerre csendes és központi:
- a városközpont pár perces sétával elérhető,
- a Tisza partja mindössze 200 méterre található,
- a tömegközlekedés pedig kiváló.
Ez a lakás nem csupán ingatlan, hanem Szeged múltjának egy darabja – egy hely, ahol a patina és a lehetőségek találkoznak.
Szeressen bele a régi idők eleganciájába, és varázsolja újra álmai otthonává ezt a különleges belvárosi lakást!
Érdeklődjön még ma, hogy ne maradjon le erről az egyedülálló lehetőségről!
Ha felkeltette érdeklődését ez az eladó szegedi társasházi lakás, vagy bármely más társasházi lakás és bővebb információt szeretne, keressen bizalommal.
Hivatkozási szám: #178352
Az Openhouse Szeged Ingatlaniroda tagjaként várom Önt az országos hálózatunk teljes kínálatával.
A társasházi lakás vásárláshoz hitelt igényelne? Ingyenes hitelközvetítéssel segít Önnek bankfüggetlen hitelszakértőnk.
További szolgáltatásainkkal (pl. értékbecslés, energetikai tanúsítvány, jogi háttér) is segítjük Önt a vásárlásban.
Az otthon érték. Az ingatlan üzlet.
Alaprajz










Magyar
Angol
Francia 
