Hajdúsámson, Eladó Telek (#178316)
Hajdúsámson -Sámson kerti épitési telek eladó
Az Openhouse Debrecen Hadházi úti Ingatlaniroda kínálatában eladó a #178316 hivatkozási számú hajdúsámsoni telek.
Hajdúsámsonban építési telek eladó!
Eladásra kínálunk egy sarki elhelyezkedésű, LF-5-ös falusias lakóövezetbe sorolt, művelési ág alól kivett építési telket.
- A telek1050 nm amely 50 méteres utcafronttal rendelkezik, így ikerház vagy sorház építésére is kiválóan alkalmas, akár lakásonként dupla garázzsal.
- A telekalakítás, megosztás és az utca leválasztása már megtörtént, így azonnal megkezdhető a kivitelezés.
- A beépíthetőség 30%, ami lehetőséget ad egy tágas, modern lakóingatlan kialakítására.
- A villany a telek előtt elérhető, a gáz az utcában található, míg a víz és csatorna közművek kiépítése folyamatban van.
- Az utca jelenleg fejlesztés alatt áll, ami tovább növeli az ingatlan jövőbeli értékét.
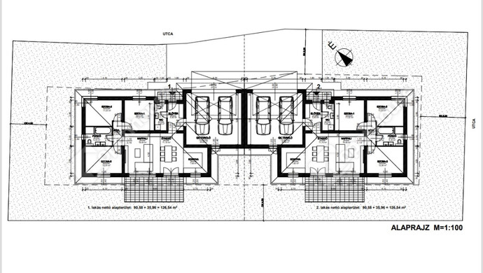
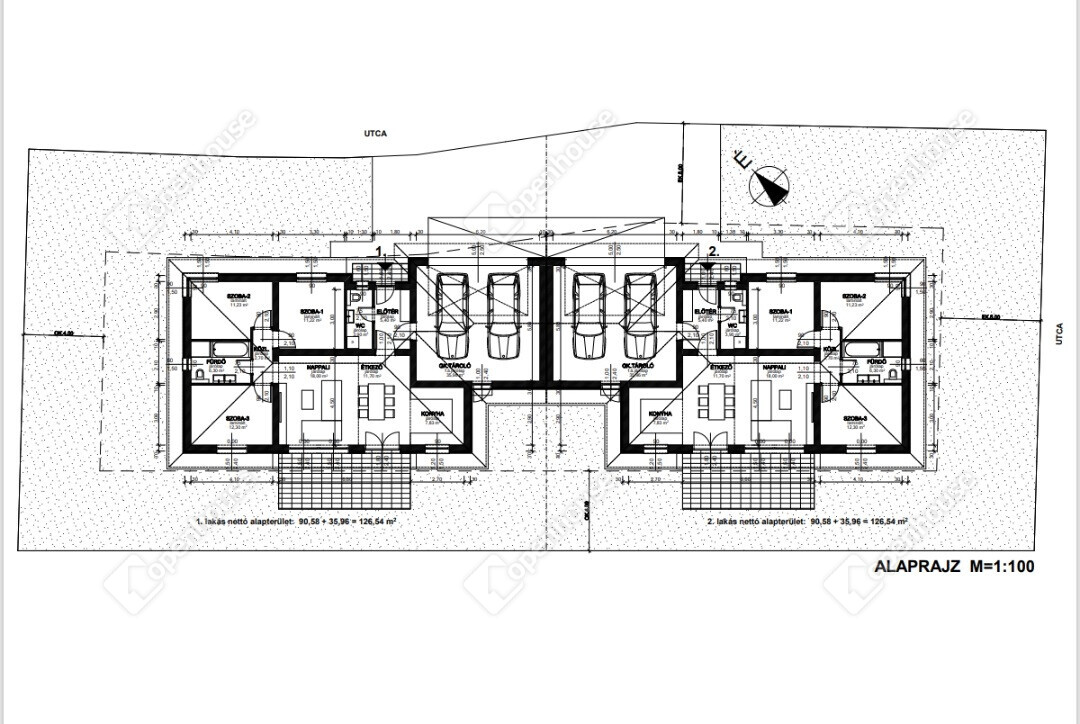
- Előzetes látványtervek és alaprajzok már rendelkezésre állnak, így a tervezés és engedélyeztetés is gyorsabban elindítható.
- A telek per-, teher- és igénymentes, valamint rendezett tulajdoni viszonyokkal rendelkezik.
- Az ingatlan azonnal birtokba vehető, így nem szükséges hosszú várakozási idővel számolni.
- Kiváló finanszírozási lehetőségek állnak rendelkezésre: akár 50 millió forint CSOK Plusz, valamint 11 millió forint babaváró támogatás is igényelhető.
Ez a telek ideális választás lehet befektetőknek, építkezni vágyó családoknak, vagy kivitelezőknek, akik környéken szeretnének értékálló ingatlant létrehozni.
Ha felkeltette érdeklődését ez az eladó hajdúsámsoni telek, vagy bármely más telek és bővebb információt szeretne, keressen bizalommal.
Hivatkozási szám: #178316
Az Openhouse Debrecen Hadházi úti Ingatlaniroda tagjaként várom Önt az országos hálózatunk teljes kínálatával.
A telek vásárláshoz hitelt igényelne? Ingyenes hitelközvetítéssel segít Önnek bankfüggetlen hitelszakértőnk.
További szolgáltatásainkkal (pl. értékbecslés, energetikai tanúsítvány, jogi háttér) is segítjük Önt a vásárlásban.
Az otthon érték. Az ingatlan üzlet.
Alaprajz





Magyar 
