Zalaegerszeg, Eladó Zárt kert (#178199)
Lakható zártkerti ingatlan.
Az Openhouse Zalaegerszeg Ingatlaniroda kínálatában eladó a #178199 hivatkozási számú zalaegerszegi zárt kert.
Felújított, zártkerti ingatlan (művelési ágból kivett) eladó Zalaegerszeg kedvelt részén, Egerszeghegyen.
Irányár: 22 500 000 Ft
Ha olyan otthont keres, ahová csak be kell költözni, akkor megtalálta.
Ez a tégla építésű, cseréptetős, teljesen felújított zártkerti ingatlan minden részletében megújult .
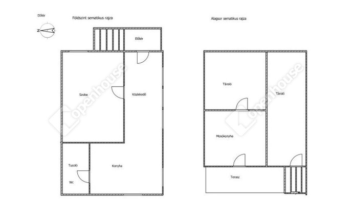
Az ingatlan egy földszinti és egy alagsori részből áll.
Főbb jellemzők:
-
Összközműves, minden közmű a házban, mely a tulajdonos kényelmét szolgálja
-
Fizetés után azonnal költözhető.
-
Teljes műszaki felújítás: új víz-, villany- és gázvezetékek, H tarifa a gazdaságosabb működésért
-
Új nyílászárók, épített zuhany
-
Megújult tetőszerkezet és eresz
-
Száraz, rendezett ház, új hideg-meleg burkolatokkal
-
Az alagsorban praktikus mosókonyha és két tároló került kialakításra
Ez a ház ideális választás lehet állandó lakhatásra, nyaralónak vagy befektetésnek is
Ne maradjon le róla – hívjon, és nézze meg személyesen, milyen jó érzés belépni egy igényesen felújított, barátságos hangulatú otthonba!
Segítek az álmai megvalósításába – hívjon, és nézzük meg személyesen!
Balaskóné Goldfinger Lívia
+36 30 533 5234
livia.balasko@oh.hu
Ha felkeltette érdeklődését ez az eladó zalaegerszegi zárt kert, vagy bármely más zárt kert és bővebb információt szeretne, keressen bizalommal.
Hivatkozási szám: #178199
Az Openhouse Zalaegerszeg Ingatlaniroda tagjaként várom Önt az országos hálózatunk teljes kínálatával.
A zárt kert vásárláshoz hitelt igényelne? Ingyenes hitelközvetítéssel segít Önnek bankfüggetlen hitelszakértőnk.
További szolgáltatásainkkal (pl. értékbecslés, energetikai tanúsítvány, jogi háttér) is segítjük Önt a vásárlásban.
Az otthon érték. Az ingatlan üzlet.
Helyiségek
| Helyiség | Alapterület | Padlóburkolat |
|---|---|---|
| Szoba | 10.00 m2 | Laminált padló |
| Konyha | 3.10 m2 | Műpadló |
| Fürdő | 2.00 m2 | Járólap |
| Közlekedő | 5.00 m2 | Laminált padló |
| Terasz | 7.00 m2 | Műpadló |
| Tároló | 7.00 m2 | Műpadló |
| Mosókonyha | 5.00 m2 | Műpadló |
| Tároló | 6.50 m2 | Műpadló |
Alaprajz




















Magyar 
