Debrecen, Eladó Családi ház (#178082)
Biztonságos környezet, zárt lakópark.
Az Openhouse Debrecen Hadházi úti Ingatlaniroda kínálatában eladó a #178082 hivatkozási számú debreceni családi ház.
Debrecen Alsójózsán, természetközeli pihenőövezetben új építésű láncház eladó!
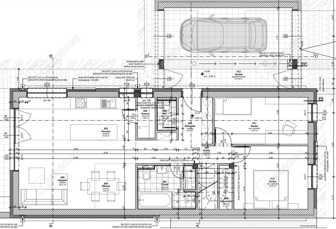
Az ház nettó lakóterülete 165 nm, tartozik hozzá egy 19 nm -es terasz és egy 27 nm -es garázs
- A vételár 142 762 000.- + 5 % ÁFA
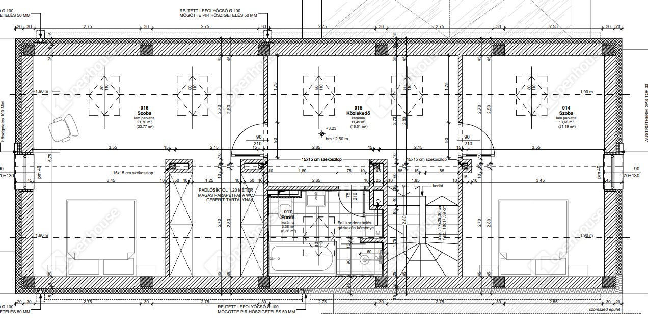
- Az ház tetőteres kialakítású, láncház jelleggel épült.
- A ház földszintjén található a nappali-konyha-étkező, a konyhából egy kis kamra is nyílik.
- Az előszobából nyílik a WC és a fürdőszoba, és egy kis közlekedőn keresztül közelíthető meg a két külön nyíló szoba.
- Az emeleten található egy impozáns, 21 nm -es szoba gardróbbal, egy nappali jellegű előtér, egy 13 nm - es szoba, és egy fürdőszoba kádas és zuhanyzós kialakítással.
- A nappalihoz egy 19 nm -es terasz kapcsolódik.
- A házhoz tartozik egy 27 nm - es elektromos kapuval felszerelt garázs.
Az ár tartalmazza:
- Telekrész
- Ház
- Víz-levegő hőszivattyú
- Napelem előkészítés
- A hidegburkolat bruttó 6 000.- / nm árig a melegburkolat bruttó 5 000.- / nm árig, a szaniterek munkadíj költségét (anyagot nem)
- Utcafronti kerítést
A lakóterületet a hatalmas zöldfelületek, a jó megközelíthetőség jellemzi.
Minden csak egy karnyújtásnyira: nagyobb bevásárlóközpont, kisebb üzletek, piac
Kiépített kerékpárút a lakópark mellett húzódik,
Itt minden korosztály megtalálja a számár ideális otthont.
A területen további fejlesztések vannak tervben: vendégparkoló, játszótér, az erdőben pihenő övezet kialakítás.
Ha felkeltette érdeklődését ez az eladó debreceni családi ház, vagy bármely más családi ház és bővebb információt szeretne, keressen bizalommal.
Hivatkozási szám: #178082
Az Openhouse Debrecen Hadházi úti Ingatlaniroda tagjaként várom Önt az országos hálózatunk teljes kínálatával.
A családi ház vásárláshoz hitelt igényelne? Ingyenes hitelközvetítéssel segít Önnek bankfüggetlen hitelszakértőnk.
További szolgáltatásainkkal (pl. értékbecslés, energetikai tanúsítvány, jogi háttér) is segítjük Önt a vásárlásban.
Az otthon érték. Az ingatlan üzlet.
Helyiségek
| Helyiség | Alapterület | Padlóburkolat |
|---|---|---|
| Nappali | 16.37 m2 | Laminált padló |
| Étkező | 4.80 m2 | Laminált padló |
| Konyha | 13.20 m2 | Járólap |
| Kamra | 1.90 m2 | Járólap |
| Fürdő | 6.52 m2 | Járólap |
| WC | 1.55 m2 | Járólap |
| Előszoba | 8.44 m2 | Járólap |
| Előtér | 1.39 m2 | Járólap |
| Szoba | 11.52 m2 | Laminált padló |
| Szoba | 12.35 m2 | Laminált padló |
| Szoba | 33.77 m2 | Laminált padló |
| Szoba | 32.19 m2 | Laminált padló |
| Előtér | 16.51 m2 | Járólap |
| Fürdő | 6.36 m2 | Járólap |
| Terasz | 19.00 m2 | Kőburkolat |
Alaprajz








Magyar 
