Sopron, Eladó Sorház (#178061)
Sopronban két generációs lakóház eladó
Az Openhouse Sopron Ingatlaniroda kínálatában eladó a #178061 hivatkozási számú soproni sorház.
Tágas, kétgenerációs családi sorház Sopronban – két utcáról megközelíthető, igazi családi otthon!
Sopron egyik kedvelt, nyugodt és rendezett környékén kínáljuk eladásra ezt a két önálló lakrésszel rendelkező lakóházat, amely ideális választás nagyobb családoknak vagy többgenerációs együttélésre.
Az ingatlan 397 m²-es telken helyezkedik el, két utcáról is megközelíthető, ami nemcsak kényelmet, hanem értékes lehetőséget is jelent a jövőre nézve.
A két szinten összesen 195 m² lakótér tágas és jól átgondolt elrendezésű: nappali és 4 külön nyíló szoba biztosítja a család minden tagjának a saját teret.
A ház teljesen alápincézett: a kb. 100 m²-es alsó szinten garázs, műhely, tárolók és kazánház kapott helyet – minden adott egy praktikus, kényelmes otthonhoz.
Az épület átlagos állapotú, azonnal költözhető, ugyanakkor egy kis modernizálással igazi, barátságos és korszerű családi fészekké alakítható.
A környék csendes, biztonságos, a közelben iskola, bolt és tömegközlekedés is megtalálható.
Főbb jellemzők:
-
Sopron, kedvelt családi sorházas környezet
-
397 m² telek
-
195 m² lakótér, két szinten
-
Nappali + 4 szoba
-
100 m² pince garázzsal, műhellyel, tárolóval, kazánházzal
-
Két utcáról megközelíthető
-
Két önálló lakrész – többgenerációs együttélésre is ideális
-
Átlagos állapot, azonnal költözhető
-
Modernizálás után kiváló családi otthon
Ez az ingatlan tökéletes választás azoknak, akik nyugalmat, tágas tereket és fejlődési lehetőséget keresnek Sopron egyik barátságos környékén.
Egy ház, ahol minden adott ahhoz, hogy igazi otthont teremtsen a családnak.
Ha felkeltette érdeklődését ez az eladó soproni sorház, vagy bármely más sorház és bővebb információt szeretne, keressen bizalommal.
Hivatkozási szám: #178061
Az Openhouse Sopron Ingatlaniroda tagjaként várom Önt az országos hálózatunk teljes kínálatával.
A sorház vásárláshoz hitelt igényelne? Ingyenes hitelközvetítéssel segít Önnek bankfüggetlen hitelszakértőnk.
További szolgáltatásainkkal (pl. értékbecslés, energetikai tanúsítvány, jogi háttér) is segítjük Önt a vásárlásban.
Az otthon érték. Az ingatlan üzlet.
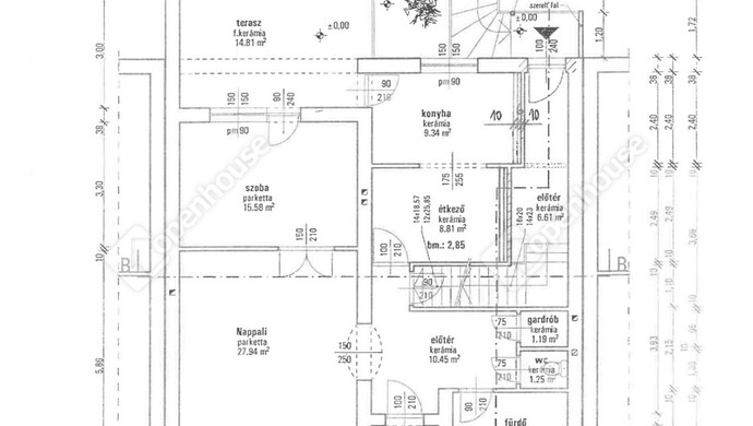
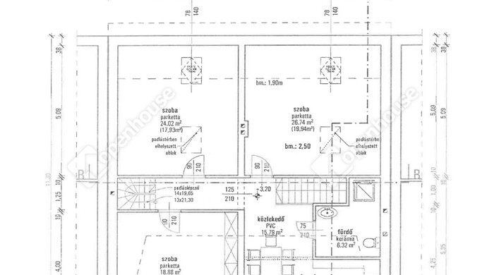
Helyiségek
| Helyiség | Alapterület | Padlóburkolat |
|---|---|---|
| Szélfogó | 2.82 m2 | Járólap |
| Előtér | 10.45 m2 | Járólap |
| Fürdő | 6.30 m2 | Járólap |
| WC | 1.25 m2 | Járólap |
| Spájz | 1.19 m2 | Járólap |
| Nappali | 27.94 m2 | Faparketta |
| Szoba | 15.58 m2 | Faparketta |
| Étkező | 8.81 m2 | Járólap |
| Konyha | 9.34 m2 | Járólap |
| Télikert | 14.81 m2 | Járólap |
| Lépcsőház | 6.61 m2 | Járólap |
| Közlekedő | 15.78 m2 | Laminált padló |
| Konyha | 10.86 m2 | Járólap |
| Fürdő | 6.32 m2 | Járólap |
| Szoba | 18.14 m2 | Laminált padló |
| Szoba | 17.93 m2 | Laminált padló |
| Szoba | 19.94 m2 | Laminált padló |
| Garázs | 25.00 m2 | Beton |
| Barkácsműhely | 25.00 m2 | Beton |
| Kazánház | 25.00 m2 | Beton |
| Tároló | 25.00 m2 | Beton |
Alaprajz



























Magyar
Angol
Német 
