Debrecen, Eladó Apartman (#178043)
„Befektetés, amely minden nap értéket termel.”
Az Openhouse Debrecen Hadházi úti Ingatlaniroda kínálatában eladó a #178043 hivatkozási számú debreceni apartman.
Eladó apartmanház Debrecenben, a Péterfia utcán!
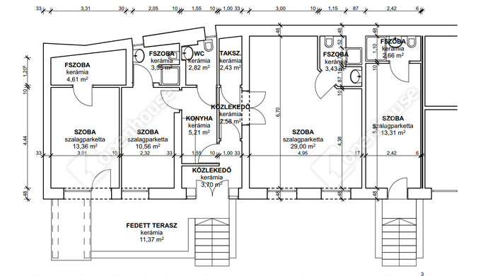
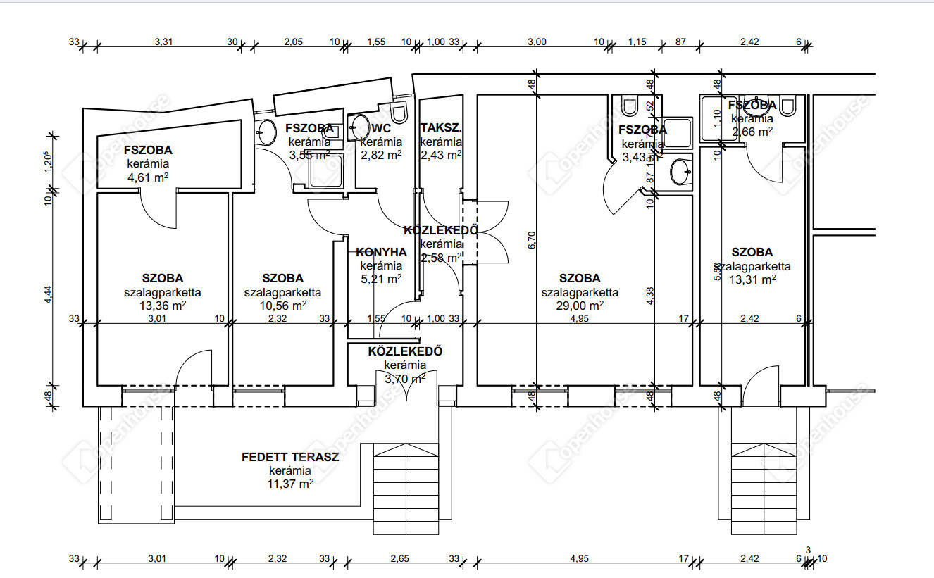
• Az ingatlan egy közel 100 m²-es, polgári jellegű földszintes ház, amely az 1900-as évek elején épült.
• A házban négy külön bejáratú, működő apartman található, amelyek jelenleg is stabil bevételt termelnek.
• A szobák mérete 10 és 25 m² közötti, így mindegyik jól kihasználható vendégforgalomra.
• A lakótérhez egy 11 m²-es fedett terasz tartozik, amely kényelmes közösségi vagy pihenőteret biztosít.
• Az ingatlan alatt egy közel 100 m²-es, száraz szuterén található, amely kiválóan alkalmas tárolásra, mosókonyhának vagy további fejlesztésre.
• A fűtést gázcirkó rendszer biztosítja, így az apartmanok gazdaságosan üzemeltethetők.
• Az apartmanok mindegyike klímával felszerelt, ami növeli a vendégek komfortérzetét.
• Az udvarban három garázs áll rendelkezésre, továbbá két további tárolóhelyiség található, amelyek korábbi garázsokból lettek átalakítva.
• Az ingatlan udvarán három autó számára további parkolóhely biztosított, ami jelentős előnyt jelent a belvárosi elhelyezkedés szempontjából.
• Az ingatlan teljes közművel rendelkezik, ami megkönnyíti az üzemeltetést és a további fejlesztéseket.
• A ház részben felújított állapotban van, így azonnal működtethető vállalkozásként is átvehető.
• A Péterfia utca elhelyezkedése kiemelten kedvelt, hiszen a belváros, az egyetemek és a tömegközlekedés néhány perc sétával elérhető.
A lokáció kiemelten kedvelt: pár perc sétára a belváros, egyetemek, tömegközlekedés, gyógyszertárak, bevásárlóközpontok.
Ritka lehetőség a környéken ilyen adottságokkal és ekkora kerttel/udvarrésszel.
Ha felkeltette érdeklődését ez az eladó debreceni apartman, vagy bármely más apartman és bővebb információt szeretne, keressen bizalommal.
Hivatkozási szám: #178043
Az Openhouse Debrecen Hadházi úti Ingatlaniroda tagjaként várom Önt az országos hálózatunk teljes kínálatával.
A apartman vásárláshoz hitelt igényelne? Ingyenes hitelközvetítéssel segít Önnek bankfüggetlen hitelszakértőnk.
További szolgáltatásainkkal (pl. értékbecslés, energetikai tanúsítvány, jogi háttér) is segítjük Önt a vásárlásban.
Az otthon érték. Az ingatlan üzlet.
Helyiségek
| Helyiség | Alapterület | Padlóburkolat |
|---|---|---|
| Szoba | 13.00 m2 | Laminált padló |
| Szoba | 10.00 m2 | Laminált padló |
| Szoba | 29.00 m2 | Laminált padló |
| Szoba | 13.00 m2 | Laminált padló |
| Fürdő | 4.00 m2 | Járólap |
| Fürdő | 3.00 m2 | Járólap |
| Fürdő | 3.00 m2 | Járólap |
| Fürdő | 2.00 m2 | Járólap |
| Konyha | 5.00 m2 | Járólap |
| WC | 2.00 m2 | Járólap |
| Közlekedő | 3.00 m2 | Járólap |
| Közlekedő | 2.00 m2 | Járólap |
| Háztartási helyiség | 2.00 m2 | Járólap |
| Terasz | 11.37 m2 | Járólap |
Alaprajz


















Magyar 
