Győr, Eladó Társasházi lakás (#177604)
LiliomLiget Szitásdomb - Új otthona már épül
Az Openhouse Győr - Belváros Ingatlaniroda kínálatában eladó a #177604 hivatkozási számú győri társasházi lakás.
A3-03 jelű lakás 63,2 m2 alapterületű, 23,12 m2 terasszal és 216,74 m2 saját kertkapcsolattal rendelkezik.
A kertvárosi környezetben található, két, kissé eltolt 3 szintes társasház biztos beruházói háttérrel, kényelmes elosztással, magas színvonalon, nagy energiahatékonysággal épül. Az ingatlan a jól átgondolt tervezésnek és kivitelezésnek köszönhetően minőségi életteret kínál lakói számára.
A két épület egy, a feltáró utcától és a főúttól is szeparált, É-D tengelyű, intimebb belső udvart fog közre. Tájolási szempontból ideális keleti, vagy nyugati lakások jönnek létre, illetve vannak nagyobb, un. átmenő lakások, melyek mind keleti, mind nyugati irányban a kertekre nyitottak.
A földszinti lakásokhoz saját kertkapcsolat, az első emeleti lakásokhoz erkély, a második emeleti lakásokhoz pedig terasz tartozik.
A helyszín tökéletes választás azok számára, akik szeretnének egy jó infrastruktúrájú településen élni, de nem szeretnék nélkülözni a nagyváros adta előnyöket sem.
A lakásokhoz minimum 1 parkolóhely megvétele kötelező, és korlátozott számban GARÁZS vásárlására is van lehetőség
A lakás felépítésének tervezett kezdési ideje:
2025.november
A lakás tervezett fűtéskész átadásának ideje: 2027 tavasz
Ha felkeltette érdeklődését ez az eladó győri társasházi lakás, vagy bármely más társasházi lakás és bővebb információt szeretne, keressen bizalommal.
Hivatkozási szám: #177604
Az Openhouse Győr - Belváros Ingatlaniroda tagjaként várom Önt az országos hálózatunk teljes kínálatával.
A társasházi lakás vásárláshoz hitelt igényelne? Ingyenes hitelközvetítéssel segít Önnek bankfüggetlen hitelszakértőnk.
További szolgáltatásainkkal (pl. értékbecslés, energetikai tanúsítvány, jogi háttér) is segítjük Önt a vásárlásban.
Az otthon érték. Az ingatlan üzlet.
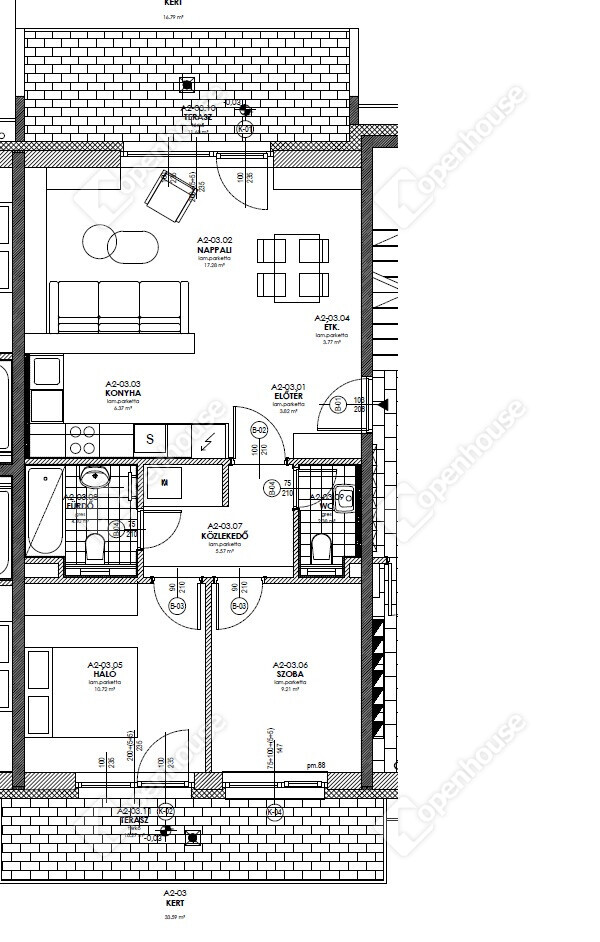
Helyiségek
| Helyiség | Alapterület | Padlóburkolat |
|---|---|---|
| Előtér | 3.82 m2 | Járólap |
| Amerikai konyha | 11.20 m2 | Járólap |
| Nappali | 16.22 m2 | Járólap |
| Szoba | 10.72 m2 | Laminált padló |
| Szoba | 9.21 m2 | Laminált padló |
| Közlekedő | 5.57 m2 | Járólap |
| Fürdő | 4.10 m2 | Járólap |
| WC | 2.38 m2 | Járólap |
| Terasz | 12.24 m2 | Járólap |
| Terasz | 10.88 m2 | Járólap |
Alaprajz










Magyar 
