Nagykovácsi, Eladó Ikerház (#177577)
Az Openhouse Budapest City Home Ingatlaniroda kínálatában eladó a #177577 BO azonosítójú nagykovácsi Ikerház.
Eladó újépítésű ikerház – Nagykovácsi egyik legkedveltebb, LEGPATINÁNSABB utcájában ahol minden letisztul.
A Budai-hegység lábánál, a természet közelségében, mégis Budapesttől mindössze néhány percre található Nagykovácsi.
Ez a település az utóbbi években a fővárosi agglomeráció egyik legkedveltebb, legélhetőbb helyévé vált – ahol a nyugalom, a biztonság és a természet harmóniája ideális környezetet teremt az otthonteremtéshez.
Ebbe a környezetbe illeszkedik ez a modern, energiatakarékos újépítésű ikerház, amely magas minőségű anyagokkal, átgondolt műszaki megoldásokkal és gondosan kialakított kerttel kínál valódi értéket és kényelmet új tulajdonosának. Az utca különlegessége, hogy a villanyvezetékek föld alatt futnak, így nem rontják a környék látványát - légvezetékek nincsenek.
Telek és külső kialakítás
-- Saját telekrész: 500 m²
-- Igényes földmunkával parkosított, automata öntözőrendszerrel kialakított különleges növényekkel ellátott kert.
-- Leier beton térburkolat a járdákon, beállón és teraszokon
-- Automata kapu a gépkocsi-bejárónál
-- Dupla fedett ragasztott fából kocsibeálló
-- Tágas, burkolt Fedett teraszok és erkélyek
Épület és szerkezet
-- Hasznos alapterület: 100 m² (NETTÓ) /125nm (BRUTTÓ). A területszámításben nincs beleszáítva az erkélyek és a teraszok!
-- Főfalazat: 30 cm Phorotherm tégla
-- Homlokzati hőszigetelés: 10 cm vastag
-- Koszorúk és áthidalók: 15 cm hőszigeteléssel ellátva
-- Belső válaszfalak: 10 cm Ytong és Phoroterm téglából
-- Energiahatékony, hő- és hangszigetelt építési rendszer
-- Modern, letisztult homlokzati megjelenés
Tetőszerkezet
-- Fedés: Mediterrán hullámos antracit színű betoncserép
-- Tetőszigetelés: 20 cm vastag kőzetgyapot
-- Esztétikus eresz- és bádogozási megoldások
-- Tetősík alatti hő, bogár és páravédelem biztosított
Nyílászárók
-- Külső nyílászárók: 3 rétegű hőszigetelt üvegezés (K = 0,7 W/m²K) Külső oldalon dió, belül fehér színben
-- Modern szúnyoghálóval ellátott nyílászárók
Fűtés és gépészet
-- Fűtés: Saunier Duval kondenzációs kombi kazán
-- Hőleadás: radiátoros rendszer
-- Fürdőszobák: radiátor és törölközőszárítós radiátorral ellátott
Elektromos hálózat:
-- 1x32A (bővíthető)
-- TV és internet kiállások
-- Teljes riasztórendszer-előkészítés
-- Kaputelefon rendszer kiépítve
-- Automata kapu elektromos működtetéssel
-- Külső homlokzati és kerti világítások
A ház egyik legnagyobb ékessége a gondosan megtervezett és karbantartott kert, amely a tulajdonos igényes munkáját tükrözi.
A házhoz tartozó igényes telek vízszintes és a végén gyönyörű erdősáv húzódik amitől még egyedibb és ritkává teszi az ingatlant.
A zöld pázsit, dísznövények és tujasorok harmonikus elrendezésben ölelik körül a házat, minden évszakban rendezett, esztétikus látványt nyújtva.
A teljesen automatizált öntözőrendszer precízen adagolja a vizet, így a kert gondozása minimális időráfordítást igényel, mégis mindig friss, élő és ápolt marad.
A teraszról nyíló zöldfelület kiváló helyszíne családi reggeliknek, délutáni pihenésnek vagy baráti összejöveteleknek.
A kertben található két faház (egy 3×3 m-es tároló és egy Hőszigetelt 4×3 m-es, villannyal és vízzel ellátott prémium kivitelű) funkcionális és esztétikai értéket is ad, tökéletesen illeszkedve a természetes környezethez.
Összegzés:
Ez a nagykovácsi ikerház nem csupán modern építészeti megoldásaival, hanem a gondosan kialakított, élettel teli kertjével is kiemelkedik a kínálatból.
Ideális választás mindazok számára, akik minőségi, energiatakarékos és szerethető otthont keresnek zöldövezeti környezetben, ahol a nyugalom és az igényesség kéz a kézben járnak.400-1200 méteres távolságban: Óvoda, Bölcsőde, Iskola, Szolgáltató üzletek, Amerikai iskola, mind megtalálható.
A vételár tartalmazza a beépített bútorokat.
Ön is ingatlant keres? Válassza Irodánkat!
Amennyiben a #177577 BO azonosítójú, nagykovácsi eladó Ikerház vagy bármely, az Openhouse hálózat kínálatában található ingatlan felkeltette érdeklődését, kérem, hívjon bizalommal!
SEGÍTÜNK, INTÉZZEN VELÜNK MINDENT EGY HELYEN!
Már megtalálta vagy még keresi „álmai otthonát”, de nem rendelkezik a megvásárlásához szükséges teljes vételárral?
Ne járjon bankról bankra!
Hitelszakértőnk, legyen szó akár piaci, akár államilag támogatott hitelről vagy vissza nem térítendő támogatásról, megtalálja az Önnek legmegfelelőbb egyedi konstrukciót.
Bankfüggetlen hitelügyintézőnk nagy szakmai tapasztalattal és a bankok ajánlatánál kedvezőbb lehetőségekkel segíti a Ikerház finanszírozását. Támogatja Önt a legkedvezőbb konstrukció kiválasztásában. Teljeskörűen összeállítja a hitelkérelmet, és a hitel folyósításáig végigkíséri az egész folyamatot.
CSOK-kal és Babaváró hitellel kapcsolatban is keressen minket bizalommal!
Kereső ügyfeleinknek a hitelközvetítői szolgáltatásaink ingyenesek.
Az otthon érték. Az ingatlan üzlet.
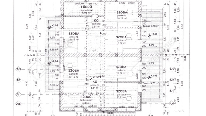
Helyiségek
| Helyiség | Alapterület | Padlóburkolat |
|---|---|---|
| Nappali | 23.54 m2 | |
| Konyha | 7.15 m2 | |
| Előszoba | 5.38 m2 | |
| Fürdő | 4.30 m2 | |
| Szoba | 13.66 m2 | |
| Lépcsőház | 1.18 m2 | |
| Kamra | 4.41 m2 | |
| Terasz | 18.85 m2 | |
| Terasz | 6.00 m2 | |
| Közlekedő | 3.84 m2 | |
| Fürdő | 6.96 m2 | |
| Szoba | 10.22 m2 | |
| Szoba | 10.12 m2 | |
| Erkély | 5.38 m2 | |
| Erkély | 9.76 m2 |
Alaprajz












































Magyar 
