Székesfehérvár, Eladó Családi ház (#177525)
Eladó új építésű családi ház Székesfehérváron
Az Openhouse Székesfehérvár Ingatlaniroda kínálatában eladó a #177525 hivatkozási számú székesfehérvári családi ház.
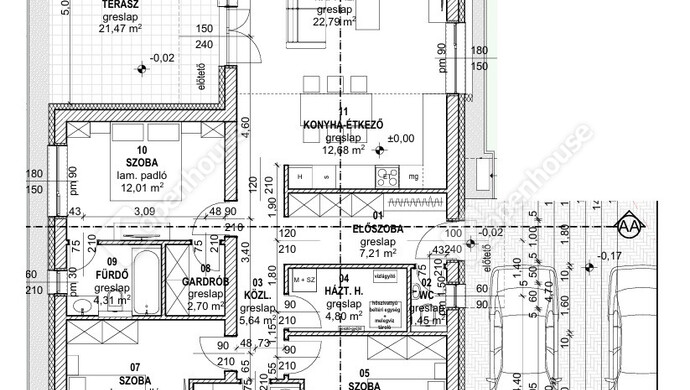
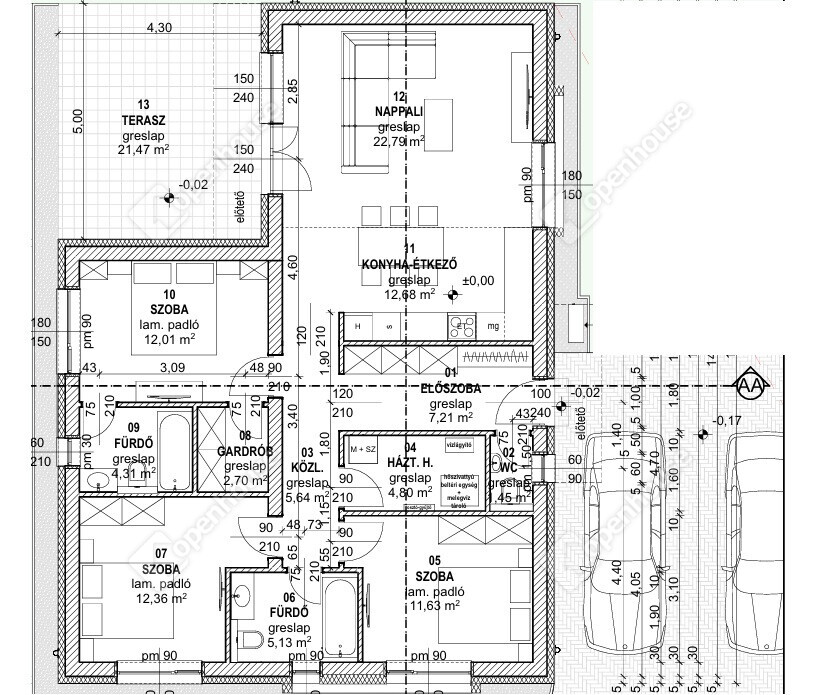
A családi ház főbb jellemzői:
- nettó 102,7 nm lakótér + 21,47 nm terasz
- nappali + 3 szoba, 2 fürdő, gardrób háztartási helyiség, vendég wc
- 30-as téglafalazat
- műanyag nyílászárók redőnnyel szúnyoghálóval
- váalsztható burkolatok, meghatározott keretösszegben
- Daikin hőszivattyú 240 literes víztárolóval, 3 kW napelem + 5 kW inverter
- 4 db beltéri klíma + 1 db külső egység
Ha felkeltette érdeklődését ez az eladó székesfehérvári családi ház, vagy bármely más családi ház és bővebb információt szeretne, keressen bizalommal.
Hivatkozási szám: #177525
Az Openhouse Székesfehérvár Ingatlaniroda tagjaként várom Önt az országos hálózatunk teljes kínálatával.
A családi ház vásárláshoz hitelt igényelne? Ingyenes hitelközvetítéssel segít Önnek bankfüggetlen hitelszakértőnk.
További szolgáltatásainkkal (pl. értékbecslés, energetikai tanúsítvány, jogi háttér) is segítjük Önt a vásárlásban.
Az otthon érték. Az ingatlan üzlet.
Helyiségek
| Helyiség | Alapterület | Padlóburkolat |
|---|---|---|
| Előszoba | 7.21 m2 | Járólap |
| WC | 1.00 m2 | Járólap |
| Háztartási helyiség | 4.80 m2 | Járólap |
| Amerikai konyha | 35.47 m2 | Járólap |
| Szoba | 12.01 m2 | Laminált padló |
| Fürdő | 4.31 m2 | Járólap |
| Gardrób | 2.70 m2 | Járólap |
| Szoba | 12.36 m2 | Laminált padló |
| Szoba | 11.63 m2 | Laminált padló |
| Fürdő | 5.13 m2 | Járólap |
| Terasz | 21.47 m2 | Járólap |
Alaprajz














Magyar 
