Székesfehérvár, Eladó Családi ház (#177522)
Eladó új építésű családi ház Székesfehérváron
Az Openhouse Székesfehérvár Ingatlaniroda kínálatában eladó a #177522 hivatkozási számú székesfehérvári családi ház.
A családi ház főbb jellemzői:
- nettó 102,7 nm lakótér + 21,47 nm terasz
- nappali + 3 szoba, 2 fürdő, gardrób háztartási helyiség, vendég wc
- A VÉTELÁR TARTALMAZZA A KONYHABÚTORT IS
- 30-as síkra csiszolt téglafalazat
- monolit vasbeton födém
- épített utcafronti kerítés + motorizáció
- térkövezés
- Rehau műanyag nyílászárók redőnnyel, szúnyoghálóval (Antracit színben)
- választható burkolatok, meghatározott keretösszegben (9.000Ft/m2)
- Daikin hőszivattyú 240 literes víztárolóval, 3 kW napelem + 5 kW inverter
- H-tarifás mérőóra
- 4 db beltéri klíma + 1 db külső egység
- választható csaptelepek + mosdó szekrény (Grohe vagy azzal egyenértékű)
- választható szaniterek
- vízlágyító
- törölközőszárító
- kaputelefon, riasztó, kamera előkészítés
- kerti csap (1db)
Ha felkeltette érdeklődését ez az eladó székesfehérvári családi ház, vagy bármely más családi ház és bővebb információt szeretne, keressen bizalommal.
Hivatkozási szám: #177522
Az Openhouse Székesfehérvár Ingatlaniroda tagjaként várom Önt az országos hálózatunk teljes kínálatával.
A családi ház vásárláshoz hitelt igényelne? Ingyenes hitelközvetítéssel segít Önnek bankfüggetlen hitelszakértőnk.
További szolgáltatásainkkal (pl. értékbecslés, energetikai tanúsítvány, jogi háttér) is segítjük Önt a vásárlásban.
Az otthon érték. Az ingatlan üzlet.
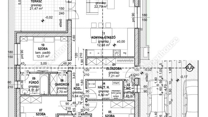
Helyiségek
| Helyiség | Alapterület | Padlóburkolat |
|---|---|---|
| Előszoba | 7.21 m2 | Járólap |
| WC | 1.00 m2 | Járólap |
| Háztartási helyiség | 4.80 m2 | Járólap |
| Amerikai konyha | 35.47 m2 | Járólap |
| Szoba | 12.01 m2 | Laminált padló |
| Fürdő | 4.31 m2 | Járólap |
| Gardrób | 2.70 m2 | Járólap |
| Szoba | 12.36 m2 | Laminált padló |
| Szoba | 11.63 m2 | Laminált padló |
| Fürdő | 5.13 m2 | Járólap |
| Terasz | 21.47 m2 | Járólap |
Alaprajz















Magyar
Angol 
