Budapest III. Ker., Eladó Ikerház (#177251)
Az Openhouse Budapest City Home Ingatlaniroda kínálatában eladó a #177251 BO azonosítójú Budapest III. kerületi Ikerház.
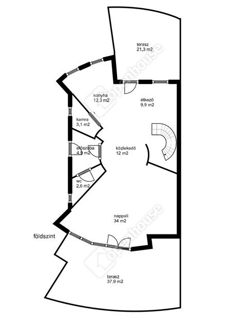
Fedezze fel ezt az exkluzív, kiváló állapotú ingatlant Budapest 03. kerületében, Testvérhegy szívében, ahol a városi élet és a természet közelsége tökéletes harmóniában találkozik. Ez a lenyűgöző, 252 nm-es ház a modern élet minden kényelmét kínálja, miközben a hegyvidéki környezet nyugalmát élvezheti. A 610 nm-es telken elhelyezkedő ingatlan tágas nappalival és amerikai konyhával rendelkezik, amely ideális helyszín a családi összejövetelekhez és baráti találkozókhoz. Az ingatlanban öt szoba és négy fürdőszoba található, így bőséges helyet biztosít a család minden tagja számára. A házban található kandalló nemcsak esztétikai élményt nyújt, hanem kellemes, meghitt hangulatot is teremt a hideg téli estéken. A garázsban két autó kényelmesen elfér, így a parkolás soha nem jelenthet problémát. A rendezett kert tökéletes helyszín a pihenésre, és a gyönyörű panoráma a környező hegyekre minden reggel új inspirációt adhat. A csendes, felkapott környék biztonságos légkört biztosít, ahol a gyermekek szabadon játszhatnak, és a szomszédok barátságos közösséget alkotnak. A közlekedési lehetőségek is kiválóak, hiszen a közelben több buszjárat is elérhető, amelyek gyorsan eljuttatják Önt a város központjába. Az autós közlekedés sem okoz gondot, hiszen a főbb közlekedési csomópontok könnyen megközelíthetők. A környék számos szolgáltatást kínál, beleértve iskolákat, boltokat és szórakozási lehetőségeket, így minden igényt kielégít. Ez a tehermentes ingatlan tökéletes választás lehet mindazok számára, akik egy csendes, de mégis élénk környezetben keresnek új otthont, vagy befektetési lehetőséget. Ne habozzon, hiszen az ilyen lehetőségek gyorsan elkelnek! Amennyiben kérdései lennének, vagy szeretné megtekinteni ezt a csodálatos ingatlant, bizalommal kereshet minket. Segítünk Önnek megtalálni álmai otthonát!
Ön is ingatlant keres? Válassza Irodánkat!
Amennyiben a #177251 BO azonosítójú, Budapest III. kerületi eladó Ikerház vagy bármely, az Openhouse hálózat kínálatában található ingatlan felkeltette érdeklődését, kérem, hívjon bizalommal!
SEGÍTÜNK, INTÉZZEN VELÜNK MINDENT EGY HELYEN!
Már megtalálta vagy még keresi „álmai otthonát”, de nem rendelkezik a megvásárlásához szükséges teljes vételárral?
Ne járjon bankról bankra!
Hitelszakértőnk, legyen szó akár piaci, akár államilag támogatott hitelről vagy vissza nem térítendő támogatásról, megtalálja az Önnek legmegfelelőbb egyedi konstrukciót.
Bankfüggetlen hitelügyintézőnk nagy szakmai tapasztalattal és a bankok ajánlatánál kedvezőbb lehetőségekkel segíti a Ikerház finanszírozását. Támogatja Önt a legkedvezőbb konstrukció kiválasztásában. Teljeskörűen összeállítja a hitelkérelmet, és a hitel folyósításáig végigkíséri az egész folyamatot.
CSOK-kal és Babaváró hitellel kapcsolatban is keressen minket bizalommal!
Kereső ügyfeleinknek a hitelközvetítői szolgáltatásaink ingyenesek.
Az otthon érték. Az ingatlan üzlet.
Helyiségek
| Helyiség | Alapterület | Padlóburkolat |
|---|---|---|
| Szoba | 26.95 m2 | |
| Szoba | 7.19 m2 | |
| Tároló | 4.44 m2 | |
| Garázs | 28.02 m2 | |
| Háztartási helyiség | 8.17 m2 | |
| Terasz | 21.34 m2 | |
| Terasz | 37.86 m2 | |
| Nappali | 33.97 m2 | |
| Étkező | 9.86 m2 | |
| Amerikai konyha | 22.86 m2 | |
| Erkély | 5.41 m2 | |
| Erkély | 9.35 m2 | |
| Szoba | 27.04 m2 | |
| Szoba | 18.54 m2 | |
| Gardrób | 3.33 m2 | |
| Fürdő | 5.74 m2 | |
| Fürdő | 7.72 m2 | |
| Szoba | 40.00 m2 | |
| Fürdő | 6.00 m2 |
Alaprajz
































Magyar
Angol 
