Veresegyház, Eladó Ikerház (#176960)
Otthon, ahol a szív dobog – Veresegyház központjában!
Az Openhouse Vác Ingatlaniroda kínálatában eladó a #176960 hivatkozási számú veresegyházi ikerház.
✨ ÚJÉPÍTÉSŰ IKERHÁZ ELADÓ VERESEN! ✨
? Kiváló befektetés vagy álomotthon családoknak!
? Veresegyház kedvelt, csendes, mégis jól megközelíthető részén kínáljuk eladásra ezt a modern, 98 m²-es ikerházat, 430 m² saját telekkel.
? Főbb jellemzők:
-
Nappali + 3 hálószoba
-
1 fürdőszoba + 1 vendégmosdó
-
Padlófűtés + klíma, modern hőszivattyú
-
Világos, nagy üvegfelületek, kiváló elosztás
? Elhelyezkedés:
-
Nyugodt, családbarát környék
-
Iskola, óvoda, bevásárlás, orvosi rendelő a közelben
-
Budapest csupán 25 km!
⚡ A hátsó ikerfél már ELKELT – ne maradj le az utcafronti ingatlanról!
? Tervezett átadás: 2026. I. negyedév
? Ár: 99.999.000 Ft (kulcsrakész állapot)
? Érdeklődés: +36 70 716 74 36
✉️ judit.juhasz@oh.hu
Ha felkeltette érdeklődését ez az eladó veresegyházi ikerház, vagy bármely más ikerház és bővebb információt szeretne, keressen bizalommal.
Hivatkozási szám: #176960
Az Openhouse Vác Ingatlaniroda tagjaként várom Önt az országos hálózatunk teljes kínálatával.
A ikerház vásárláshoz hitelt igényelne? Ingyenes hitelközvetítéssel segít Önnek bankfüggetlen hitelszakértőnk.
További szolgáltatásainkkal (pl. értékbecslés, energetikai tanúsítvány, jogi háttér) is segítjük Önt a vásárlásban.
Az otthon érték. Az ingatlan üzlet.
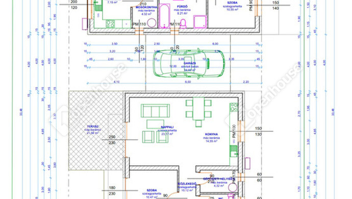
Helyiségek
| Helyiség | Alapterület | Padlóburkolat |
|---|---|---|
| Garázs | 16.50 m2 | Beton |
| Szoba | 10.47 m2 | Laminált padló |
| Szoba | 9.93 m2 | Laminált padló |
| Szoba | 10.05 m2 | Laminált padló |
| Terasz | 21.00 m2 | Kőburkolat |
| Nappali | 23.17 m2 | Laminált padló |
| Konyha | 14.55 m2 | Kőburkolat |
| Közlekedő | 10.33 m2 | Kőburkolat |
| Kamra | 4.00 m2 | Kőburkolat |
| Előtér | 4.21 m2 | Kőburkolat |
| WC | 3.24 m2 | Kőburkolat |
| Fürdő | 8.05 m2 | Kőburkolat |
Alaprajz










Magyar
Angol
Olasz 
