Budapest V. Ker., Eladó Téglaépítésű lakás (#176954)
Az Openhouse Budapest City Home Ingatlaniroda kínálatában eladó a #176954 BO azonosítójú Budapest V. kerületi Téglaépítésű lakás.
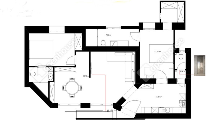
Eladásra kínálok a Váci utcában egy 1. Emeleti, felújítandó lakást kész látványtervekkel, és minden egyéb tervvel, melyet tervező álmodott meg, és mely kivitelezése is lehetséges külön megállapodásban.
A lakás jelenleg tényleg vissza van bontva, és az alaprajz mutatja a jelenlegi válaszfalakat. Első körben így ebben az állapotban szeretnénk értékesíteni.
Új szabványosított mérőhely.
Viszont egyedi fa ablakok beépítésre kerülnek, azt az ár tartalmazza.
Ön is ingatlant keres? Válassza Irodánkat!
Amennyiben a #176954 BO azonosítójú, Budapest V. kerületi eladó Téglaépítésű lakás vagy bármely, az Openhouse hálózat kínálatában található ingatlan felkeltette érdeklődését, kérem, hívjon bizalommal!
SEGÍTÜNK, INTÉZZEN VELÜNK MINDENT EGY HELYEN!
Már megtalálta vagy még keresi „álmai otthonát”, de nem rendelkezik a megvásárlásához szükséges teljes vételárral?
Ne járjon bankról bankra!
Hitelszakértőnk, legyen szó akár piaci, akár államilag támogatott hitelről vagy vissza nem térítendő támogatásról, megtalálja az Önnek legmegfelelőbb egyedi konstrukciót.
Bankfüggetlen hitelügyintézőnk nagy szakmai tapasztalattal és a bankok ajánlatánál kedvezőbb lehetőségekkel segíti a Téglaépítésű lakás finanszírozását. Támogatja Önt a legkedvezőbb konstrukció kiválasztásában. Teljeskörűen összeállítja a hitelkérelmet, és a hitel folyósításáig végigkíséri az egész folyamatot.
CSOK-kal és Babaváró hitellel kapcsolatban is keressen minket bizalommal!
Kereső ügyfeleinknek a hitelközvetítői szolgáltatásaink ingyenesek.
Az otthon érték. Az ingatlan üzlet.
Helyiségek
| Helyiség | Alapterület | Padlóburkolat |
|---|---|---|
| Szoba | 1.00 m2 | |
| WC | 1.00 m2 | |
| Fürdő | 1.00 m2 | |
| Amerikai konyha | 1.00 m2 |
Alaprajz












Magyar 
