Inárcs, Eladó Családi ház (#176886)
Igényes, 144 m2-es családi ház eladó Inárcson
Az Openhouse Monor Ingatlaniroda kínálatában eladó a #176886 hivatkozási számú inárcsi családi ház.
Eladó egy igazi gyöngyszem Inárcs szívében, csendes mellékutcában, de mégis szuper központi helyen!
A tágas, amerikai konyhás nappali-étkező tökéletes helyszín a családi és baráti összejövetelekhez, a négy hálószoba pedig mindenkinek saját kis kuckót kínál. Van külön gardróbszoba és mosókonyha is, hogy minden praktikus legyen. A házhoz tartozik egy kellemes terasz, ahol élvezheted a kert nyugalmát, a szauna pedig az egyik fürdőszobában kapott helyet, hogy bármikor relaxálhass egy jót.
A gépészet egy külön helyiségben kapott helyet, így a lakótér mindig rendezett marad.
A 144 négyzetméteres lakótérben mindent megtalálsz: padlófűtés, hűtő-fűtő klíma, modern házközponti fűtés, és természetesen elektromos redőnyök gondoskodnak a kényelemről. A ház délkeleti fekvésű, 20 centis szigeteléssel ellátott, cseréptetős, így télen-nyáron ideális klímát biztosít.
A 1017 négyzetméteres telek is maga a nyugalom szigete: automata öntözőrendszerrel, sőt, egy saját kétállásos, fűtött garázs pedig elektromos kapuval várja, hogy bármikor kényelmesen hazaérj. A biztonságról riasztó és kamerarendszer gondoskodik.
Az M5-ös autópálya 5 percre autóval, Soroksári bevárás lóközpont 24 km-re, reptér 30 km-re.
Közelben játszótér, óvoda, CBA, lottózó, buszmegálló, Művelődési ház, Polgármesteri Hivatal, pizzázó, fagyizó, pub.
Ez az ingatlan nemcsak egy ház, hanem egy életstílus. Ha valami igazán különlegeset keresel, ami minden igényt kielégít, akkor itt az alkalom, hogy beleszeress. Ne maradj le róla!
Ha felkeltette érdeklődését ez az eladó inárcsi családi ház, vagy bármely más családi ház és bővebb információt szeretne, keressen bizalommal.
Hivatkozási szám: #176886
Az Openhouse Monor Ingatlaniroda tagjaként várom Önt az országos hálózatunk teljes kínálatával.
A családi ház vásárláshoz hitelt igényelne? Ingyenes hitelközvetítéssel segít Önnek bankfüggetlen hitelszakértőnk.
További szolgáltatásainkkal (pl. értékbecslés, energetikai tanúsítvány, jogi háttér) is segítjük Önt a vásárlásban.
Az otthon érték. Az ingatlan üzlet.
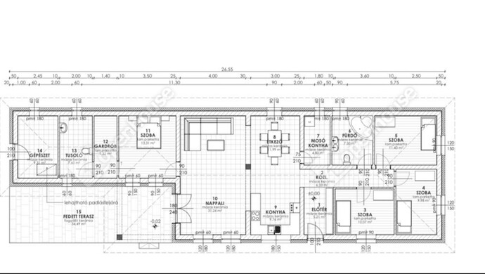
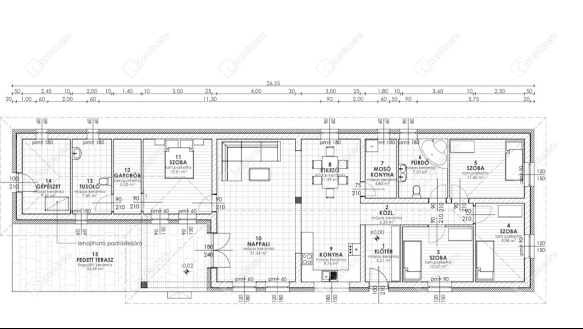
Helyiségek
| Helyiség | Alapterület | Padlóburkolat |
|---|---|---|
| Háztartási helyiség | 9.00 m2 | Kőburkolat |
| Fürdő | 8.00 m2 | Kőburkolat |
| Gardrób | 5.00 m2 | Laminált padló |
| Szoba | 13.00 m2 | Laminált padló |
| Nappali | 43.00 m2 | Laminált padló |
| Konyha | 10.00 m2 | Laminált padló |
| Háztartási helyiség | 5.00 m2 | Laminált padló |
| Fürdő | 8.00 m2 | Kőburkolat |
| Szoba | 12.00 m2 | Laminált padló |
| Közlekedő | 6.00 m2 | Laminált padló |
| Előtér | 5.00 m2 | Kőburkolat |
| Szoba | 10.00 m2 | Laminált padló |
| Szoba | 10.00 m2 | Laminált padló |
| Terasz | 35.00 m2 | Kőburkolat |
Alaprajz



























Magyar 
