Jánossomorja, Eladó Társasházi lakás (#176871)
Az Openhouse Győr - Belváros Ingatlaniroda kínálatában eladó a #176871 hivatkozási számú jánossomorjai társasházi lakás.
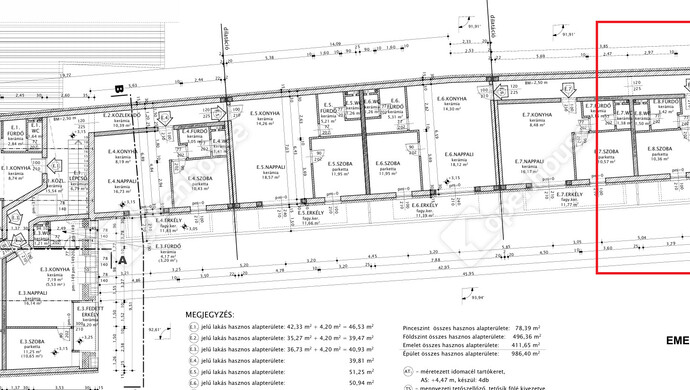
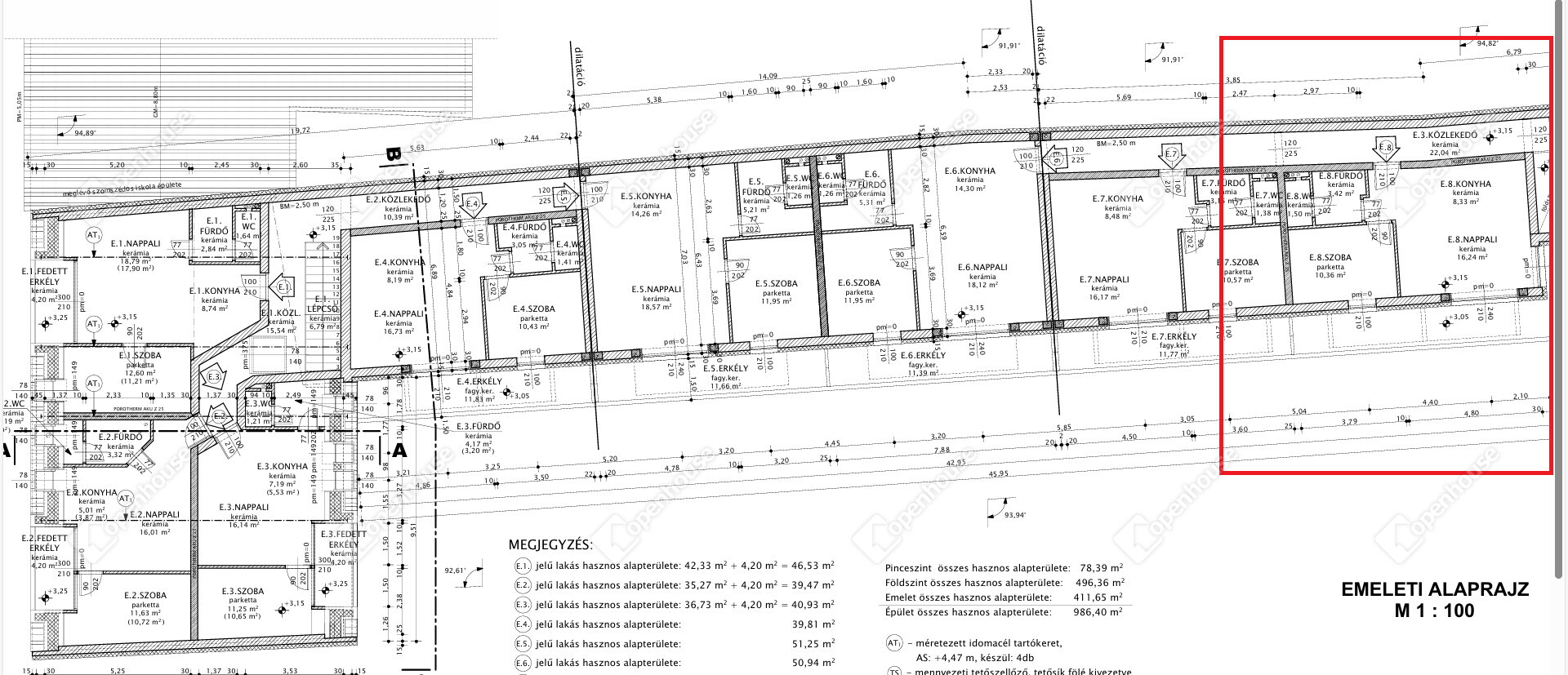
Jánossomorja központi részén 2026 decemberi átadással 13 modern lakás és 2 üzlethelyiség épül. A lakások nappali + 1 szobás elosztásúak lesznek, különböző méretekben, kertkapcsolatos és emeleti lakások egyaránt elérhetőek.
- 13 db lakás
- 2 db üzlethelyiség
- korszerű kivitelezés
- monolit vasbeton födém szerkezet
- porotherm 30-as falazat
- 15 cm homlokzati hőszigetelés
- 3 rétegű nyílászárók
- hőszivattyús rendszer
- padlófűtés
- fűtéskészen kerül átadásra, de lehetőség van a kulcsrakész befejezésre is
- gépkocsibeálló kötelezően vásárolandó
- IE8 lakás 39,85 m2 + 22,6 m2 erkély
- Ár: 47.058.000,-
- Gépkocsibeálló : 2.000.000,-
Ha felkeltette érdeklődését ez az eladó jánossomorjai társasházi lakás, vagy bármely más társasházi lakás és bővebb információt szeretne, keressen bizalommal.
Hivatkozási szám: #176871
Az Openhouse Győr - Belváros Ingatlaniroda tagjaként várom Önt az országos hálózatunk teljes kínálatával.
A társasházi lakás vásárláshoz hitelt igényelne? Ingyenes hitelközvetítéssel segít Önnek bankfüggetlen hitelszakértőnk.
További szolgáltatásainkkal (pl. értékbecslés, energetikai tanúsítvány, jogi háttér) is segítjük Önt a vásárlásban.
Az otthon érték. Az ingatlan üzlet.
Helyiségek
| Helyiség | Alapterület | Padlóburkolat |
|---|---|---|
| Fürdő | 3.42 m2 | Burkolat nélküli |
| WC | 1.50 m2 | Burkolat nélküli |
| Konyha | 8.33 m2 | Burkolat nélküli |
| Nappali | 16.24 m2 | Burkolat nélküli |
| Szoba | 10.36 m2 | Burkolat nélküli |
| Erkély | 22.60 m2 | Burkolat nélküli |
Alaprajz













Magyar 
