Jánossomorja, Eladó Társasházi lakás (#176864)
Az Openhouse Győr - Belváros Ingatlaniroda kínálatában eladó a #176864 hivatkozási számú jánossomorjai társasházi lakás.
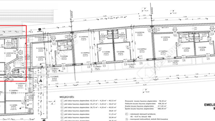
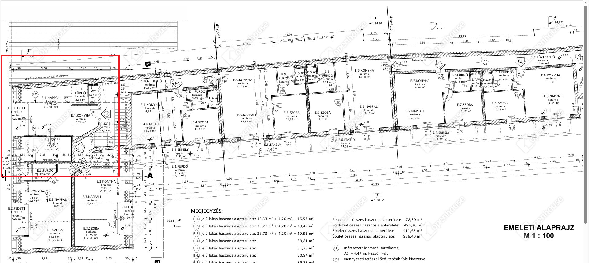
Jánossomorja központi részén 2026 decemberi átadással 13 modern lakás és 2 üzlethelyiség épül. A lakások nappali + 1 szobás elosztásúak lesznek, különböző méretekben, kertkapcsolatos és emeleti lakások egyaránt elérhetőek.
- 13 db lakás
- 2 db üzlethelyiség
- korszerű kivitelezés
- monolit vasbeton födém szerkezet
- porotherm 30-as falazat
- 15 cm homlokzati hőszigetelés
- 3 rétegű nyílászárók
- hőszivattyús rendszer
- padlófűtés
- fűtéskészen kerül átadásra, de lehetőség van a kulcsrakész befejezésre is
- gépkocsibeálló kötelezően vásárolandó
- E1 lakás 42,33 m2 + 4,2 m2 erkély
- Ár: 40.875.600,-
- Gépkocsibeálló : 2.000.000,-
Ha felkeltette érdeklődését ez az eladó jánossomorjai társasházi lakás, vagy bármely más társasházi lakás és bővebb információt szeretne, keressen bizalommal.
Hivatkozási szám: #176864
Az Openhouse Győr - Belváros Ingatlaniroda tagjaként várom Önt az országos hálózatunk teljes kínálatával.
A társasházi lakás vásárláshoz hitelt igényelne? Ingyenes hitelközvetítéssel segít Önnek bankfüggetlen hitelszakértőnk.
További szolgáltatásainkkal (pl. értékbecslés, energetikai tanúsítvány, jogi háttér) is segítjük Önt a vásárlásban.
Az otthon érték. Az ingatlan üzlet.
Helyiségek
| Helyiség | Alapterület | Padlóburkolat |
|---|---|---|
| Konyha | 8.74 m2 | Burkolat nélküli |
| Fürdő | 2.84 m2 | Burkolat nélküli |
| WC | 1.64 m2 | Burkolat nélküli |
| Nappali | 17.90 m2 | Burkolat nélküli |
| Szoba | 11.21 m2 | Burkolat nélküli |
| Erkély | 4.20 m2 | Burkolat nélküli |
Alaprajz













Magyar 
