Iszkaszentgyörgy, Eladó Családi ház (#176824)
Eladó önálló családi ház Iszkaszentgyörgyön
Az Openhouse Székesfehérvár Ingatlaniroda kínálatában eladó a #176824 hivatkozási számú iszkaszentgyörgyi családi ház.
Székesfehérvári ingatlan iroda eladásra kínál modern stílusban épülő önálló családi házat Iszkaszentgyörgyön.
Lokáció: Iszkaszentgyörgy egy csendes és új parcellázású részén található az építkezés. A környéken csak új és szép megjelenésű ingatlanok találhatóak, az építkezés megközelítése új aszfaltos úton biztosított. Székesfehérvár autóval és tömegközlekedéssel is egyaránt könnyedén megközelíthető.
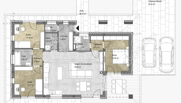
Az ingatlanról: Az ingatlan minőségi alapanyagok felhasználásával és a modern technológia alkalmazásával készül, a lehető legmagasabb színvonalon, minimál stílusban. A nettó alapterület 102m2, ami magába foglal egy hatalmas amerikai konyhás nappalit, 3 hálószobát, 2 fürdőszobát WC-vel, egy vendék WC-t és egy háztartási helyiséget. Továbbá az ingatlanhoz tartozik 2 db térkövezett kocsibeálló, egy nagy méretű 20m2-es épített terasz, melyből 10m2 fedett, továbbá az ingatlanhoz tartozik egy saját használatú 915m2-es kertrész is. Az ingatlanok a látványtervel megegyezően leszknek kialakítva, a medence opcionális tételként, felár ellenében érhető el.
Műszaki paraméterek:
- 102m2-es családi ház + 10m2-es fedett terasz + 10m2 fedetlen terasz
- 30-as téglafal (porotherm X-therm klíma tégla)
- 10-es válaszfalak
- 15cm homlokzati hőszigetelés
- 915m2-es saját telek
- 12.5 kW-os ELECTROLUX hőszivattyú + padlófűtés
- 150-literes hőtárolós melegvíztartály
- H-tarifás mérőóra
- 3x16 Amper
- három rétegű műanyag nyílászárók
- rejtett redőny tok előkészítés
- klíma előkészítés és védőcsövezése
- 1db kerti csap
- 2db térkövezett kocsibeálló
- oldalhatárokon 3D kerítés
- antracit beton tetőcserép
- választható beltéri ajtók
- választható csaptelepek és szaniterek
- választható burkolatok
A kivitelező cégről: Az ingatlan építését egy több éve megbízhatóan működő Székesfehérvári bejelentésű építőipari vállalkozás kordinálja. Több, már elkészült székesfehérváron is megtekinthető referencia ingatlant áll rendelkezésre, hogy Ön is meggyőződjön a megfelelő minőségű kivitelezésről.
FIzetési konstrukció: Rugalmas fizetési ütem biztosítja a gördülékeny együttműködést, ami minding a vásárló igényeihez megfelelően van igazítva.
Ha felkeltette érdeklődését ez az eladó iszkaszentgyörgyi családi ház, vagy bármely más családi ház és bővebb információt szeretne, keressen bizalommal.
Hivatkozási szám: #176824
Az Openhouse Székesfehérvár Ingatlaniroda tagjaként várom Önt az országos hálózatunk teljes kínálatával.
A családi ház vásárláshoz hitelt igényelne? Ingyenes hitelközvetítéssel segít Önnek bankfüggetlen hitelszakértőnk.
További szolgáltatásainkkal (pl. értékbecslés, energetikai tanúsítvány, jogi háttér) is segítjük Önt a vásárlásban.
Az otthon érték. Az ingatlan üzlet.
Helyiségek
| Helyiség | Alapterület | Padlóburkolat |
|---|---|---|
| Előszoba | 6.00 m2 | Járólap |
| WC | 1.55 m2 | Járólap |
| Háztartási helyiség | 3.33 m2 | Járólap |
| Nappali | 20.26 m2 | Járólap |
| Amerikai konyha | 19.31 m2 | Járólap |
| Szoba | 12.41 m2 | Laminált padló |
| Szoba | 12.53 m2 | Laminált padló |
| Fürdő | 3.71 m2 | Járólap |
| Közlekedő | 2.15 m2 | Járólap |
| Szoba | 13.71 m2 | Laminált padló |
| Gardrób | 2.70 m2 | Laminált padló |
| Fürdő | 3.56 m2 | Járólap |
Alaprajz








Magyar
Angol 
