Székesfehérvár, Eladó Családi ház (#176790)
Eladó új építésű családi ház Székesfehérvár, Kőrösi utca
Az Openhouse Székesfehérvár Ingatlaniroda kínálatában eladó a #176790 hivatkozási számú székesfehérvári családi ház.
Székesfehérvár Feketehegyen kínálok megvételre új építésű családi házakat. A házak nettó 107 m2-esek, pergolás gépkocsibeállóval 18.90 m2 és 15 m2-es terasszal rendelkeznek. A telekméret 483 m2. Nappali-konyha-étkező, három hálószoba, két fürdőszoba, háztartási helyiség, vendég WC helyiségekkel épülő ház. A teljes telek 1734 m2, melyen három épület lesz elhelyezve. A lakóházak egymástól megfelelő távolságban épülnek, garantálva a kellemes környezetet. Már csak az A épület szabad.
- Tégla épület, 10 cm-es grafitadalékos EPS szigeteléssel
- A családi ház fűtéséről hőszivattyú fog gondoskodni padlófűtéssel.
- Az ár kulcsrakész mely választható beltéri ajtókat, szanitereket, járólapot és Vinyl burkolatot tartalmaz.
A vételár nem tartalmaz konyhabútort és lámpatesteket. Részletes műszaki tartalom egyeztetése miatt keressen telefonon!
Ha felkeltette érdeklődését ez az eladó székesfehérvári családi ház, vagy bármely más családi ház és bővebb információt szeretne, keressen bizalommal.
Hivatkozási szám: #176790
Az Openhouse Székesfehérvár Ingatlaniroda tagjaként várom Önt az országos hálózatunk teljes kínálatával.
A családi ház vásárláshoz hitelt igényelne? Ingyenes hitelközvetítéssel segít Önnek bankfüggetlen hitelszakértőnk.
További szolgáltatásainkkal (pl. értékbecslés, energetikai tanúsítvány, jogi háttér) is segítjük Önt a vásárlásban.
Az otthon érték. Az ingatlan üzlet.
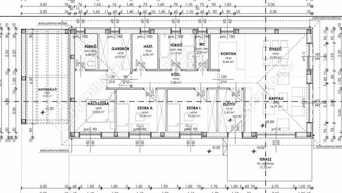
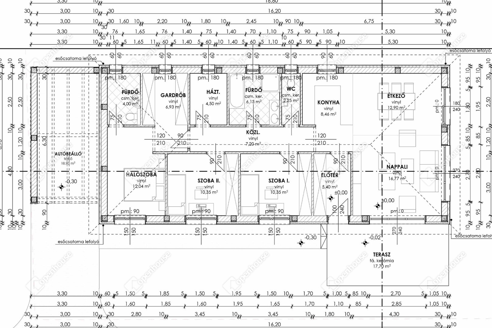
Helyiségek
| Helyiség | Alapterület | Padlóburkolat |
|---|---|---|
| Előszoba | 5.40 m2 | Vinyl padlóburkolat |
| Nappali | 29.76 m2 | Vinyl padlóburkolat |
| Amerikai konyha | 8.46 m2 | Vinyl padlóburkolat |
| WC | 2.25 m2 | Járólap |
| Fürdő | 6.13 m2 | Járólap |
| Háztartási helyiség | 4.50 m2 | Vinyl padlóburkolat |
| Szoba | 10.35 m2 | Vinyl padlóburkolat |
| Szoba | 10.35 m2 | Vinyl padlóburkolat |
| Szoba | 12.04 m2 | Vinyl padlóburkolat |
| Gardrób | 6.93 m2 | Vinyl padlóburkolat |
| Fürdő | 4.00 m2 | Járólap |
| Közlekedő | 7.20 m2 | Vinyl padlóburkolat |
| Terasz | 15.00 m2 | Járólap |
| Gépkocsibeálló | 18.90 m2 | Kőburkolat |
Alaprajz








Magyar 
