Zalaegerszeg, Eladó Társasházi lakás (#176630)
Zalaegerszegen a Kertvárosban eladó egy 2.emeleti társasházi lakás 58m2 alapterülettel
Az Openhouse Zalaegerszeg Ingatlaniroda kínálatában eladó a #176630 hivatkozási számú zalaegerszegi társasházi lakás.
Eladó 2 szobás lakás Zalaegerszeg Kertvárosában – felújítással álmai otthonává alakíthatja!
Zalaegerszeg egyik legkedveltebb városrészében, a Kertvárosban kínálunk megvételre egy 58 m²-es, 2 szobás lakást, amely a 2. emeleten található. A lakás csúsztatott zsalus technológiával épült, masszív szerkezetű, jó elrendezésű, tágas terekkel rendelkezik.
A lakás jelenlegi állapota felújítást igényel, ami egyben nagy előnye is: az új tulajdonos teljes mértékben saját elképzeléseihez és igényeihez szabhatja. Ideális választás mindazoknak, akik egy stabil alapot keresnek és szeretik, ha otthonuk az ő ízlésüket tükrözi.
Főbb jellemzők:
-
Alapterület: 58 m²
-
Szobák száma: 2 külön nyíló, világos szoba
-
Fűtés: konvektoros megoldás
-
Emelet: 2. emelet, kényelmes megközelítéssel
-
Lépcsőház: zárt, tiszta és rendezett, barátságos lakóközösséggel
-
Tároló: saját, zárható tároló a földszinten
-
Parkolás: ingyenes, árnyékos parkolóhelyek közvetlenül a ház előtt
Környék:
A kertvárosi rész közkedvelt a nyugodt, családias hangulata miatt. A közelben minden megtalálható, ami a mindennapi élethez szükséges: boltok, óvoda, iskola, gyógyszertár, buszmegálló, valamint zöldövezetek, játszóterek és sportolási lehetőségek is. A belváros könnyen és gyorsan elérhető.
Kinek ajánljuk?
-
Fiatal pároknak és családalapítóknak, akik egy elérhető árú lakást keresnek, és szívesen alakítanák át otthonukat saját ízlésük szerint.
-
Befektetőknek, akik egy jó elhelyezkedésű ingatlant keresnek kiadásra vagy értéknövelő felújításra.
-
Idősebbeknek, akik csendes, biztonságos és barátságos környezetben szeretnének élni, jó közlekedési lehetőségekkel.
Ha szeretne egy jó adottságokkal rendelkező, kiváló elhelyezkedésű lakást, amelyet saját elképzelései szerint formálhat otthonává, ne hagyja ki ezt a lehetőséget!
Ha felkeltette érdeklődését ez az eladó zalaegerszegi társasházi lakás, vagy bármely más társasházi lakás és bővebb információt szeretne, keressen bizalommal.
Hivatkozási szám: #176630
Az Openhouse Zalaegerszeg Ingatlaniroda tagjaként várom Önt az országos hálózatunk teljes kínálatával.
A társasházi lakás vásárláshoz hitelt igényelne? Ingyenes hitelközvetítéssel segít Önnek bankfüggetlen hitelszakértőnk.
További szolgáltatásainkkal (pl. értékbecslés, energetikai tanúsítvány, jogi háttér) is segítjük Önt a vásárlásban.
Az otthon érték. Az ingatlan üzlet.
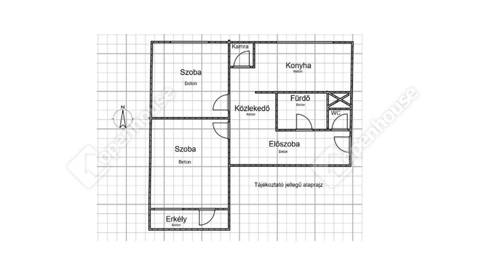
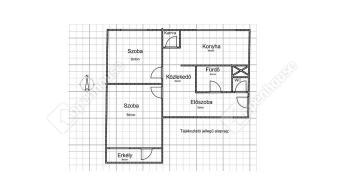
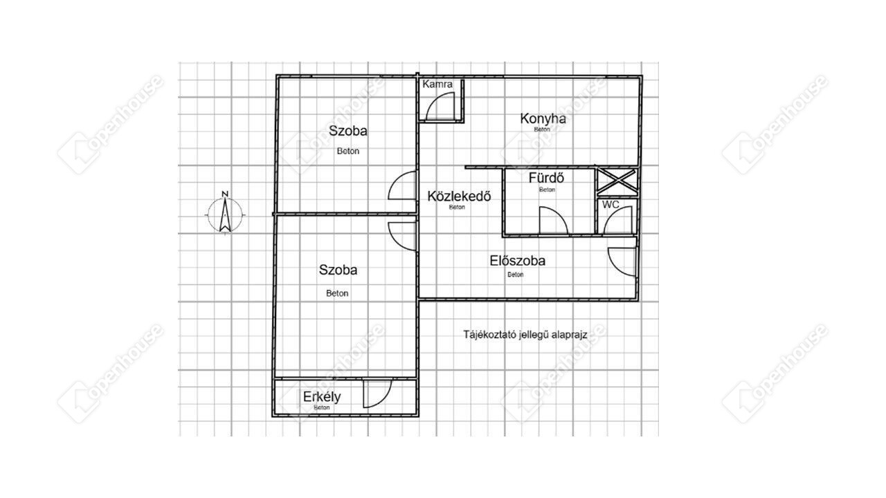
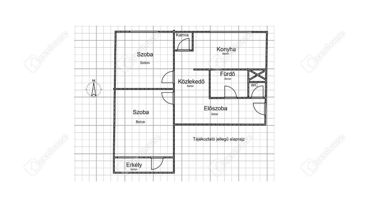
Helyiségek
| Helyiség | Alapterület | Padlóburkolat |
|---|---|---|
| Előszoba | 4.43 m2 | Vinyl padlóburkolat |
| Közlekedő | 2.86 m2 | Vinyl padlóburkolat |
| Fürdő | 3.70 m2 | Vinyl padlóburkolat |
| WC | 1.00 m2 | Vinyl padlóburkolat |
| Konyha | 6.99 m2 | Vinyl padlóburkolat |
| Kamra | 1.00 m2 | Vinyl padlóburkolat |
| Szoba | 14.21 m2 | Padlószőnyeg |
| Szoba | 19.95 m2 | Padlószőnyeg |
| Gardrób | 2.00 m2 | Vinyl padlóburkolat |
| Erkély | 4.00 m2 | Járólap |
Alaprajz


























Magyar 
