Budapest XXII. Ker., Eladó Családi ház (#176396)
Az Openhouse Budapest City Home Ingatlaniroda kínálatában eladó a #176396 BO azonosítójú Budapest XXII. kerületi Családi ház.
Eladásra kínálunk egy közepes állapotú, 3 szintes családi házat Budafok és Budatétény határán.
A ház 1987-ben épült 30-as téglából és néhány éve 10 cm polisztirol szigetelést kapott.
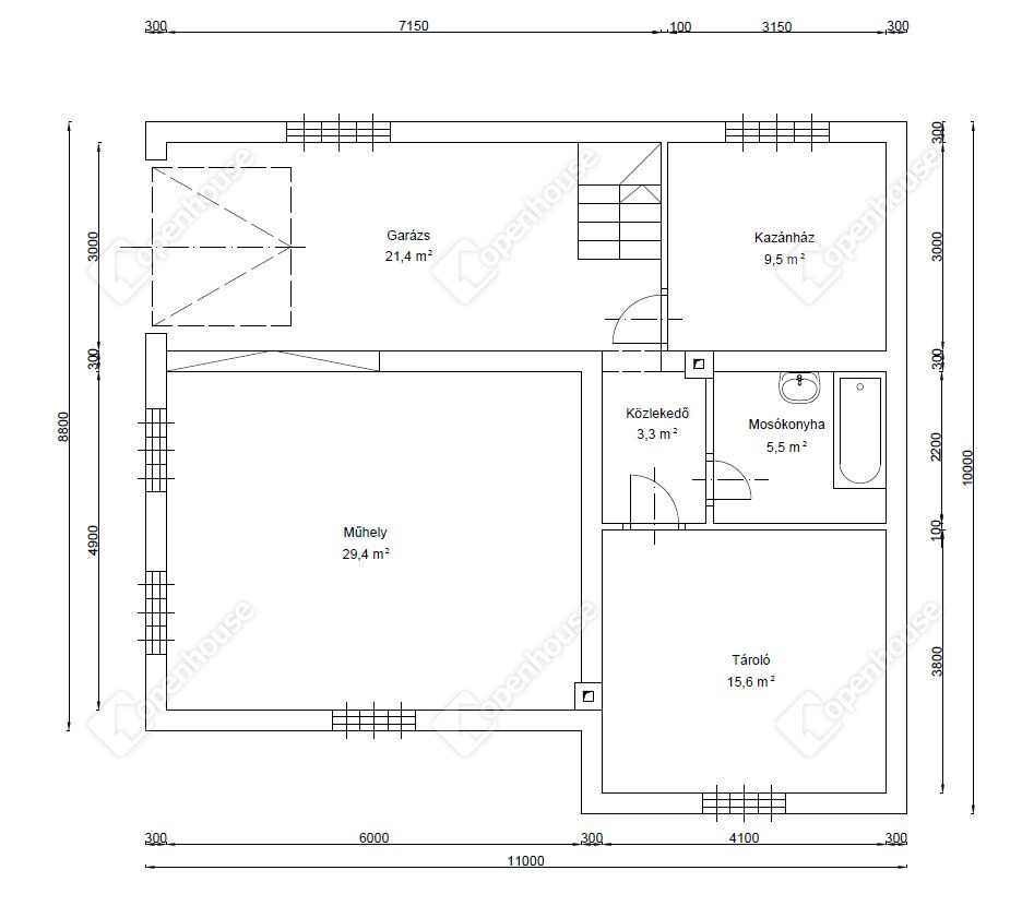
Jelenleg két teljes lakószinttel, valamint beépített tetőtérrel és egy földszinti garázs - műhely - tároló szinttel rendelkezik.
A fűthető garázsban 1 nagyobb autó fér el, de további 2-3 autó részére van beállási lehetőség a kertben.
Ugyanitt található mosókonyha és a kazánház is, a műhelyben van ipari áram (400V).
A lakószintek egyenként 85 nm-esek, a tetőtér bruttó 49 nm (nettó 27 nm) az alsó pinceszint (garázs - műhely - tároló) is 85 nm.
Fűtése kondenzációs gázkazánnal és radiátorokkal, a melegvíz ellátás szintén gázkazánnal és melegvíz tárolóval és villanybojlerrel történik.
A régi fém keretes nyilászárók cserére szorulnak. Az elektromos vezetékek még nem voltak cserélve.
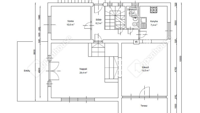
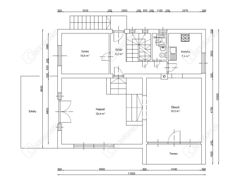
Alsó szint: terasz (12 nm, közvetlen kapcsolattal a kertbe), nappali (új klímával és kandallóval), étkező, konyha, dolgozó szoba, zuhanyzós wc.
Az étkezőből még egy terasz nyílik (6 nm) mely az oldalsó kertre néz.
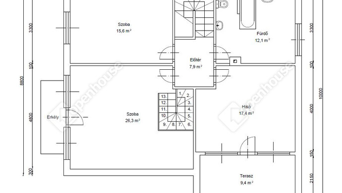
Felső szint: 3 tágas (>15 nm) szoba, fürdőszoba-wc. Az egyik szobához 9 nm-es erkély tartozik, amely jelenleg beépített, de nagyon könnyen visszaalakítható nyitottra.
A legnagyobb méretű szobához szintén tartozik erkély. Ebből a szobából lehet feljutni a tetőtérbe, mely 2006-ban került beépítésre, a tető felújításával együtt. A héjazat ekkor 15 cm szigetelést kapott.
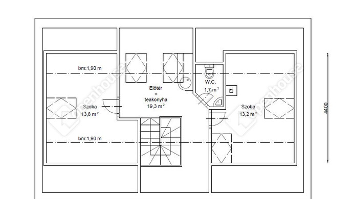
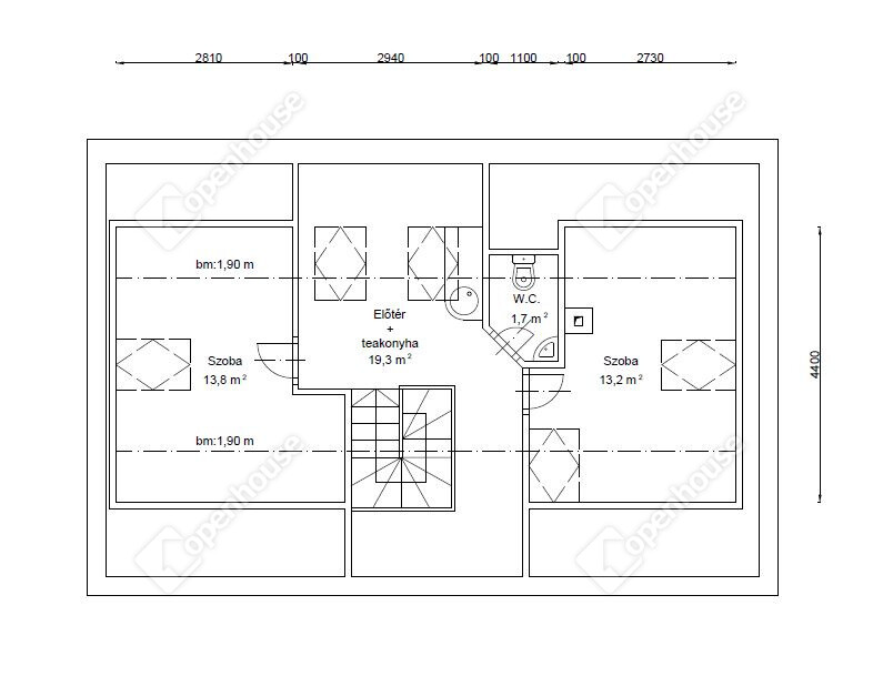
Tetőtér: 2 szoba, konyha-előtér, wc kézmosóval. Az egyik szoba szintén klímatizált. A tetőtéri rész a ház többi részéhez képest jó állapotú.
A telek hátsó részében van még egy különálló 30 nm-es műhely / garázs, vízzel és 3 fázisú ipari árammal.
A kertben számos gyümölcsfa van, valamint hatalmas szivarfák adnak árnyékot. Az előkertben hangulatos halastó, aranyhalakkal és tavirózsákkal.
Kiváló lehetőséget ad a kert medence, sütögető, szaletli kialakítására.
Tömegközlekedés két irányban is 5 percre található (Klauzál u., Háros u.).
Mind a kert, mind a ház rengeteg lehetőséget ad arra, hogy az elképzeléseit kibontakoztathassa, kialakítva ezzel egy új, szép, élhető életteret Önnek és családjának!
Ha kérdése merül fel, vagy időpontot egyeztetne személyes megtekintéshez, hívjon bizalommal.
Díjmentes, bankfüggetlen hiteltanácsadással támogatjuk vevő ügyfeleinket a számukra legelőnyösebb finanszírozási döntések meghozatalában. Opcionálisan igénybe vehető kiegészítő szolgáltatásainkkal – mint ügyvédi közreműködés, energetikai tanúsítvány vagy villamos biztonsági felülvizsgálat – teljes körű szakmai támogatást nyújtunk az adásvétel folyamatának minden egyes lépésénél.
Ön is ingatlant keres? Válassza Irodánkat!
Amennyiben a #176396 BO azonosítójú, Budapest XXII. kerületi eladó Családi ház vagy bármely, az Openhouse hálózat kínálatában található ingatlan felkeltette érdeklődését, kérem, hívjon bizalommal!
SEGÍTÜNK, INTÉZZEN VELÜNK MINDENT EGY HELYEN!
Már megtalálta vagy még keresi „álmai otthonát”, de nem rendelkezik a megvásárlásához szükséges teljes vételárral?
Ne járjon bankról bankra!
Hitelszakértőnk, legyen szó akár piaci, akár államilag támogatott hitelről vagy vissza nem térítendő támogatásról, megtalálja az Önnek legmegfelelőbb egyedi konstrukciót.
Bankfüggetlen hitelügyintézőnk nagy szakmai tapasztalattal és a bankok ajánlatánál kedvezőbb lehetőségekkel segíti a Családi ház finanszírozását. Támogatja Önt a legkedvezőbb konstrukció kiválasztásában. Teljeskörűen összeállítja a hitelkérelmet, és a hitel folyósításáig végigkíséri az egész folyamatot.
CSOK-kal és Babaváró hitellel kapcsolatban is keressen minket bizalommal!
Kereső ügyfeleinknek a hitelközvetítői szolgáltatásaink ingyenesek.
Az otthon érték. Az ingatlan üzlet.
Helyiségek
| Helyiség | Alapterület | Padlóburkolat |
|---|---|---|
| Nappali | 29.40 m2 | |
| Étkező | 19.50 m2 | |
| Konyha | 7.40 m2 | |
| Szoba | 10.60 m2 | |
| Fürdő | 2.20 m2 | |
| Közlekedő | 8.20 m2 | |
| Szoba | 15.60 m2 | |
| Szoba | 17.40 m2 | |
| Szoba | 26.30 m2 | |
| Fürdő | 12.10 m2 | |
| Közlekedő | 8.00 m2 | |
| Szoba | 13.80 m2 | |
| Szoba | 13.20 m2 | |
| Amerikai konyha | 19.30 m2 | |
| WC | 1.70 m2 |
Alaprajz



































Magyar 
