Kaposvár, Eladó Családi ház (#176257)
Tágas lakás, működő étterem – egyedülálló befektetés a Donnerben!
Az Openhouse Kaposvár Ingatlaniroda kínálatában eladó a #176257 hivatkozási számú kaposvári családi ház.
Otthon és vállalkozás egy helyen – páratlan lehetőség Kaposvár kertvárosi részén!
Kaposvár Donner városrészének csendes övezetében eladó egy különleges ingatlan, amely egyszerre biztosít kényelmes otthont és stabil megélhetést.
Az épület egy 4 egységes társasház része, melynek 2 egysége kerül értékesítésre – csomagban egy bejáratott, működő vendéglővel a földszinten és egy tágas, panorámás tetőtéri lakással.
Az épület 1998-ban épült Ytong téglából, Bramac cserépfedéssel, hőszigetelt fa nyílászárókkal. Összközműves, gázkazánról működtetett központi fűtéssel, szintenként külön mérőórákkal.
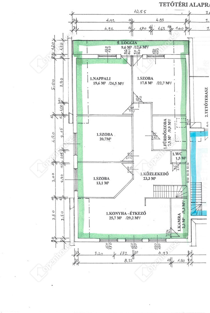
Tetőtéri lakás – 141 m²
A lakás kialakítása modern és élhető:
-
amerikai konyhás nappali,
-
4 külön nyíló hálószoba,
-
fürdőszoba, külön WC, kamra és közlekedő.
A nappaliból panorámás loggia nyílik, ahonnan szép kilátás tárul elénk.
A lakáshoz tartozik a földszinti lépcsőház és kazánház is.
Földszinti vendéglő – 146,5 m²
Az étterem teljesen felszerelt, bejáratott vendégkörrel, jelenleg is működő vállalkozásként adható át.
Belső tere 107 m²-es eladótérből áll, ehhez kapcsolódik előkészítő-konyha, 2db raktár, öltöző és 2 db wc.
A hangulatos, fedett kerthelyiség és a saját parkoló még vonzóbbá teszik a helyet.
További adottságok
-
Melléképületek: garázs, kocsibeálló, 2 tároló (összesen 40 m²)
-
Saját kertkapcsolat, gondozott udvar
-
A két egység külön albetéten van, ezért akár külön-külön is értékesíthető vagy hasznosítható és külön is forgalomképesek.
Miért egyedi ez az ajánlat?
-
Ritka, hogy egy működő, bejáratott vendéglő és egy ekkora, modern lakás együtt elérhető legyen
-
Az épület alig múlt 25 éves, jó állapotú, karbantartott
-
315 m²-nyi hasznos terület biztosítja a sokoldalú felhasználást
-
Befektetésként is kiemelkedő: az alsó szint akár két külön lakássá is alakítható
-
A lakás panorámás loggiával, tágas terekkel, a vendéglő pedig saját parkolóval és kerthelyiséggel rendelkezik
Ez az ingatlan stabil értéket, több lábon álló hasznosítási lehetőséget és otthon-vállalkozás kombinációt kínál egyben – Kaposvár kertvárosában, 400Ft/m2-s irányáron.
Ha felkeltette érdeklődését ez az eladó kaposvári családi ház, vagy bármely más családi ház és bővebb információt szeretne, keressen bizalommal.
Hivatkozási szám: #176257
Az Openhouse Kaposvár Ingatlaniroda tagjaként várom Önt az országos hálózatunk teljes kínálatával.
A családi ház vásárláshoz hitelt igényelne? Ingyenes hitelközvetítéssel segít Önnek bankfüggetlen hitelszakértőnk.
További szolgáltatásainkkal (pl. értékbecslés, energetikai tanúsítvány, jogi háttér) is segítjük Önt a vásárlásban.
Az otthon érték. Az ingatlan üzlet.
Helyiségek
| Helyiség | Alapterület | Padlóburkolat |
|---|---|---|
| Nappali | 19.60 m2 | |
| Szoba | 17.80 m2 | |
| Szoba | 20.70 m2 | |
| Szoba | 13.10 m2 | |
| Amerikai konyha | 25.70 m2 | |
| Fürdő | 7.50 m2 | |
| WC | 1.50 m2 | |
| Közlekedő | 23.30 m2 | |
| Kamra | 2.30 m2 | |
| Loggia | 9.60 m2 | |
| Lépcsőház | 10.80 m2 | |
| Kazánház | 16.50 m2 | |
| Eladótér | 107.00 m2 | |
| Raktár | 8.90 m2 | |
| Iroda | 3.70 m2 | |
| Konyha | 5.10 m2 | |
| Közlekedő | 12.40 m2 | |
| öltöző | 7.40 m2 | |
| WC | 1.00 m2 | |
| WC | 1.00 m2 |
Alaprajz



































Magyar 
