Székesfehérvár, Eladó Téglaépítésű lakás (#175706)
Eladó új építésű lakások a Sóstói tanösvény mellett
Az Openhouse Székesfehérvár Ingatlaniroda kínálatában eladó a #175706 hivatkozási számú székesfehérvári téglaépítésű lakás.
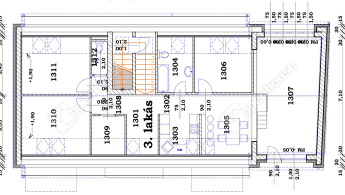
Székesfehérváron a Sóstói Tanösvény mellett épülő társasház exkluzív, egyedi kialakítású lakása. Az új építésű társasház ezen épületében három lakás található A 3-as lakás, nappali-konyhaétkező, három hálószoba, fürdőszoba, WC, tároló kialakítású. A modern megjelenés, a sóstói tanösvény páratlan kikapcsolódási lehetősége teszi egyedivé új otthonát, befektetését. A lakás a teljes második emeletet foglalja el és 95.58 m2 hasznos alapterületű, tetőtéri. Megbízható, régi partnerünk a beruházó! Az otthonát egyedi, szinteltolásos nappali teszi egyedivé, mely a képek között látványterven is megtalálható.
- tégla épület, 15-cm-es szigeteléssel
- három rétegű, műanyag nyílászárók
- energiatakarékos, hőszivattyús padlófűtés, egyedi mérővel
- választható burkolatok, szaniterek és beltéri ajtók
- alacsony rezsi
- kocsibeálló, garázs, tároló külön vásárolható
Ha felkeltette érdeklődését ez az eladó székesfehérvári téglaépítésű lakás, vagy bármely más téglaépítésű lakás és bővebb információt szeretne, keressen bizalommal.
Hivatkozási szám: #175706
Az Openhouse Székesfehérvár Ingatlaniroda tagjaként várom Önt az országos hálózatunk teljes kínálatával.
A téglaépítésű lakás vásárláshoz hitelt igényelne? Ingyenes hitelközvetítéssel segít Önnek bankfüggetlen hitelszakértőnk.
További szolgáltatásainkkal (pl. értékbecslés, energetikai tanúsítvány, jogi háttér) is segítjük Önt a vásárlásban.
Az otthon érték. Az ingatlan üzlet.
Helyiségek
| Helyiség | Alapterület | Padlóburkolat |
|---|---|---|
| Előszoba | 5.03 m2 | Járólap |
| Közlekedő | 2.64 m2 | Laminált padló |
| Gardrób | 2.70 m2 | Laminált padló |
| Fürdő | 5.05 m2 | Járólap |
| Étkező | 4.44 m2 | Laminált padló |
| Amerikai konyha | 3.47 m2 | Járólap |
| Nappali | 26.63 m2 | Laminált padló |
| Közlekedő | 3.57 m2 | Laminált padló |
| Szoba | 10.58 m2 | Laminált padló |
| Szoba | 10.17 m2 | Laminált padló |
| Szoba | 8.11 m2 | Laminált padló |
| WC | 1.19 m2 | Járólap |
Alaprajz
















Magyar 
