Monor, Eladó Telek (#175303)
Befektetési terület, csend, béke, nyugalom!
Az Openhouse Monor Ingatlaniroda kínálatában eladó a #175303 hivatkozási számú monori telek.
Monor Zártkerti részsén, eladó egy építési engedéllyel rendelkező 2.837m2 es telek terület.
Tervek szerint egy igényes 54m2 „Gazdasági épület” épült volna a hatalmas területre, melyen gyümölcsfák tömkelege található (cseresznye, körte, alma,).
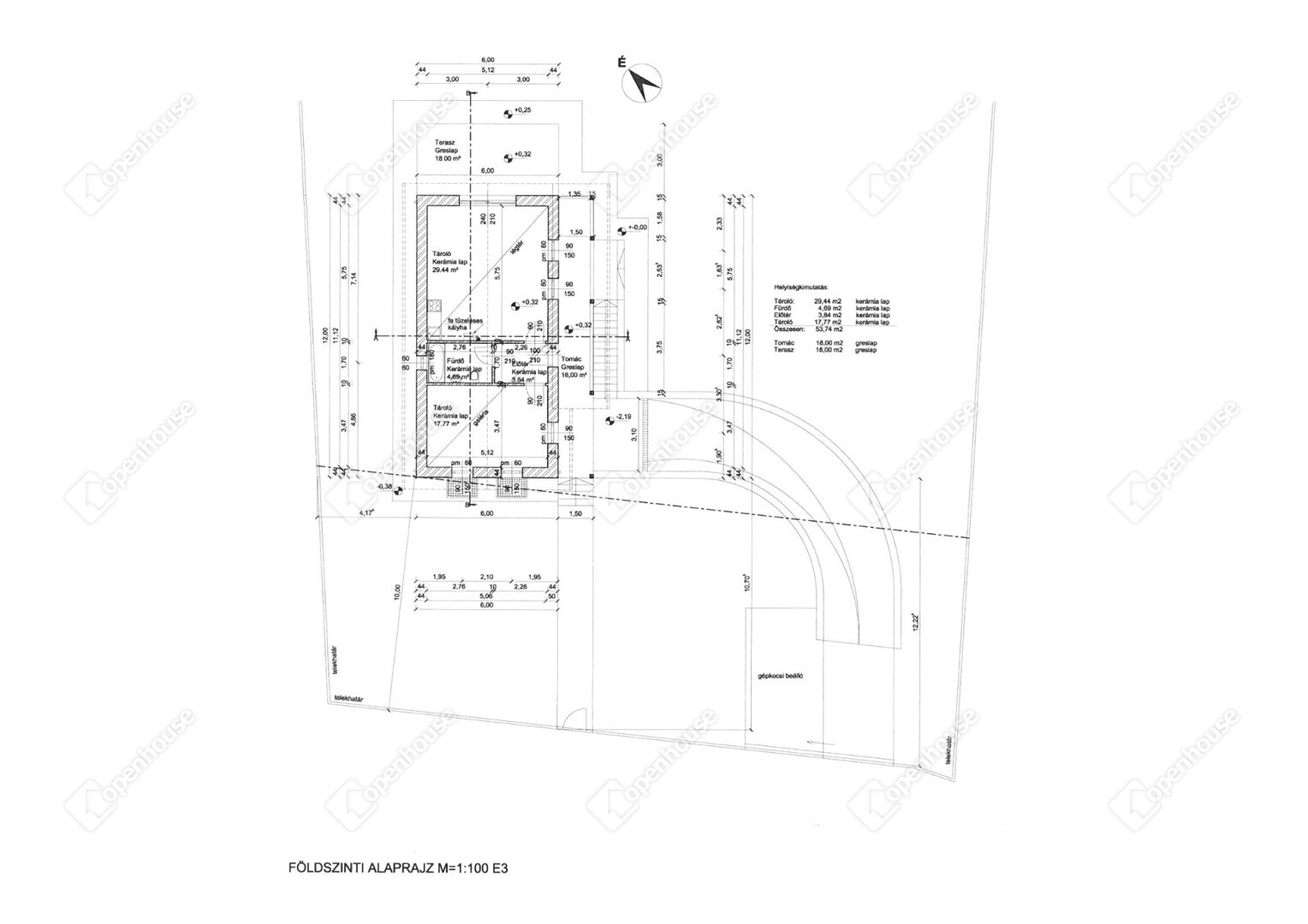
A gazdasági épület, Pince rész 58,24m2: Földszínt hasznos alapterülete: 53,74m2 + tornác: 18m2 + terasz 18m2. Leosztások: Tároló: 29,44m2, fürdő: 4,69m2, előtér: 3,84m2, tároló: 17,77m2.
Közművek: 2x32 amper áram + éjszakai áram került bevezetésre, vízellátást 75m mélyről jövő kristálytiszta víz látja el (kibetonozott aknában található).
Monoron egyik legszebb. és legmagasabb pontján található!
Teljes tervdokumentációval, és engedélyekkel rendelkezik.
Jöjjön és tekintse meg, Monor egyik legszebb, legcsendesebb pontját.
Ha felkeltette érdeklődését ez az eladó monori telek, vagy bármely más telek és bővebb információt szeretne, keressen bizalommal.
Hivatkozási szám: #175303
Az Openhouse Monor Ingatlaniroda tagjaként várom Önt az országos hálózatunk teljes kínálatával.
A telek vásárláshoz hitelt igényelne? Ingyenes hitelközvetítéssel segít Önnek bankfüggetlen hitelszakértőnk.
További szolgáltatásainkkal (pl. értékbecslés, energetikai tanúsítvány, jogi háttér) is segítjük Önt a vásárlásban.
Az otthon érték. Az ingatlan üzlet.
Helyiségek
| Helyiség | Alapterület | Padlóburkolat |
|---|---|---|
| Tároló | 29.00 m2 | Járólap |
| Fürdő | 5.00 m2 | Járólap |
| Előtér | 3.84 m2 | Járólap |
| Tároló | 17.00 m2 | Járólap |
| Biliárdszoba | 58.00 m2 | Járólap |
Alaprajz











Magyar 
