Miskolc, Eladó Sorház (#173939)
Panoráma, Presztízs, Jövő – Az Ön Új Rezidenciája Miskolc Rózsadombján!
Az Openhouse Miskolc Soltész Nagy Kálmán utcai Ingatlaniroda kínálatában eladó a #173939 hivatkozási számú miskolci sorház.
Panoráma, Presztízs, Jövő – Az Ön Új Rezidenciája Miskolc Rózsadombján!
Váltsa valóra álmait a Közdomb legexkluzívabb pontján!
Miskolc legújabb elit negyedében, a Százszorszép utca 1-3. szám alatt születik meg egy olyan, mindössze 4 lakásos privát projekt, amely újraértelmezi a modern sorházi életérzést. Itt nem csupán egy ingatlant vásárol, hanem egy életstílust, ahol a családi házak intimitása és a társasházak kényelme találkozik a legmagasabb szintű technológiával.
? Miért a Százszorszép Rezidencia a legjobb választás?
- Örök Panoráma & Tökéletes Tájolás: A délnyugati fekvésű lakásokat egész nap átjárja a természetes fény. Élvezze a zavartalan, elvehetetlen látványt a Bodótető lankáira és az esti fényekben úszó Avasi Kilátóra közvetlenül a teraszáról.
- A Jövő Technológiája – Nulla Rezsiköltség: Ez az otthon függetlenséget ad. A 10 kW-os, energiatárolóval felszerelt napelemes rendszer "sziget üzemmódban" is biztosítja az áramellátást, beleértve a saját elektromos autótöltőjét is. A levegő-víz hőszivattyús rendszer és a 3 rétegű argon üvegezés garantálja a maximális komfortot és a minimális fenntartási költséget.
- Mesteri Kialakítás 3 Szinten: 144 négyzetméternyi tiszta elegancia. A földszinten a közösségi élet és a kertkapcsolatos amerikai konyhás nappali dominál, míg az emeleti szinteken a szülői hálószoba (saját gardróbbal és fürdővel) és a gyerekszobák a zavartalan pihenés szigetei.
- Full-Service Kényelem: Felejtse el a felújítási stresszt! A lakásokat gépesített konyhával, prémium olasz hidegburkolatokkal és saját, utcafronti garázzsal adjuk át. Önnek csak a beköltözéssel kell foglalkoznia.
? Lokáció: Ahol a nyugalom és a város találkozik
Élje át a kertvárosi nyugalmat úgy, hogy közben a Városház tér gyalogosan 15 perc, autóval pedig mindössze 5 percre található.
Kivitelezés kezdete: 2026. április
Várható kulcsátadás: 2027. május
Ne érje be kevesebbel, mint a tökéletessel!
A lakások száma korlátozott – biztosítsa helyét Miskolc legmodernebb lakóközösségében még ma.
Miskolc hivatalos oldalán tájékozódhat a környék fejlesztéseiről, vagy használja a Google Maps szolgáltatását a pontos távolságok ellenőrzéséhez a Százszorszép utca és a belváros között.
Ha felkeltette érdeklődését ez az eladó miskolci sorház, vagy bármely más sorház és bővebb információt szeretne, keressen bizalommal.
Hivatkozási szám: #173939
Az Openhouse Miskolc Soltész Nagy Kálmán utcai Ingatlaniroda tagjaként várom Önt az országos hálózatunk teljes kínálatával.
A sorház vásárláshoz hitelt igényelne? Ingyenes hitelközvetítéssel segít Önnek bankfüggetlen hitelszakértőnk.
További szolgáltatásainkkal (pl. értékbecslés, energetikai tanúsítvány, jogi háttér) is segítjük Önt a vásárlásban.
Az otthon érték. Az ingatlan üzlet.
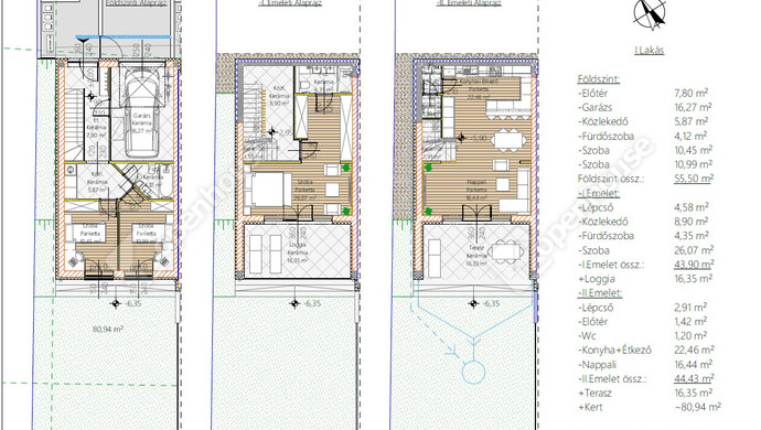
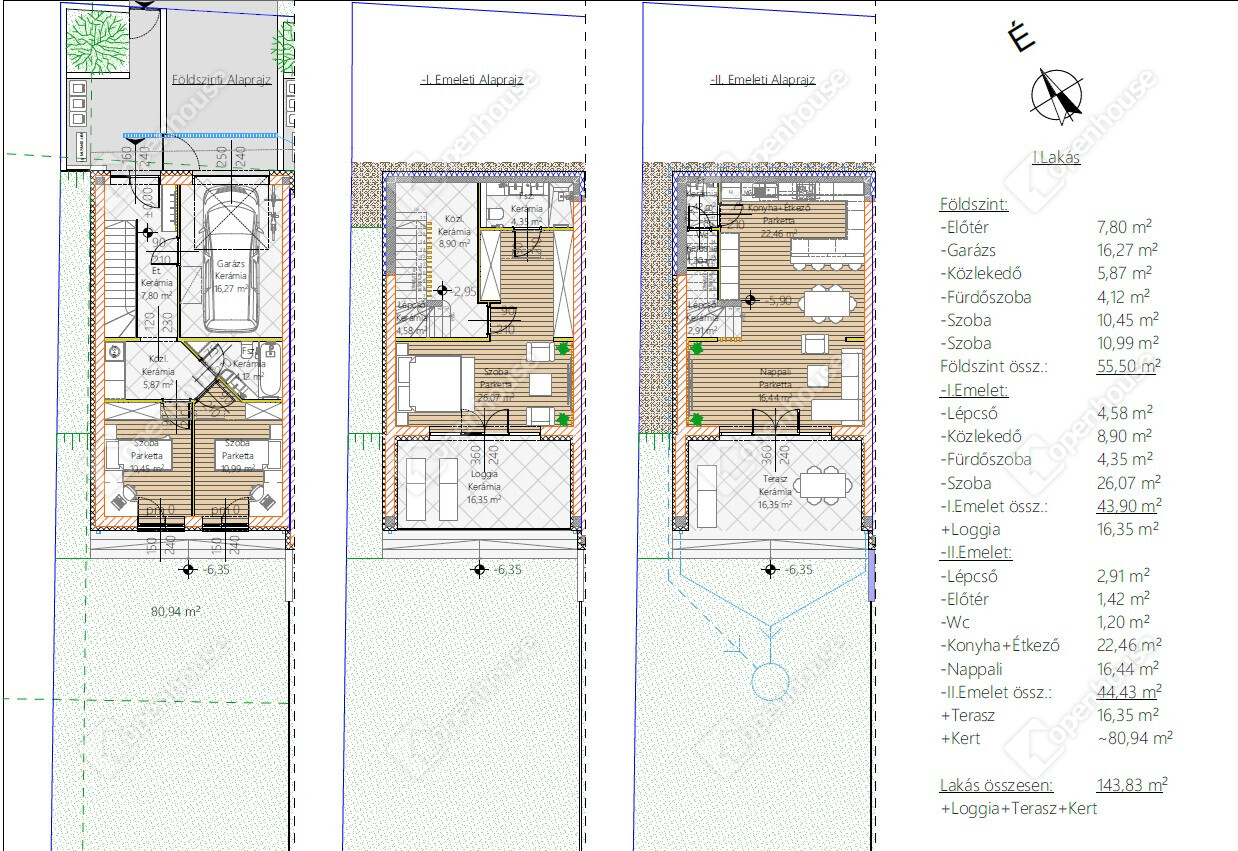
Helyiségek
| Helyiség | Alapterület | Padlóburkolat |
|---|---|---|
| Előtér | 7.80 m2 | Járólap |
| Garázs | 16.27 m2 | Járólap |
| Közlekedő | 5.87 m2 | Járólap |
| Fürdő | 4.12 m2 | Járólap |
| Szoba | 10.45 m2 | Laminált padló |
| Szoba | 10.99 m2 | Laminált padló |
| Lépcsőház | 4.58 m2 | Járólap |
| Közlekedő | 8.90 m2 | Járólap |
| Fürdő | 4.35 m2 | Járólap |
| Szoba | 26.07 m2 | Laminált padló |
| Erkély | 16.35 m2 | Járólap |
| Lépcsőház | 2.91 m2 | Járólap |
| Előtér | 1.42 m2 | Járólap |
| WC | 1.20 m2 | Járólap |
| Amerikai konyha | 22.46 m2 | Laminált padló |
| Nappali | 16.44 m2 | Laminált padló |
| Terasz | 16.35 m2 | Járólap |


























Magyar 
