Székesfehérvár, Eladó Ikerház (#173281)
Eladó ikerház Öreghegy
Az Openhouse Székesfehérvár Ingatlaniroda kínálatában eladó a #173281 hivatkozási számú székesfehérvári ikerház.
Székesfehérvári ingatlan iroda eladásra kínál minimás stílusban épükő ikerházakat Öreghegyen.
Lokáció: Székesfehérváron az Öreghegyen egy csendes és új parcellázású zsákutcában található az építkezés. A környéken csak új és szép megjelenésű ingatlanok találhatóak, az építkezés megközelítése új aszfaltos úton biztosított. A közelben megtalálható szupermarket, iskola, óvoda és buszmegálló is. A város és az autópálya is egyaránt könnyen megközelíthető 5-10 perces autóúttal.
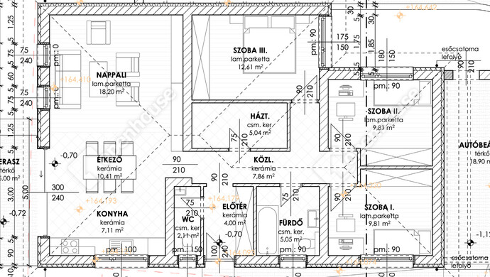
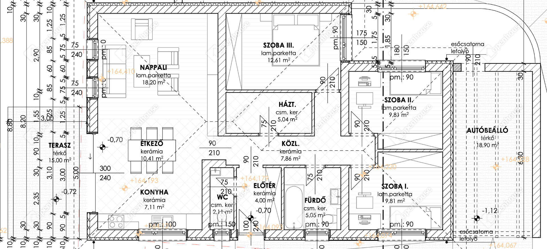
Az ingatlanról: Az ingatlan minőségi alapanyagok felhasználásával és a modern technológia alkalmazásával készül, a lehető legmagasabb színvonalon, minimás stílusban. A nettó alapterület 93m2, ami magába foglal egy hatalmas amerikai konyhás nappalit, 3 hálószobát, 1 fürdőszobát WC-vel és egy háztartási helyiséget. Az ingatlanhoz tartozik egy 19m2-es kocsibeálló és egy saját használatú 400m2-es kertrész is.
Műszaki paraméterek:
- 30-as Porotherm X Therm okostégla, 10-es tégla válaszfalak
- Helyben ácsolt kontyolt nyeregtető
- Terrán Synus beton cserép, Antracit színben
- 10cm Austrotherm AT-H80 homlokzati hőszigetelés
- 3 rétegű 5 légkamrás Anctracit nyílászárók
- Antracit színű elektromos redőny + szúnyogháló
- 15m2 terasz
- Hőszivattyú + padlófűtés (5db programozható digitális termosztáttal)
- 2db inverteres Klíma teljes kiépítéssel
- 200 literes melegvíz tároló
- H-tarifás mérőóra
- Riasztó, kamera és kaputelefon védőcsövezése és kábelezése
- Geberites Wc (2darab)
- Választható burkolatok (Hideg 7500Ft / m2) (Meleg 5000Ft / m2)
- Választható beltéri ajtók 80.000Ft/ darab
- Autóbeálló, pergola fedéssel
- Térköves munkálaton (autobeálló, járda stb...)
A kivitelező cégről: Az ingatlan építését egy több éve megbízhatóan működő Sárszentmihályi bejelentésű építőipari vállalkozás kordinálja. Több, már elkészült székesfehérváron is megtekinthető referencia ingatlant áll rendelkezésre, hogy Ön is meggyőződjön a megfelelő minőségű kivitelezésről. Az építkezés önerőből zajlik, az ingatlan fejlesztésre a kivitelező cégnek a tőke rendelkezésére áll.
FIzetési konstrukció: Rugalmas fizetési ütem biztosítja a gördülékeny együttműködést, ami minding a vásárló igényeihez megfelelően van igazítva.
Ha felkeltette érdeklődését ez az eladó székesfehérvári ikerház, vagy bármely más ikerház és bővebb információt szeretne, keressen bizalommal.
Hivatkozási szám: #173281
Az Openhouse Székesfehérvár Ingatlaniroda tagjaként várom Önt az országos hálózatunk teljes kínálatával.
A ikerház vásárláshoz hitelt igényelne? Ingyenes hitelközvetítéssel segít Önnek bankfüggetlen hitelszakértőnk.
További szolgáltatásainkkal (pl. értékbecslés, energetikai tanúsítvány, jogi háttér) is segítjük Önt a vásárlásban.
Az otthon érték. Az ingatlan üzlet.
Helyiségek
| Helyiség | Alapterület | Padlóburkolat |
|---|---|---|
| Nappali | 18.20 m2 | Járólap |
| Amerikai konyha | 7.11 m2 | Járólap |
| Étkező | 10.41 m2 | Járólap |
| Előtér | 4.00 m2 | Járólap |
| WC | 2.11 m2 | Járólap |
| Közlekedő | 7.86 m2 | Járólap |
| Fürdő | 5.05 m2 | Járólap |
| Szoba | 9.81 m2 | Laminált padló |
| Szoba | 9.81 m2 | Laminált padló |
| Szoba | 12.61 m2 | Laminált padló |
| Háztartási helyiség | 5.04 m2 | Járólap |
| Tetőterasz | 15.00 m2 | Téglapadló |
| Gépkocsibeálló | 18.90 m2 | Téglapadló |
Alaprajz















Magyar
Angol 
