Siófok, Eladó Társasházi lakás (#169411)
Új építésű központi társas házi lakás/üzlethelyiség
Az Openhouse Siófok kínálatában eladó a #169411 hivatkozási számú siófoki társasházi lakás.
A Siófok Fő tér közeli új építésű társasházi lakás/üzlethelyiség főbb paraméterei:
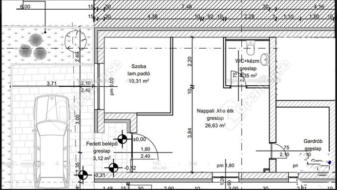
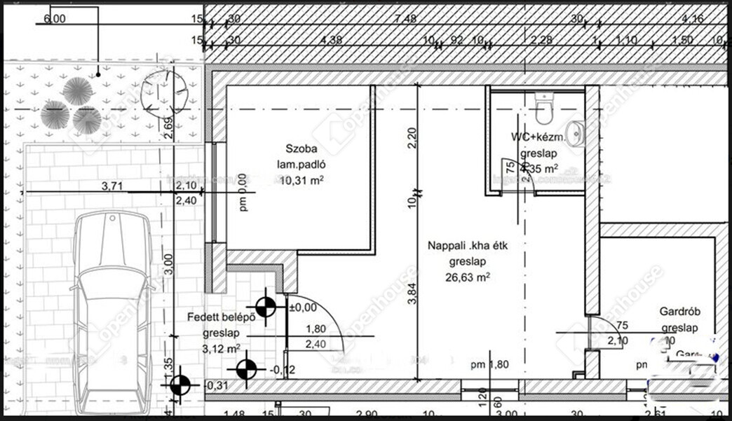
-Földszinti elhelyezkedés, 50m2 alapterületű 1+1 szobás. Tervek szerint üzlethelyiségként funkcionál, utcafrontos, saját parkolóhely tarozik hozzá az épület előtt, mely a vételár részét képezi!
-10 Lakásos épülő társasház, nyugodt környezetben, frekventált megközelítéssel
-Tégla építés, 15cm-es külső kőzeggyapot szigetelés
-Prémium minőségű 3 rétegű műanyag nyílászárók és bejárati ajtó
-Rejtett redőnytokok szúnyoghálóval (az ablakokon manuális, a teraszon automata működtetés)
-Hűtést-fűtés modern hőszivattyú látja el beltéri egységből, önálló mérőórával
-Várható közös költségbe foglalt tételek: udvar, kert rendben tartása valamint a közös helységek és az elektromos kapu villany díja
Ha felkeltette érdeklődését ez az eladó siófoki társasházi lakás, vagy bármely más társasházi lakás és bővebb információt szeretne, keressen bizalommal.
Hivatkozási szám: #169411
Az Openhouse Siófok tagjaként várom Önt az országos hálózatunk teljes kínálatával.
A társasházi lakás vásárláshoz hitelt igényelne? Ingyenes hitelközvetítéssel segít Önnek bankfüggetlen hitelszakértőnk.
További szolgáltatásainkkal (pl. értékbecslés, energetikai tanúsítvány, jogi háttér) is segítjük Önt a vásárlásban.
Az otthon érték. Az ingatlan üzlet.
Helyiségek
| Helyiség | Alapterület | Padlóburkolat |
|---|---|---|
| Nappali | 18.40 m2 | Járólap |
| Teakonyha | 9.35 m2 | Járólap |
| mosdó | 3.75 m2 | Járólap |
| Gardrób | 4.62 m2 | Járólap |
| Szoba | 5.18 m2 | Járólap |
| Terasz | 2.25 m2 | Kőburkolat |
Alaprajz





Magyar 
