Budapest XII. Ker., Eladó Téglaépítésű lakás (#179522)
Az Openhouse Budapest City Home Ingatlaniroda kínálatában eladó a #179522 BO azonosítójú Budapest XII. kerületi Téglaépítésű lakás.
Központi, mégis zöld környezetben, kivételesen karbantartott, hangulatos házban, magas minőségben felújított nívós lakás.
ÜDV ITTHON
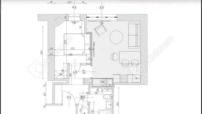
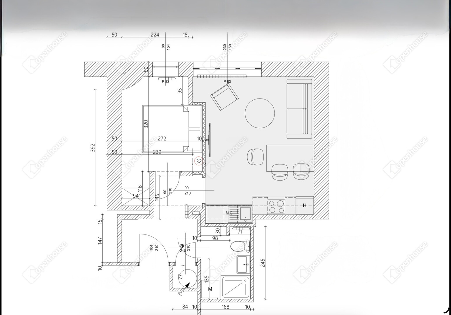
Budán a XII. kerület elegáns részén, a Levendula utca és Stromfeld Aurél út sarkán egy patinás Bauhaus jellegű társasházban egy 38m² alapterületű, nappali +1 hálószobás elrendezésű, K-i tájolású, napfényes, csendes, kettő darab 4m²-es tárolóval rendelkező lakás pár percre a MOM parktól.
MAGAZINBA ILLŐ LAKÁS
Csendes, utcai és egyben az előtte elnyúló kertre néző, földszinti, felújított, modern kialakítású lakás. Egy tágas amerikai-konyhás nappalival, kényelmes méretű hálószobával, sok beépített szekrénnyel és teljesen új bútorokkal került kialakításra. A felsoroltakon felül tartozik hozzá 2db 4m²-es tárol, ami a lakás meghosszabbításaként funkciónál. A praktikus elszeparált mosókonyha/kamra és beépített szekrények biztosítják a hétköznapok kényelmét.
_ Beépített szekrények, kellő tárolási kapacitással.
- Hatalmas ablakfelületeknek köszönhetően egész nap gyönyörűen világos.
A felújításról
- Új, fa 3 rétegű nyílászárók, elektromos redőnnyel és új fa biztonsági ajtóval, ügyelve a régi elemek stílusjegyeire.
- prémium minőségi termékekkel felújított, egyedi asztalos megoldásokkal
A lakás belső tere teljesen újragondolt: újonnan épített válaszfalakkal egy új alaprajz került kivitelezésre, ami a maximális térkihasználást és az élhetőséget reprezentálja.
Teljes körű műszaki felújítás történt, az összes elektromos, víz- és szennyvízvezeték cseréjével
A felújítás során kizárólag prémium minőségű anyagokat használtak és egyedi asztalos megoldások kerültek beépítésre
Maximálisan felszerelt, gépesített konyha, Bosch konyhai gépekkel
A tulajdonos különös gondossággal, legjobb tudása szerint, saját elvárásainak megfelelően, időt, pénzt, energiát nem kímélve készítette el. Szerencsés lesz, aki ide beköltözik.
STROMFELD AURÉL 18
Bauhaus stílusjegyekkel ellátott, tégla építésű, kiváltó homlokzatú társasház, ami mindössze 12 albetéttel rendelkezik. Összetartó, gondos lakóközösség jellemezi.
Kiemelném a bejárati ajtót, magát a bejáratot, a csodaszép art deco lámpákat, márvány burkolatot.
Rendezett, karbantartott, a közös területek tiszták és igényesek, öröm ide megérkezni.
Budapest egyik legkeresettebb, elegáns kerületében található. A környék biztonságos, csendes, és a zöldövezet közelsége miatt különösen vonzó azok számára, akik nyugodt, mégis jól megközelíthető lakóhelyet keresnek.
KINEK AJÁNLOM?
Ez az ingatlan tökéletes választás egyedülállók, párok és mindazok számára, akik szeretnének egy teljesen felújított, magas minőséget képviselő, kulcsrakész, modern, kényelmes és igényes otthont Buda szívében, de egy csendes, természetközeli környezetben.
PARKOLÁS
Az utcában mindig megoldott a parkolás, a Stromfeld Aurél úton díjmentesen parkolhat vagy a környező Levendula, Nárcisz utcákban ami fizetős övezetbe esik, lakcím bejelentkezés esetén éves parkolási jog kiválható, amivel kedvezményesen parkolhat. A környező utcákban viszont már ingyenes övezeti besorolás alá esnek.
Ha ragaszkodik, hogy féltve őrzött autója fűtött garázsban pihenjen, míg Ön nem használja, akkor van lehetőség a közeli és biztonságos Hegyvidék központ mélygarázsában bérlésre, ahol havi díj ellenében parkolhat, 24 órás kamerarendszerrel és autómosóval is ellátott.
TÁROLÁS
- Kettő darab 4m2-es privát tároló a társasház földszintjén, ami kényelmes és biztonságos tárolási lehetőséget biztosít. Ez benne van a lakás vételárában.
-Továbbá a lakók rendelkezésében áll egy nagyméretű óvóhely, ami jelenleg közös használatú tárolóként funkciónál.
NÉMETVÖLGY
A Stromfeld Aurél út XII. kerület Orbánhegy - Németvölgy határán helyezkedik el, melyet azért kedvelnek, mert központi, mégis zöld, csendes, fákkal szegélyezett. Rendkívül hangulatos, minden a közvetlen közelben, amire a mindennapok során szüksége lehet.
A környék legnagyobb előnyei:
- közvetlen közelben lévő parkok - Gesztenyés-kert, Budai Sas-hegy természetvédelmi terület
- MOM Park bevásárló központ, mely Budapest egyik legexkluzívabb plázája
- Szórakozási lehetőségek: Cinema MOM, Bowling, rendezvények a Budapesti Kongresszusi Központban
- jó minőségű, friss termelői áruk a megfelelő táplálkozáshoz a Csörsz utcában az ÖKOPIACON
- egészségügyi ellátásra a Wáberer Medical Center van legközelebb
- számos sportolási lehetőség a közelben pl.: MOM Sport (uszoda, foci, kosár, konditerem stb.)
- az egyetemek 20 percen belül vannak (Corvinus, BME, ELTE)
- közelben több játszótér is található
- infrastrukturálisan rendkívül jól felszerelt: bölcsőde, óvoda, Kormányablak, Önkormányzat, gyógyszertár, posta, bankok, fodrászat stb.
PROGRAM AJÁNLÓ
- Brunch a Villa Bagatelle-ben
- Átmozgató edzés az Oxygen Naphegy Wellnesben
- Gyertyafényes vacsora a Félix Kitchen&Bar-ban
- Esti csillagnézés a közeli Fátra térről
AUTÓS KÖZLEKEDÉS
Pest felé a legrövidebb út az Erzsébet hídon vezet át. Ha Balatonra menne, akkor pár perc alatt M1-M7 bevezetőjén találhatja magát.
A hegyen keresztül még a legnagyobb dugóban is könnyen megközelíthető a II, III és a XI kerület.
TÖMEGKÖZLEKEDÉS:
Az utca könnyen megközelíthető tömegközlekedéssel: több busz- és villamosvonal is a közelben található, amelyek gyorsan elérhetővé teszik a belvárost és a környező kerületeket.
Legközelebbi csatlakozási pontok:
Buszok:
- Németvölgyi út megálló - 102, 105, 112
Villamos:
- Apor Vilmos tér megálló - 59
MOL BUBI
A legközelebbi bicikli gyűjtőhely a MOM Kulturális Központ előtt található.
Ez a lakás igazi ritkaság, hiszen egyesíti a városi élet kényelmét a zöldövezet nyugalmával – ne hagyja ki! Várom megtisztelő hívását!
----------------------------------------------
Díjmentes, bankfüggetlen hiteltanácsadással támogatjuk vevő ügyfeleinket a számukra legelőnyösebb finanszírozási döntések meghozatalában. Opcionálisan igénybe vehető kiegészítő szolgáltatásainkkal – mint ügyvédi közreműködés, energetikai tanúsítvány vagy villamos biztonsági felülvizsgálat – teljes körű szakmai támogatást nyújtunk az adásvétel folyamatának minden egyes lépésénél.
----------------------------------------------
A hirdetésben szereplő információk tájékoztató jellegűek. A tévedés és az árváltoztatás jogát fenntartjuk. Az esetleges elírásokért és technikai hibákért felelősséget nem vállalunk.
Ön is ingatlant keres? Válassza Irodánkat!
Amennyiben a #179522 BO azonosítójú, Budapest XII. kerületi eladó Téglaépítésű lakás vagy bármely, az Openhouse hálózat kínálatában található ingatlan felkeltette érdeklődését, kérem, hívjon bizalommal!
SEGÍTÜNK, INTÉZZEN VELÜNK MINDENT EGY HELYEN!
Már megtalálta vagy még keresi „álmai otthonát”, de nem rendelkezik a megvásárlásához szükséges teljes vételárral?
Ne járjon bankról bankra!
Hitelszakértőnk, legyen szó akár piaci, akár államilag támogatott hitelről vagy vissza nem térítendő támogatásról, megtalálja az Önnek legmegfelelőbb egyedi konstrukciót.
Bankfüggetlen hitelügyintézőnk nagy szakmai tapasztalattal és a bankok ajánlatánál kedvezőbb lehetőségekkel segíti a Téglaépítésű lakás finanszírozását. Támogatja Önt a legkedvezőbb konstrukció kiválasztásában. Teljeskörűen összeállítja a hitelkérelmet, és a hitel folyósításáig végigkíséri az egész folyamatot.
CSOK-kal és Babaváró hitellel kapcsolatban is keressen minket bizalommal!
Kereső ügyfeleinknek a hitelközvetítői szolgáltatásaink ingyenesek.
Az otthon érték. Az ingatlan üzlet.
Helyiségek
| Helyiség | Alapterület | Padlóburkolat |
|---|---|---|
| Előszoba | 4.00 m2 | |
| Háztartási helyiség | 0.65 m2 | |
| Fürdő | 4.20 m2 | |
| Szoba | 9.20 m2 | |
| Közlekedő | 2.00 m2 | |
| Amerikai konyha | 18.00 m2 |
Alaprajz
























Magyar
Angol 
