Győr, Eladó Társasházi lakás (#178878)
Otthon a jövő szívében
Az Openhouse Győr - Belváros Ingatlaniroda kínálatában eladó a #178878 hivatkozási számú győri társasházi lakás.
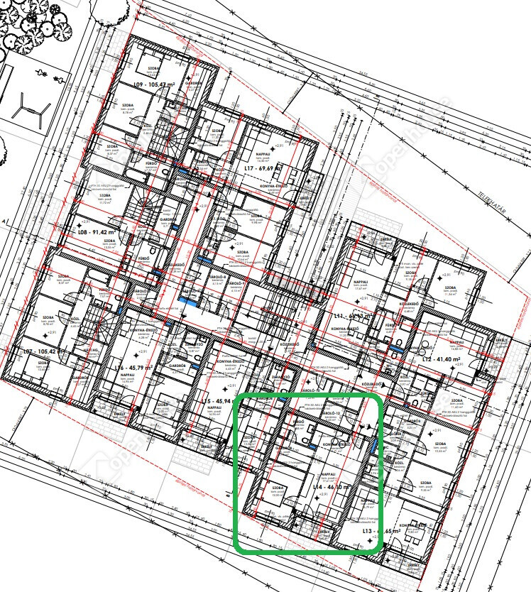
L14 számú lakás: 1. emeleti 46,1 m2 alapterületű, 1 szoba nappali elrendezésű, 3,6 m2 erkéllyel.
✨ Prémium otthon, kulcsrakészen
A Szitásdomb II lakóparkban, Győr közvetlen közelében kínáljuk ezt az 1. emeleti 46,1 m2 alapterületű, 1 szoba nappali elrendezésű, 3,6 m2 erkéllyel, kulcsrakész állapotban.
✨Vámosszabadi – nyugodt, zöld környezet, mégis Győr belvárosa 5 percen belül elérhető.
✨ Miért előny a kulcsrakész megoldás?
A kulcsrakész kivitelezés azt jelenti, hogy nem kell kivitelezőkkel egyeztetnie, nem kell döntéseket sürgősen meghoznia, és nem érik kellemetlen meglepetések.
Az ár teljes körűen tartalmazza a burkolatokat, szanitereket és belső műszaki megodásokat – Önnek csak be kell költöznie és élveznie az új otthonát. (Az ár nem tartalmazza a konyhabútort)
- Letisztult alap, személyre szabható részletek
A lakások kialakítása során olyan időtálló, semleges szín- és anyagvilágot választottunk, amelyben mindenki könnyen megtalálja a saját stílusát – legyen szó modern, skandináv vagy elegáns enteriőrről.
Amennyiben mégis egyedi elképzelései vannak, lehetőség van arra, hogy a lakást az Ön ízlésének megfelelően alakítsuk ki.
Vegye fel velünk a kapcsolatot, és részletesen bemutatjuk, milyen módosításokra, alternatív megoldásokra van lehetőség – hogy az otthona valóban Önt tükrözze.
✨Prémium műszaki tartalom:
-
Téglaszerkezet, 20 cm külső hőszigeteléssel
-
Hőhídmentes kialakítás, erkélyeknél hőhídmegszakítókkal
-
Házközpontú fűtés, lakásonként egyedi hőmennyiségmérő
-
Padlófűtés minden helyiségben
-
3 rétegű hőszigetelt nyílászárók
-
Klíma előkészítés
-
Fürdőszobában törölközőszárító radiátor
✨Gépkocsi beálló, tároló:
-
Zárt udvari autóbeálló vásárolható – 2.500.000 Ft
-
Tároló igény szerint
Ez az otthon biztonságot, kényelmet és szabadságot ad egyszerre: készen áll a beköltözésre, mégis lehetőséget ad az egyedi igények megvalósítására.
Keressen minket bizalommal, és elmondjuk, hogyan tudjuk pontosan az Ön elképzeléseihez igazítani.
Ha felkeltette érdeklődését ez az eladó győri társasházi lakás, vagy bármely más társasházi lakás és bővebb információt szeretne, keressen bizalommal.
Hivatkozási szám: #178878
Az Openhouse Győr - Belváros Ingatlaniroda tagjaként várom Önt az országos hálózatunk teljes kínálatával.
A társasházi lakás vásárláshoz hitelt igényelne? Ingyenes hitelközvetítéssel segít Önnek bankfüggetlen hitelszakértőnk.
További szolgáltatásainkkal (pl. értékbecslés, energetikai tanúsítvány, jogi háttér) is segítjük Önt a vásárlásban.
Az otthon érték. Az ingatlan üzlet.
Helyiségek
| Helyiség | Alapterület | Padlóburkolat |
|---|---|---|
| Erkély | 3.60 m2 | Járólap |
| Amerikai konyha | 6.71 m2 | Járólap |
| Fürdő | 4.68 m2 | Járólap |
| Gardrób | 5.10 m2 | Laminált padló |
| Nappali | 17.61 m2 | Laminált padló |
| Szoba | 12.00 m2 | Laminált padló |
Alaprajz







Magyar 
