Szeged, Eladó Családi ház (#178847)
Családok álma Kiskundorozsma szívében – tágas, felújított, gondozott otthon eladó!
Az Openhouse Szeged Ingatlaniroda kínálatában eladó a #178847 hivatkozási számú szegedi családi ház.
Családok álma Kiskundorozsma szívében – tágas, felújított, gondozott otthon eladó!
Szeged egyik legkedveltebb, csendes és nyugodt, mégis kiváló közlekedéssel rendelkező városrészén, Kiskundorozsma Szegedhez legközelebbi részén kínáljuk eladásra ezt a szerethető, meleg hangulatú családi házat, amely minden adottságával a kényelmes családi életet szolgálja.
Miért ideális családoknak?
-
Nyugalom és biztonságos környék – mégis percekre Szeged belvárosától
-
Buszmegálló pár lépésre – autóval és tömegközlekedéssel is könnyen elérhető minden
-
Gyors autópálya kapcsolat – ideális, ha munkába vagy iskolába ingázol
-
569 m² összközműves, rendezett telek – gondozott kert, árnyat adó fák, sok hely játszani és pihenni
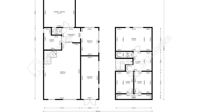
A ház főbb jellemzői
-
Két szinten, praktikus és családbarát elosztással
-
Tágas, egybenyitott nappali, amely a családi élet központja
-
A nappaliban búbos kemence – különleges hangulat, valódi otthonosság
-
Modern, felújított beépített konyha kemencével (2020)
-
Földszinten: kádas–tusolós fürdőszoba, külön WC
-
Emeleten: három különnyíló szoba, saját WC, erkély
-
20 m²-es fedett terasz – családi étkezések, baráti összejövetelek tökéletes helyszíne
-
Garázs + gépkocsi beálló, valamint beton alapra épült kerti tároló
Felújítások, amelyek értéket teremtenek:
-
2016 – általános felújítás
-
2020 – 15 cm homlokzati szigetelés, konyha felújítás
-
2023 – tetőfelújítás, 30 cm kőzetgyapot tetőszigetelés
-
Gáz-cirkó fűtés + klíma
-
Korszerű, energiatakarékos műszaki állapot
Egy valódi otthon, ahol a család minden tagja megtalálja a helyét
A tágas terek, a hatalmas nappali, a hangulatos kemence, a gondozott kert és a praktikus kialakítás mind azt szolgálják, hogy ez a ház ne csupán egy ingatlan legyen — hanem az a hely, ahová jó hazaérkezni.
Ha szeretnéd megtekinteni, vagy kérdésed van, írj bátran — örömmel segítek!
Ha felkeltette érdeklődését ez az eladó szegedi családi ház, vagy bármely más családi ház és bővebb információt szeretne, keressen bizalommal.
Hivatkozási szám: #178847
Az Openhouse Szeged Ingatlaniroda tagjaként várom Önt az országos hálózatunk teljes kínálatával.
A családi ház vásárláshoz hitelt igényelne? Ingyenes hitelközvetítéssel segít Önnek bankfüggetlen hitelszakértőnk.
További szolgáltatásainkkal (pl. értékbecslés, energetikai tanúsítvány, jogi háttér) is segítjük Önt a vásárlásban.
Az otthon érték. Az ingatlan üzlet.
Alaprajz




























Magyar
Angol
Francia 
