Győr, Eladó Társasházi lakás (#178496)
Szitásdomb II - n eladó....
Az Openhouse Győr - Belváros Ingatlaniroda kínálatában eladó a #178496 hivatkozási számú győri társasházi lakás.
Győr-Belváros Openhouse ingatlaniroda eladásra kínál új építésű lakásokat Szitásdomb II-n, újonnan kialakított, kertvárosias lakókörnyezetben, Győr közvetlen közelében.
Szitásdomb II lakópark a közkedvelt, már megépült Szitásdomb lakópark folytatásaként kerül kiépítésre, közigazgatásilag Vámosszabadihoz tartozik, de Győr belvárosa 10 percen belül elérhető.
- 3 szintes épület
- 35 db lakás , különböző méretekben
- 30-as porotherm falazat
- 15 cm homlokzati hőszigetelés
- házközponti fűtés levegő - víz hőszivattyúval
- padló és mennyezet fűtéssel szerelve , egyedi hőmennyiség mérővel
- hőszivattyúk nyáron a hűtést is biztosítják
- tároló ( korlátozott számban)
- beálló
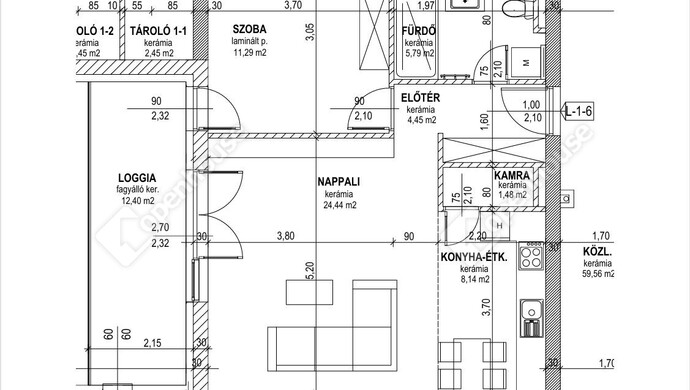
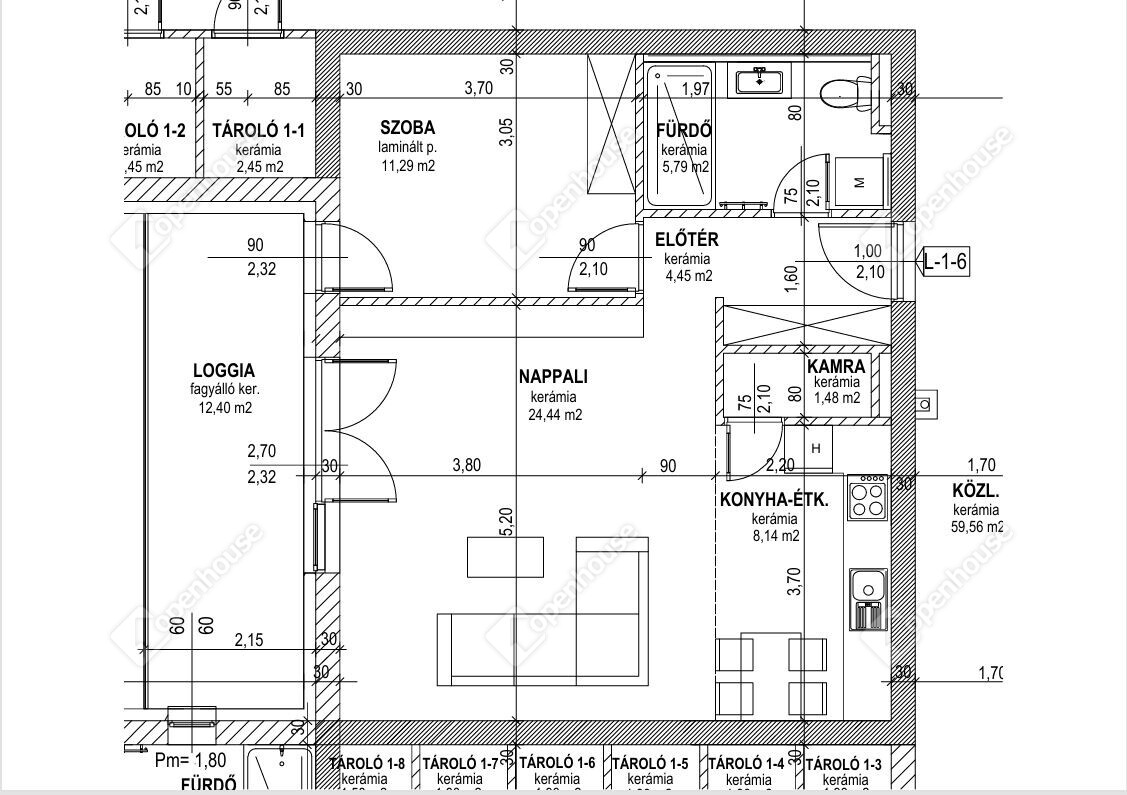
- L1.6 számú lakás 55,59 m2 + 12,4 m2 erkély ( nappali + 1 szoba)
- Ár : 61.790.000,-
Ha felkeltette érdeklődését ez az eladó győri társasházi lakás, vagy bármely más társasházi lakás és bővebb információt szeretne, keressen bizalommal.
Hivatkozási szám: #178496
Az Openhouse Győr - Belváros Ingatlaniroda tagjaként várom Önt az országos hálózatunk teljes kínálatával.
A társasházi lakás vásárláshoz hitelt igényelne? Ingyenes hitelközvetítéssel segít Önnek bankfüggetlen hitelszakértőnk.
További szolgáltatásainkkal (pl. értékbecslés, energetikai tanúsítvány, jogi háttér) is segítjük Önt a vásárlásban.
Az otthon érték. Az ingatlan üzlet.
Helyiségek
| Helyiség | Alapterület | Padlóburkolat |
|---|---|---|
| Amerikai konyha | 8.14 m2 | Burkolat nélküli |
| Nappali | 24.44 m2 | Burkolat nélküli |
| Szoba | 11.29 m2 | Burkolat nélküli |
| Előtér | 4.45 m2 | Burkolat nélküli |
| Fürdő | 5.79 m2 | Burkolat nélküli |
| Erkély | 12.40 m2 | Burkolat nélküli |
| Kamra | 1.48 m2 | Burkolat nélküli |
Alaprajz








Magyar 
