Nyúl, Eladó Családi ház (#178203)
Családi otthon Nyúl központi részén
Az Openhouse Center - Győr Ingatlaniroda kínálatában eladó a #178203 hivatkozási számú nyúli családi ház.
Nyúlon, Győr-Moson-Sopron vármegye egyik legdinamikusabban fejlődő településén, egy tágas, csendes, rendezett utcában, 170,5 m²-es, amerikai típusú családi ház várja új tulajdonosát.
Az ingatlan téglaépítésű, folyamatosan karbantartott és kiváló állapotú.
A ház ideális választás nagyobb családoknak, akik modern kényelmet, alacsony fenntartási költségeket és nyugodt környezetet keresnek, mégis közel a város nyújtotta lehetőségekhez.
Főbb jellemzők:
-
45 m²-es amerikai konyhás nappali
-
3 hálószoba + gardrób
-
Gépesített, egyedi tervezésű konyha sok tárolóval és kamraszekrénnyel
-
Beépített gardrób és modern, egyedi bútorok
-
Garázs motoros garázskapuval (Normstahl)
-
Riasztórendszer, térkövezett udvar, kovácsoltvas kerítés
-
775 m²-es, ÉK–DNY fekvésű telek, 17,5 méter széles utcafronttal
Műszaki tartalom:
-
Leier tégla falazat + 15 cm hőszigetelés
-
Travertin mészkőburkolat a homlokzaton és a teraszokon
-
Betonfödém, Leier barna betoncserép tető
-
Kondenzációs gázkazán, egyedi termosztátos helyiségekkel
-
Padló- és falfűtés a szobákban, padlófűtés az egyéb helyiségekben
-
Gree inverteres klíma
-
Kandalló és fatüzelésű kazán előkészítés
-
3 rétegű, hőszigetelt nyílászárók alumínium redőnnyel
-
Melegvíz recirkulációs kör
-
Energiahatékony, minimális rezsijű otthon
Környék:
A ház faluközponti elhelyezkedésű, minden fontos intézmény (posta, orvosi rendelő, iskola, óvoda, bölcsőde, sportpálya, bolt) néhány perc sétára található.
Győr autóval 10–15 perc alatt elérhető, így a település ideális választás azoknak, akik városközeli, mégis nyugodt életre vágynak.
Ez a nyúli családi ház minőségi kivitelezésével, átgondolt elrendezésével és energiatakarékos megoldásaival valódi értéket képvisel.
Költözhető állapotban, akár rövid időn belül birtokba vehető!
Ha felkeltette érdeklődését ez az eladó nyúli családi ház, vagy bármely más családi ház és bővebb információt szeretne, keressen bizalommal.
Hivatkozási szám: #178203
Az Openhouse Center - Győr Ingatlaniroda tagjaként várom Önt az országos hálózatunk teljes kínálatával.
A családi ház vásárláshoz hitelt igényelne? Ingyenes hitelközvetítéssel segít Önnek bankfüggetlen hitelszakértőnk.
További szolgáltatásainkkal (pl. értékbecslés, energetikai tanúsítvány, jogi háttér) is segítjük Önt a vásárlásban.
Az otthon érték. Az ingatlan üzlet.
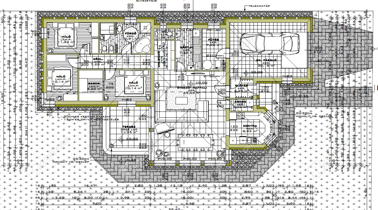
Helyiségek
| Helyiség | Alapterület | Padlóburkolat |
|---|---|---|
| Garázs | 30.00 m2 | Járólap |
| Tároló | 7.00 m2 | Járólap |
| Háztartási helyiség | 7.00 m2 | Járólap |
| Előszoba | 3.00 m2 | Járólap |
| Kamra | 2.00 m2 | Járólap |
| Konyha | 8.00 m2 | Járólap |
| Nappali | 45.00 m2 | Járólap |
| Közlekedő | 4.00 m2 | Járólap |
| WC | 1.00 m2 | Járólap |
| Fürdő | 10.00 m2 | Járólap |
| Szoba | 11.00 m2 | Laminált padló |
| Szoba | 10.00 m2 | Laminált padló |
| Szoba | 15.00 m2 | Laminált padló |
| Terasz | 11.00 m2 | Járólap |
Alaprajz

















Magyar 
