Nyáregyháza, Eladó Családi ház (#178180)
Egyedülálló lehetőség! Új építésű, önálló családi ház Nyáregyházán – 92 m², 833 m² telekkel!
Az Openhouse Monor Ingatlaniroda kínálatában eladó a #178180 hivatkozási számú nyáregyházi családi ház.
Eladásra kínálunk egy új építésű, önálló családi házat Nyáregyházán, csendes, rendezett környezetben.
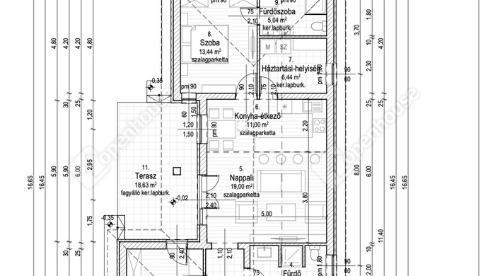
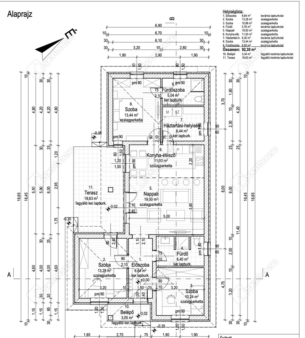
Az ingatlan 92,3 m²-es, 3 szoba + nappalis, tágas terekkel és kiváló elrendezéssel.
A ház 833 m²-es, saját, körbekerített telken helyezkedik el – tökéletes választás családoknak, akik szeretnék élvezni a nyugodt kertvárosi életet, modern kényelemmel párosítva.
- Műszaki tartalom:
-
Hőszivattyús fűtésrendszer (padlófűtéssel)
-
A+ energetikai besorolás – alacsony fenntartási költségek
-
3 rétegű, hő- és hangszigetelt nyílászárók
-
Tágas nappali és napfényes szobák
- Infrastruktúra és elhelyezkedés
-
Bölcsőde, óvoda, iskola, kisbolt, buszmegálló 10–15 perc sétán belül
-
Könnyen megközelíthető: 4-es főút, M4, 405-ös és M5 autóút
-
Budapest kb. 30 perc alatt elérhető autóval
Megbízható kivitelező által épített, referenciákkal rendelkező projekt, személyesen is megtekinthető korábbi munkákkal.
✨ Modern technológia, kiváló elhelyezkedés, saját telek – ritka lehetőség a piacon!
Ha felkeltette érdeklődését ez az eladó nyáregyházi családi ház, vagy bármely más családi ház és bővebb információt szeretne, keressen bizalommal.
Hivatkozási szám: #178180
Az Openhouse Monor Ingatlaniroda tagjaként várom Önt az országos hálózatunk teljes kínálatával.
A családi ház vásárláshoz hitelt igényelne? Ingyenes hitelközvetítéssel segít Önnek bankfüggetlen hitelszakértőnk.
További szolgáltatásainkkal (pl. értékbecslés, energetikai tanúsítvány, jogi háttér) is segítjük Önt a vásárlásban.
Az otthon érték. Az ingatlan üzlet.
Helyiségek
| Helyiség | Alapterület | Padlóburkolat |
|---|---|---|
| Előszoba | 6.64 m2 | Járólap |
| Szoba | 13.28 m2 | Laminált padló |
| Szoba | 10.88 m2 | Laminált padló |
| Fürdő | 5.76 m2 | Járólap |
| Nappali | 19.00 m2 | Laminált padló |
| Konyha | 11.00 m2 | Járólap |
| Háztartási helyiség | 6.30 m2 | Járólap |
| Szoba | 13.44 m2 | Laminált padló |
| Fürdő | 6.00 m2 | Járólap |
| Terasz | 18.63 m2 | Járólap |
| Terasz | 3.34 m2 | Járólap |
Alaprajz







Magyar 
