Budapest XVII. Ker., Eladó Családi ház (#178073)
Az Openhouse Budapest City Home Ingatlaniroda kínálatában eladó a #178073 BO azonosítójú Budapest XVII. kerületi Családi ház.
A Rákoskert domboldalában, a Fuvaros utcában található családi ház a felújítás után ideális otthona lehet nagycsaládnak vagy 2 generációnak is.
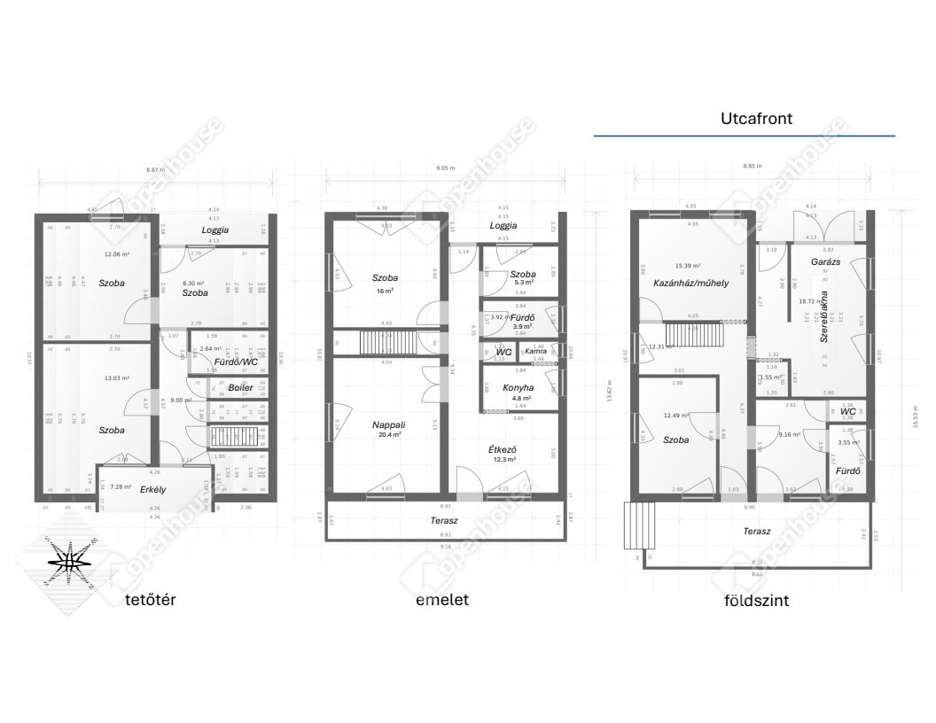
A ház egy 725 nm-es lejtős telekre épült a 80-as évek végén. Három szinten, 2 külön lakrész és akár 7 szoba is kialakítható. Az épület statikailag rendben van, nem sülyed, nem vizesedik.
ALSÓ SZINT:
Az utca felőli oldalon egy tágas garázs található, szerelőaknával. Mellette a kazánház-műhely-tároló. Az udvar felől egy garzon lakás lett kialakítva, lejtős telek révén ez egy földszinti lakás, nem szuterén. Szoba, konyha-étkező, fürdőszoba, WC. Közvetlen kijárattal a kertbe, egy nagy teraszra. A lakás a garázs felől ajtóval leválasztható, az utca és a kert felől is megközelíthető.
KÖZÉPSŐ SZINT:
Kis ráfordítással gyorsan lakhatóvá tehető, nappali + 2 szoba, étkező, konyha, kamra, fürdőszoba, WC kialakításban. Az étkezőhöz kapcsolódó terasz nyáron árnyékos, ideális kiterjesztése az étkezőnek, grillező és pihenőhely lehet.
TETŐTÉR:
A tetőtérben 3 szoba, fürdőszoba, WC, tároló helyiségek kialakítása kezdődött meg. A tetőtéri erkélyről a kert rendezése után a szemközti dombok panorámája tárulhat elénk.
GÉPÉSZET, MŰSZAKI PARAMÉTEREK:
A ház elkezdett felújítása során az elektromos hálózat teljesen elkészült. Új kondenzációs gázkazán került beépítésre, meghagyva a régi vegyestüzelésű lehetőséget is. Jelenleg a meleg vizet a tetőtérben elhelyezett 120 literes villanybojler szolgáltatja, de ráköthető az új gázkazánra is.
Az épület teherhordó falai 40 cm vastag falazóblokkból készültek, a fa nyílászárók hőszigetelt üvegezésűek.
Az udvar hátsó részén található még egy 30 nm hasznos alapterületű tégla épület, műhely-raktár funkciókkal.
Az utcáról lehetőség van még több gépkocsi beállására is.
RÁKOSKERT:
A zöldövezeti nyugalom Budapest szélén. Azoknak ideális, akik szeretnének Budapesten élni, de a kertes házas, zöldövezeti környezetet, a nyugalmat és a közösségi életet részesítik előnyben. Rákoskert népszerű lakóhely, ami főként a kertvárosi jellegének és a természeti közelségének köszönhető.
A természet közelség és a magasabb fekvés:
•Kertvárosi hangulat: A városrész jellege a budai kerületekhez hasonlít, sok utcája lejtős, ami egyedi látképet kölcsönöz neki. A kellemes környezet miatt kedvelt lakóterületnek számít.
•Vidadomb: Rákoskert legmagasabb pontja (kb. 200 méter), ahonnan szép panoráma nyílik a közeli védett Merzse-mocsárra és a Ferihegyi repülőtérre. A domb a helyi közösségi élet fontos helyszíne, ahol rendszeresen rendeznek koncerteket, ünnepségeket. Itt található játszótér, focipálya és felnőtt kondipark is.
•Merzse-mocsár: A XVII. kerület területén található a 27 hektáros Merzse-mocsár, amely Budapest egyik legháborítatlanabb vizes élőhelye és természetvédelmi terület, ami ideális célpont a természetkedvelőknek, futóknak, kirándulóknak.
Tömegközlekedéshez a buszmegálló pár perc séta. A XVII. kerület központja, a Fő tér (piac, szakorvosi rendelő, Polgármesteri Hivatal, bankfiókok, gyógyszertár, üzletek, cukrászda, ……..) 15 perc alatt elérhető.
Gépkocsival az M0 5 perc. A maglódi bevásárlóközpont (Auchan, Decathlon, Bauhaus) szintén. Liszt Ferenc Repülőtér 15 perc.
Ön is ingatlant keres? Válassza Irodánkat!
Amennyiben a #178073 BO azonosítójú, Budapest XVII. kerületi eladó Családi ház vagy bármely, az Openhouse hálózat kínálatában található ingatlan felkeltette érdeklődését, kérem, hívjon bizalommal!
SEGÍTÜNK, INTÉZZEN VELÜNK MINDENT EGY HELYEN!
Már megtalálta vagy még keresi „álmai otthonát”, de nem rendelkezik a megvásárlásához szükséges teljes vételárral?
Ne járjon bankról bankra!
Hitelszakértőnk, legyen szó akár piaci, akár államilag támogatott hitelről vagy vissza nem térítendő támogatásról, megtalálja az Önnek legmegfelelőbb egyedi konstrukciót.
Bankfüggetlen hitelügyintézőnk nagy szakmai tapasztalattal és a bankok ajánlatánál kedvezőbb lehetőségekkel segíti a Családi ház finanszírozását. Támogatja Önt a legkedvezőbb konstrukció kiválasztásában. Teljeskörűen összeállítja a hitelkérelmet, és a hitel folyósításáig végigkíséri az egész folyamatot.
CSOK-kal és Babaváró hitellel kapcsolatban is keressen minket bizalommal!
Kereső ügyfeleinknek a hitelközvetítői szolgáltatásaink ingyenesek.
Az otthon érték. Az ingatlan üzlet.
Helyiségek
| Helyiség | Alapterület | Padlóburkolat |
|---|---|---|
| Garázs | 17.80 m2 | |
| Háztartási helyiség | 15.50 m2 | |
| Tároló | 1.60 m2 | |
| Közlekedő | 4.20 m2 | |
| Szoba | 12.30 m2 | |
| WC | 1.00 m2 | |
| Fürdő | 3.20 m2 | |
| Közlekedő | 4.70 m2 | |
| Szoba | 20.90 m2 | |
| Szoba | 16.30 m2 | |
| Szoba | 5.50 m2 | |
| Étkező | 11.70 m2 | |
| Konyha | 4.50 m2 | |
| Kamra | 1.30 m2 | |
| Fürdő | 4.00 m2 | |
| Közlekedő | 7.40 m2 | |
| Szoba | 10.00 m2 | |
| Szoba | 10.50 m2 | |
| Szoba | 6.10 m2 | |
| Fürdő | 2.20 m2 | |
| Tároló | 1.00 m2 | |
| Tároló | 2.00 m2 |
Alaprajz
























Magyar 
