Nagyatád, Eladó Családi ház (#178035)
Nagyatádon családi ház eladó
Az Openhouse Kaposvár Ingatlaniroda kínálatában eladó a #178035 hivatkozási számú nagyatádi családi ház.
Költözz be új otthonodba Nagyatádon, a "parkok, szobrok és a fürdők" városában!
Eladó Családi Ház Nagyatád kedvelt városrészében
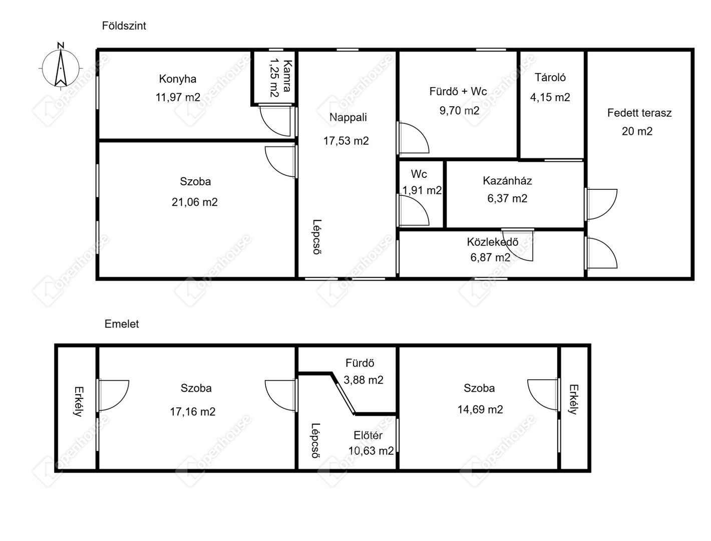
Új lakóit várja ez a 130 m2 hasznos alapterületű, összközműves, összkomfortos családi ház.
- földszinten: tágas szoba, nappali, fürdőszoba, wc, konyha, kamra, közlekedő, kazánház, tároló
- emeleten: 2 tágas szoba, 2 erkély, előtér, fürdőszoba helyiségekkel rendelkező, folyamatosan karbantartott családi ház.
2021-ben teljeskörű felújításon esett át, nyílászárói műanyagok, ízléses modern burkolatokkal rendelkezik, két fűtési rendszere van, gáz kazán, illetve vegyes tüzelésű kazán. Külső szigetelést, fedett teraszt kapott. Teljesen költségmentes állapotban, szerető családját várja, akik megtöltik élettel.
1890 m2-es, rendezett telken fekszik. Tárolásra alkalmas melléképülettel, szerelőaknával ellátott garázzsal, hogy az olajcsere se jelentsen gondot.
Az ingatlan kedvező elhelyezkedésű, csendes környéken fekszik. 5 perc séta távolságra óvoda. Szemben bolt, edzőterem. 500 méteren belül lovarda, állatudvar. 15 perces sétával elérhető a városközpont. Kiváló választás lehet gyermekes családok számára!
Elhelyezkedés és távolságok:
Belső-Somogy déli részén, a Balatontól mintegy 60 km-re délre, Kaposvártól 50 km-re délnyugatra valamint a Magyar-Horvát határtól 20 km-re északkeletre fekvő kisváros, mely a 68-as főútvonal mentén, a Rinya patak partján található. Nagyatád híres a parkokról, zöld övezetkről, gyógyvizes fürdőjéről, mely közkedvelt a turisták számára.
Az ingatlan remek lehetőséget kínál, teljesen költségmentes állapotban várja új tulajdonosait. Ne hagyja ki ezt a kivételes ajánlatot!
Ha felkeltette érdeklődését ez az eladó nagyatádi családi ház, vagy bármely más családi ház és bővebb információt szeretne, keressen bizalommal.
Hivatkozási szám: #178035
Az Openhouse Kaposvár Ingatlaniroda tagjaként várom Önt az országos hálózatunk teljes kínálatával.
A családi ház vásárláshoz hitelt igényelne? Ingyenes hitelközvetítéssel segít Önnek bankfüggetlen hitelszakértőnk.
További szolgáltatásainkkal (pl. értékbecslés, energetikai tanúsítvány, jogi háttér) is segítjük Önt a vásárlásban.
Az otthon érték. Az ingatlan üzlet.
Helyiségek
| Helyiség | Alapterület | Padlóburkolat |
|---|---|---|
| Konyha | 11.97 m2 | Járólap |
| Szoba | 21.06 m2 | Laminált padló |
| Nappali | 17.53 m2 | Laminált padló |
| Fürdő | 9.70 m2 | Járólap |
| WC | 1.91 m2 | Járólap |
| Közlekedő | 6.87 m2 | Járólap |
| Kazánház | 6.37 m2 | Járólap |
| Tároló | 4.15 m2 | Beton |
| Terasz | 20.00 m2 | Beton |
| Szoba | 17.16 m2 | Laminált padló |
| Előtér | 10.63 m2 | Járólap |
| Fürdő | 3.88 m2 | Járólap |
| Szoba | 14.69 m2 | Járólap |
| Kamra | 1.25 m2 | Járólap |
Alaprajz




































Magyar 
