Budaörs, Eladó Téglaépítésű lakás (#178009)
Az Openhouse Budapest City Home Ingatlaniroda kínálatában eladó a #178009 BO azonosítójú budaörsi Téglaépítésű lakás.
Kinek ajánlom
Ezt az ingatlant azoknak ajánlom, akik az otthont nem pusztán élettérnek, hanem harmóniát adó helynek tekintik.
Akik szeretik, ha reggel a napfény tölti meg a szobákat, ha este a városi fényekkel a horizonton pihennek meg, és fontos számukra a nyugalom, a panoráma és a minőség.
Ideális választás családoknak, pároknak, vagy akár elfoglalt szakembereknek, akik egy rendezett, zöldövezeti környezetben szeretnének élni — kompromisszumok nélkül.
Elhelyezkedés
Az ingatlan Budaörs egyik legkedveltebb, dombos részén található, zöldövezeti, mégis kiválóan megközelíthető környezetben.
A városközpont, valamint a legfontosabb bevásárlási lehetőségek – IKEA, Auchan, Tesco, Decathlon, Rossmann, gyógyszertárak – mind néhány perces autóútra elérhetők.
Több iskola, óvoda és sportlétesítmény is a közelben található, a tömegközlekedés pedig kényelmesen használható: helyi buszjáratok biztosítanak kapcsolatot a budaörsi központ és Budapest irányába.
Az M1–M7 autópályák csomópontja mindössze pár percre található.
A környék hangulata
A budaörsi dombvidék egyik legcsendesebb és legápoltabb része.
A környék atmoszférája nyugalmat és természetközelséget sugároz, miközben modern, igényes családi házak és új építésű társasházak veszik körül.
A környék ideális választás azoknak, akik szeretik a reggeli sétákat, a friss levegőt, a csendes esték békéjét, és akik számára fontos, hogy a panoráma valóban elvehetetlen maradjon.
Az ingatlanról
A lakás egy kétlakásos társasház felső szintjén helyezkedik el – így teljes intimitást és privát életteret biztosít.
A ház elhelyezkedéséből adódóan 180 fokos, körpanorámás kilátás tárul elénk, amely a nappaliból, a teraszról és a kertből is élvezhető.
A lakás különlegessége a 33 m²-es, üvegkorlattal ellátott panorámaterasz, ahol minden napszakban más arcát mutatja a kilátás.
A tágas, egybenyitott nappali–étkező–konyha térben hatalmas üvegfelületek engedik be a fényt, így a lakás egész nap napfényben úszik.
A három hálószoba közül a legnagyobb közvetlen kertkapcsolattal rendelkezik.
A házhoz privát úton lehet feljutni, ami biztonságot és nyugalmat ad, a környezet pedig rendezett és igényes.
Műszaki felszereltség
Építés éve: 2018
Fa nyílászárók, prémium hőszigeteléssel
Hőszivattyús hűtés–fűtés rendszer, alacsony fenntartási költségekkel
Beépített konyhabútor és beépített gardróbszekrények
Frissen tisztított, üres állapot, azonnal költözhető
Modern, igényes kivitelezés, időtálló anyaghasználat
Parkolás és megközelítés
A lakáshoz tartozik egy 30 m²-es, zárható, privát garázs, amely kizárólag az ingatlan tulajdonosának használatában van.
Ezen felül a telken belül további 2–3 felszíni beállóhely is rendelkezésre áll.
A ház privát úton közelíthető meg, ami exkluzivitást és biztonságot nyújt a lakók számára.
Ez az otthon egyszerre sugároz letisztultságot, harmóniát és eleganciát – egy hely, ahol minden részlet a kényelmet és a nyugalmat szolgálja.
Ha felkeltette az érdeklődését, keressen bizalommal, örömmel mutatom be személyesen is ezt a különleges ingatlant.
Ön is ingatlant keres? Válassza Irodánkat!
Amennyiben a #178009 BO azonosítójú, budaörsi eladó Téglaépítésű lakás vagy bármely, az Openhouse hálózat kínálatában található ingatlan felkeltette érdeklődését, kérem, hívjon bizalommal!
SEGÍTÜNK, INTÉZZEN VELÜNK MINDENT EGY HELYEN!
Már megtalálta vagy még keresi „álmai otthonát”, de nem rendelkezik a megvásárlásához szükséges teljes vételárral?
Ne járjon bankról bankra!
Hitelszakértőnk, legyen szó akár piaci, akár államilag támogatott hitelről vagy vissza nem térítendő támogatásról, megtalálja az Önnek legmegfelelőbb egyedi konstrukciót.
Bankfüggetlen hitelügyintézőnk nagy szakmai tapasztalattal és a bankok ajánlatánál kedvezőbb lehetőségekkel segíti a Téglaépítésű lakás finanszírozását. Támogatja Önt a legkedvezőbb konstrukció kiválasztásában. Teljeskörűen összeállítja a hitelkérelmet, és a hitel folyósításáig végigkíséri az egész folyamatot.
CSOK-kal és Babaváró hitellel kapcsolatban is keressen minket bizalommal!
Kereső ügyfeleinknek a hitelközvetítői szolgáltatásaink ingyenesek.
Az otthon érték. Az ingatlan üzlet.
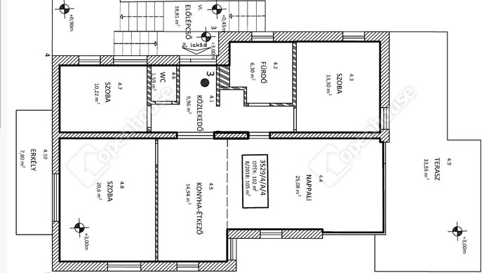
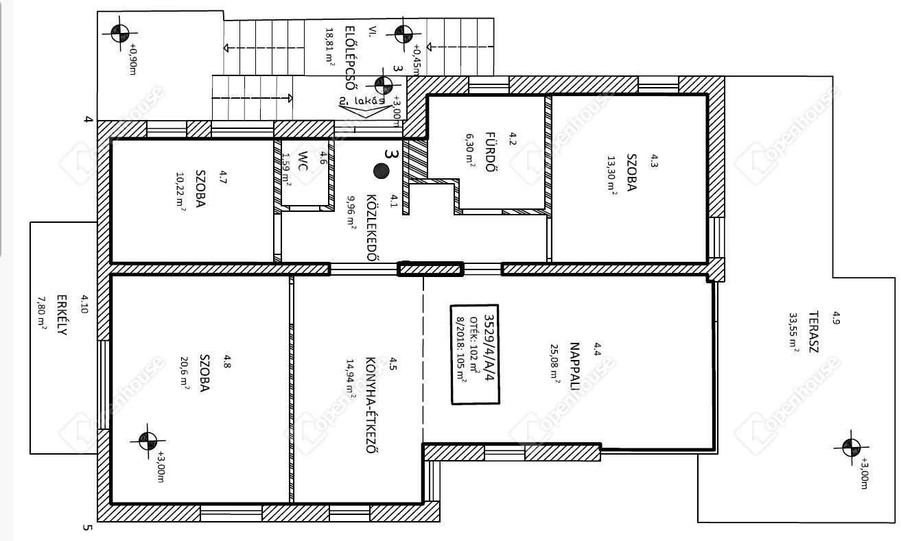
Helyiségek
| Helyiség | Alapterület | Padlóburkolat |
|---|---|---|
| Amerikai konyha | 40.00 m2 | |
| Szoba | 10.20 m2 | |
| Szoba | 20.60 m2 | |
| Szoba | 13.30 m2 | |
| Fürdő | 6.30 m2 | |
| WC | 1.60 m2 | |
| Közlekedő | 9.90 m2 | |
| Terasz | 33.50 m2 | |
| Terasz | 8.00 m2 | |
| Garázs | 33.00 m2 |
Alaprajz







































Magyar
Angol 
