Budapest II. Ker., Eladó Téglaépítésű lakás (#175955)
Az Openhouse Budapest City Home Ingatlaniroda kínálatában eladó a #175955 BO azonosítójú Budapest II. kerületi Téglaépítésű lakás.
Hiánycikk a piacon! Központi, mégis csendes helyen, nagy erkéllyel, városi panorámával. Kell ennél több? Üdv itthon!
RÖVID ÖSSZEFOGLALÓ
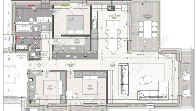
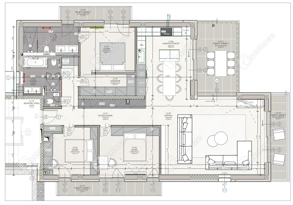
Budapest II. kerületének Rézmál részén eladó új építésű társasház első emeleti panorámás 141 m² -es nappali + 3 hálószobás két fürdőszobás négy erkélyes lakás opcionálisan megvásárolható garázsokkal, tárolóval.
LOKÁCIÓ
A II. kerület egyik legkedveltebb részén, a Rózsadombon, a csendes és elegáns Lévay utcában épül a legújabb prémium társasház. A környék kimagasló életminőséget kínál: zöldövezeti nyugalom, kiváló levegőminőség és a városi kényelem tökéletes egyensúlya jellemzi. Mindössze néhány percnyire találhatók bevásárlási lehetőségek, kávézók és éttermek, valamint presztízsértékű iskolák és óvodák. A Mammut Bevásárlóközpont, a Millenáris Park és a Mechwart liget könnyen elérhetők, a Margit körút közelsége pedig kiváló közlekedési kapcsolatokat biztosít.
LÉVAY 8
Az ötlakásos társasház építése 2026 harmadik negyedévében fejeződik be, kimagasló minőségű anyagokkal és modern műszaki megoldásokkal. A projekt célja, hogy exkluzív, tágas otthonokat kínáljon azok számára, akik a természet közelségét és a nagyvonalú belső tereket egyaránt értékelik.
LAKÁS
Az alaprajz tökéletes egy család számára: tágas, világos, jól kihasználható terekkel rendelkezik, biztosítja a közös élményeket és a privát elvonulást is, miközben a kültéri kapcsolatok erősítik az otthon élhetőségét.
✅ Teraszkapcsolat minden szobából – A közvetlen kültéri kapcsolat lehetőséget ad a szabad levegőn való pihenésre, akár egy reggeli kávézásra a hálószobából kilépve, akár közös családi étkezésekre a nappali előtti teraszon. Ez különösen előnyös gyerekekkel, hiszen biztonságos és könnyen hozzáférhető szabadtéri tér áll rendelkezésre.
✅ Tágas közösségi tér – A nappali, étkező és konyha összefonódó kialakítása lehetővé teszi, hogy a család tagjai együtt töltsék az időt anélkül, hogy a terek túlzsúfolttá válnának. A térben eltolt konyha előnye, hogy megőrzi a kapcsolatot a nappalival, de a főzés mégsem válik zavaróvá.
✅ Privát szférát biztosító hálószobák – A hálószobák szeparáltan helyezkednek el, így minden családtag számára biztosított a nyugodt pihenés. A szülői háló és a gyerekszobák egymáshoz közeli, de mégis megfelelően elkülönített elhelyezkedése ideális egy család számára.
✅ Kényelmes fürdőszobai elosztás – Több fürdőszoba áll rendelkezésre, ami csökkenti a reggeli készülődés miatti torlódásokat, és lehetővé teszi, hogy a család minden tagja kényelmesen használja azokat.
✅ Praktikus közlekedők és tárolók – A tárolóhelyek elhelyezése hatékony, segítve a rendezettség fenntartását. Az előszoba és egyéb tárolók megfelelő méretűek, így a kabátok, cipők, táskák is könnyen rendszerezhetők.
Műszaki megoldások és extrák
A lakás hőszivattyús hűtés-fűtés és hővisszanyerős szellőztető rendszerrel készül, amely energiatakarékos és környezetbarát megoldást biztosít. Loxone okos otthon rendszer kerül beépítésre, fokozva a kényelmet. A nagy üvegfelületek maximális természetes fényt engednek be, míg a prémium burkolatok és belsőépítészeti részletek a legmagasabb igényeket is kielégítik. A lakáshoz két garázs (30 000 000 Ft/2db) és egy tároló (12 000 000 Ft) is tartozik mely igény szerint megvásárolható.
Átadás
A projekt várható átadása 2026 harmadik negyedévében történik.
Ez az otthon ideális választás azoknak, akik egy tágas, modern és exkluzív lakásban szeretnének élni Budapest egyik legnívósabb városrészében.
---------------------------------------------
Díjmentes, bankfüggetlen hiteltanácsadással támogatjuk vevő ügyfeleinket a számukra legelőnyösebb finanszírozási döntések meghozatalában. Opcionálisan igénybe vehető kiegészítő szolgáltatásainkkal – mint ügyvédi közreműködés, energetikai tanúsítvány vagy villamos biztonsági felülvizsgálat – teljes körű szakmai támogatást nyújtunk az adásvétel folyamatának minden egyes lépésénél.
----------------------------------------------
A hirdetésben szereplő információk tájékoztató jellegűek. A tévedés és az árváltoztatás jogát fenntartjuk. Az esetleges elírásokért és technikai hibákért felelősséget nem vállalunk.
Ön is ingatlant keres? Válassza Irodánkat!
Amennyiben a #175955 BO azonosítójú, Budapest II. kerületi eladó Téglaépítésű lakás vagy bármely, az Openhouse hálózat kínálatában található ingatlan felkeltette érdeklődését, kérem, hívjon bizalommal!
SEGÍTÜNK, INTÉZZEN VELÜNK MINDENT EGY HELYEN!
Már megtalálta vagy még keresi „álmai otthonát”, de nem rendelkezik a megvásárlásához szükséges teljes vételárral?
Ne járjon bankról bankra!
Hitelszakértőnk, legyen szó akár piaci, akár államilag támogatott hitelről vagy vissza nem térítendő támogatásról, megtalálja az Önnek legmegfelelőbb egyedi konstrukciót.
Bankfüggetlen hitelügyintézőnk nagy szakmai tapasztalattal és a bankok ajánlatánál kedvezőbb lehetőségekkel segíti a Téglaépítésű lakás finanszírozását. Támogatja Önt a legkedvezőbb konstrukció kiválasztásában. Teljeskörűen összeállítja a hitelkérelmet, és a hitel folyósításáig végigkíséri az egész folyamatot.
CSOK-kal és Babaváró hitellel kapcsolatban is keressen minket bizalommal!
Kereső ügyfeleinknek a hitelközvetítői szolgáltatásaink ingyenesek.
Az otthon érték. Az ingatlan üzlet.
Helyiségek
| Helyiség | Alapterület | Padlóburkolat |
|---|---|---|
| Előszoba | 16.20 m2 | |
| WC | 1.50 m2 | |
| Fürdő | 6.20 m2 | |
| Fürdő | 7.00 m2 | |
| Szoba | 18.80 m2 | |
| Szoba | 10.80 m2 | |
| Szoba | 12.70 m2 | |
| Szoba | 11.10 m2 | |
| Nappali | 33.90 m2 | |
| Konyha | 19.20 m2 | |
| Erkély | 15.60 m2 | |
| Erkély | 8.00 m2 | |
| Erkély | 5.10 m2 | |
| Erkély | 7.40 m2 |
Alaprajz















Magyar
Angol 
