Vasad, Eladó Családi ház (#172824)
Eladásra kínálunk Vasadon saját kertel és A+ energetikával rendelkező családi házat
Az Openhouse Monor Ingatlaniroda kínálatában eladó a #172824 hivatkozási számú vasadi családi ház.
Eladásra kínálunk Vasadon saját kertel és A+ energetikával rendelkező családi házat!
Az ingatlan hasznos alapterülete 91,38 m2, terasz 21.44m2 ,(21,42m2) gépkocsitároló és kerti tároló 3.58m2. Csendes aszfaltozott utcában van a házikó, a környékben bevásárlási lehetőség, buszmegálló, bölcsőde 10 perc sétán belül. 3 hálószoba, egy hatalmas amerikakonyhás nappali, fürdőszoba + gépészeti helyiség és egy plusz zuhanyzó is megtalálható az lakásban. Saját kert 330 m2.
A lakás fűtéséről hőszivattyús rendszer gondoskodik padlófűtéssel + hűtő-fűtő klíma berendezés. Ezért A+ kategóriás energetika besorolást kaptak az alacsony fenntartás, és a rendkívüli jó hőszigetelés miatt. Az építtető több referencia munkája is megtekinthető kérésre!
M4-es és a 4-es autóutak mentén található Vasad. Tömegközlekedésről autóbusz gondoskodik.
Ne habozzon! Keressen minket és tekintse meg személyes.
Ha felkeltette érdeklődését ez az eladó vasadi családi ház, vagy bármely más családi ház és bővebb információt szeretne, keressen bizalommal.
Hivatkozási szám: #172824
Az Openhouse Monor Ingatlaniroda tagjaként várom Önt az országos hálózatunk teljes kínálatával.
A családi ház vásárláshoz hitelt igényelne? Ingyenes hitelközvetítéssel segít Önnek bankfüggetlen hitelszakértőnk.
További szolgáltatásainkkal (pl. értékbecslés, energetikai tanúsítvány, jogi háttér) is segítjük Önt a vásárlásban.
Az otthon érték. Az ingatlan üzlet.
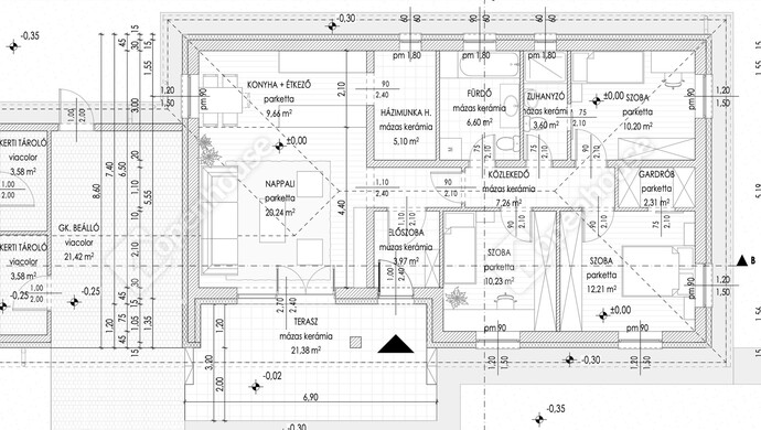
Helyiségek
| Helyiség | Alapterület | Padlóburkolat |
|---|---|---|
| Szoba | 10.20 m2 | Laminált padló |
| Szoba | 10.23 m2 | Laminált padló |
| Előszoba | 3.97 m2 | Járólap |
| Zuhanyzó | 3.60 m2 | Járólap |
| Fürdő | 6.60 m2 | Járólap |
| Közlekedő | 7.26 m2 | Járólap |
| Szoba | 12.21 m2 | Laminált padló |
| Háztartási helyiség | 5.10 m2 | Járólap |
| Gardrób | 2.31 m2 | Járólap |
| Nappali | 20.24 m2 | Laminált padló |
| Terasz | 21.44 m2 | Járólap |
| Konyha | 9.66 m2 | Járólap |
| Gépkocsibeálló | 21.42 m2 | Beton |
Alaprajz





Magyar 
