Székesfehérvár, Eladó Társasházi lakás (#179947)
Eladó új építésű társasházi lakás, Székesfehérvár Belváros
Az Openhouse Székesfehérvár Ingatlaniroda kínálatában eladó a #179947 hivatkozási számú székesfehérvári társasházi lakás.
A beruházás Székesfehérvár belvárosának szívében, az Alba Pláza közvetlen szomszédságában épül, kiváló közlekedési és szolgáltatási adottságokkal. Elhelyezkedése ideális mind lakófunkció, mind üzleti hasznosítás szempontjából.
A földszint + négy szintes, magastetős épület impozáns, mégis visszafogott megjelenésével harmonikusan illeszkedik a belvárosi környezetbe. Időtálló összhatását a gondosan megválasztott, minőségi anyaghasználat biztosítja. A földszinten 5 üzlethelyiség, valamint 29 férőhelyes fedett garázs kap helyet. Az emeleteken kialakított lakások mindegyikéhez erkély vagy terasz tartozik. Az épület két tömbre tagolódik, amelyek között zöld belső kert jön létre, mindkét tömb korszerű lifttel ellátott.
A kulcsrakész otthonok felsőkategóriás műszaki tartalommal, prémium anyagok felhasználásával készülnek, hosszú távon is értékálló, kényelmes életteret kínálva. Projekt befejezése 2027. június
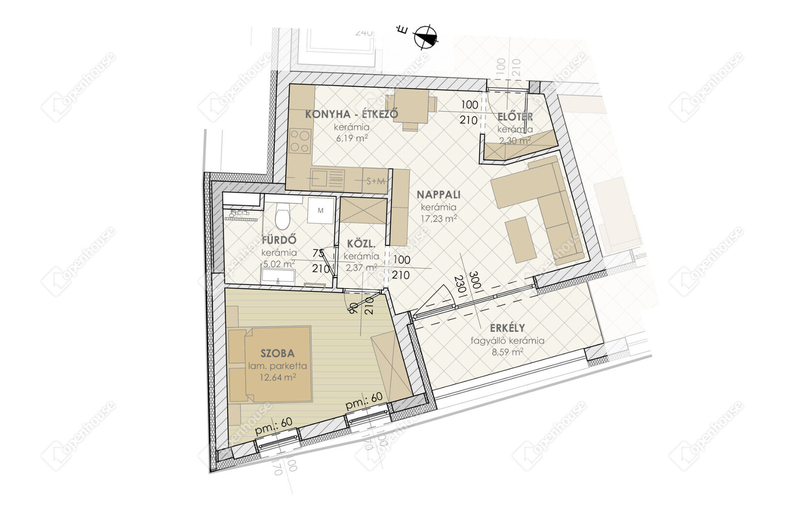
Hirdetésben szereplő A24-es lakás nettó 45.75 m2, hozzá tartozó erkély 8.59 m2. Nappali-konyha-étkező, egy hálószoba, fürdőszoba, WC elosztású.
- házközponti fűtés, padlófűtés, mennyezet hűtés, egyedi mérővel
- klíma előkészítés
- törölközőszárító radiátor
- minőségi anyagok felhasználása
- felsőkategóriás belsőépítészeti kialakítás
- nyílászárók 3 rétegű üveggel, motoros redőnyök
- választható hideg- és melegburkolat
- CPL fóliás beltéri ajtó választható színben
Ha felkeltette érdeklődését ez az eladó székesfehérvári társasházi lakás, vagy bármely más társasházi lakás és bővebb információt szeretne, keressen bizalommal.
Hivatkozási szám: #179947
Az Openhouse Székesfehérvár Ingatlaniroda tagjaként várom Önt az országos hálózatunk teljes kínálatával.
A társasházi lakás vásárláshoz hitelt igényelne? Ingyenes hitelközvetítéssel segít Önnek bankfüggetlen hitelszakértőnk.
További szolgáltatásainkkal (pl. értékbecslés, energetikai tanúsítvány, jogi háttér) is segítjük Önt a vásárlásban.
Az otthon érték. Az ingatlan üzlet.
Helyiségek
| Helyiség | Alapterület | Padlóburkolat |
|---|---|---|
| Előszoba | 2.00 m2 | Járólap |
| Fürdő | 5.02 m2 | Járólap |
| Szoba | 12.64 m2 | Laminált padló |
| Közlekedő | 17.23 m2 | Járólap |
| Amerikai konyha | 6.19 m2 | Járólap |
| Közlekedő | 2.37 m2 | Járólap |
| Erkély | 8.59 m2 | Járólap |
Alaprajz









Magyar 
