Pátka, Eladó Családi ház (#179644)
Eladó Családi Ház Pátkán
Az Openhouse Székesfehérvár Ingatlaniroda kínálatában eladó a #179644 hivatkozási számú pátkai családi ház.
Székesfehérvári ingatlaniroda eladásra kínál modern stílusban épülő családi házakat Pátkán.
Lokáció: Pátka egyik közkedvelt, kiváló adottságokkal rendelkező részén található az ingatlan, egy kifejezetten csendes, átmenő forgalomtól mentes zsákutcában. A környéket rendezett, igényes megjelenésű lakóházak és nyugodt lakókörnyezet jellemzi, a ház megközelítése végig aszfaltozott úton biztosított. A településen belül minden fontos intézmény és szolgáltatás könnyen elérhető, miközben Székesfehérvár autóval és tömegközlekedéssel egyaránt gyorsan és kényelmesen megközelíthető.
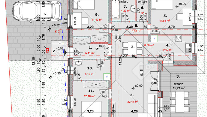
Az ingatlanról: Az ingatlan minőségi alapanyagok felhasználásával és a modern technológia alkalmazásával készül, a lehető legmagasabb színvonalon, modern megjelenéssel. A nettó alapterület 97 m², ami magában foglal egy hatalmas amerikai konyhás nappalit, 3 hálószobát, egy fürdőszobát WC-vel, egy külön WC-t és egy nagyméretű háztartási helyiséget. Továbbá az ingatlanhoz tartozik 2 db térkövezett kocsibeálló, egy nagyméretű épített terasz és egy saját használatú, 525 m²-es kertrész is.
Műszaki paraméterek:
-
97 m²-es családi ház + 20 m² épített terasz kerámia burkolattal,
-
30-as téglafal, 10-es válaszfalak + 15 cm homlokzati hőszigetelés,
-
Terrán tetőcserép, antracit színben,
-
525 m²-es telekrész,
-
8 kW-os hőszivattyú + padlófűtés,
-
H-tarifás mérőóra,
-
1 x 32 amper,
-
háromrétegű műanyag nyílászárók,
-
rejtett redőnytok + redőny,
-
szúnyogháló,
-
2 db térkövezett kocsibeálló,
-
kerítés az utcafronton és az oldalhatárokon,
-
választható beltéri ajtók,
-
választható csaptelepek és szaniterek,
-
választható burkolatok.
A kivitelező cégről: Az ingatlan építését egy több éve megbízhatóan működő, székesfehérvári bejegyzésű építőipari vállalkozás koordinálja. Több, már elkészült, Székesfehérváron is megtekinthető referenciaingatlan áll rendelkezésre, hogy Ön is meggyőződjön a megfelelő minőségű kivitelezésről.
Fizetési konstrukció: Rugalmas fizetési ütem biztosítja a gördülékeny együttműködést, ami mindig a vásárló igényeihez megfelelően van igazítva.
Ha felkeltette érdeklődését ez az eladó pátkai családi ház, vagy bármely más családi ház és bővebb információt szeretne, keressen bizalommal.
Hivatkozási szám: #179644
Az Openhouse Székesfehérvár Ingatlaniroda tagjaként várom Önt az országos hálózatunk teljes kínálatával.
A családi ház vásárláshoz hitelt igényelne? Ingyenes hitelközvetítéssel segít Önnek bankfüggetlen hitelszakértőnk.
További szolgáltatásainkkal (pl. értékbecslés, energetikai tanúsítvány, jogi háttér) is segítjük Önt a vásárlásban.
Az otthon érték. Az ingatlan üzlet.
Helyiségek
| Helyiség | Alapterület | Padlóburkolat |
|---|---|---|
| Előtér | 5.41 m2 | Járólap |
| WC | 1.95 m2 | Járólap |
| Közlekedő | 3.63 m2 | Járólap |
| Fürdő | 4.29 m2 | Járólap |
| Szoba | 11.65 m2 | Laminált padló |
| Szoba | 11.49 m2 | Laminált padló |
| Szoba | 12.16 m2 | Laminált padló |
| Háztartási helyiség | 6.12 m2 | Járólap |
| Nappali | 22.47 m2 | Járólap |
| Amerikai konyha | 9.02 m2 | Járólap |
| Étkező | 8.58 m2 | Járólap |
Alaprajz







Magyar
Angol 
