Debrecen, Eladó Családi ház (#181063)
Eladó egy új építésű családi ház Debrecen Júliatelep frekventált részén.
Az Openhouse Debrecen Hadházi úti Ingatlaniroda kínálatában eladó a #181063 hivatkozási számú debreceni családi ház.
Eladó egy új építésű családi ház Debrecen Júliatelep frekventált részén.
Jól átgondolt elosztással, otthonosra tervezett, gyermekes családnak is ideális önálló családi ház építése elindult.
- A ház családi házas övezetében, új építésű házak között található.
-
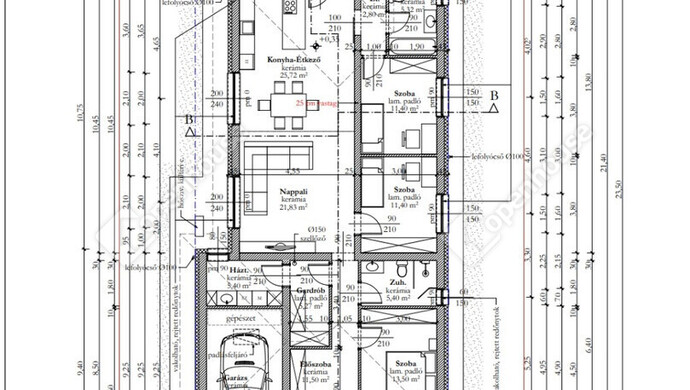
A ház nettó hasznos lakó területe 130 nm.
-
A 634 m²-es saját telekrész rendezett, térkövezett kocsibeállóval és kialakított közlekedőfelületekkel várja új tulajdonosát.
-
A kertkapcsolat ideális lehetőséget nyújt pihenésre, kertészkedésre vagy családi programok szervezésére.
-
A ház modern, esztétikus külső megjelenéssel és korszerű műszaki tartalommal épül.
-
A bejáraton belépve egy tágas előtér fogadja a lakókat.
-
A földszintes kialakítás kényelmes közlekedést biztosít a ház minden helyisége között.
-
A központi térben egy világos, amerikai konyhás nappali kap helyet, amely a családi élet központja lehet.
-
A négy külön nyíló szoba ideális háló-, gyerek- vagy dolgozószobaként is funkcionálhat.
-
A fürdőszobák modern és optimális kialakításúak, kádas és zuhanyzós megoldással.
-
A garázs közvetlenül kapcsolódik a házhoz, így kényelmes és biztonságos megoldást nyújt.
-
A fűtést és hűtést energiatakarékos hőszivattyús fan-coil rendszer biztosítja, alacsony rezsivel.
-
A hat légkamrás, háromrétegű üvegezésű műanyag nyílászárók kiváló hő- és hangszigetelést nyújtanak.
-
A szobák laminált parkettával, a többi helyiség minőségi járólappal kerül átadásra.
-
A belső terek burkolatai, beltéri ajtói és szaniterei a vevő igényei szerint választhatók.
-
Az ingatlan 2026 végén kerül átadásra, modern trendeket követő kivitelezéssel.
-
A házra CSOK és 3%-os hitel is igénybe vehető, így kiváló lehetőség pároknak és gyermekes családoknak.
-
A vételár tartalmazza a térkövezést és a kerítés építését is, így a ház teljesen kész állapotban kerül átadásra.
Ha felkeltette érdeklődését ez az eladó debreceni családi ház, vagy bármely más családi ház és bővebb információt szeretne, keressen bizalommal.
Hivatkozási szám: #181063
Az Openhouse Debrecen Hadházi úti Ingatlaniroda tagjaként várom Önt az országos hálózatunk teljes kínálatával.
A családi ház vásárláshoz hitelt igényelne? Ingyenes hitelközvetítéssel segít Önnek bankfüggetlen hitelszakértőnk.
További szolgáltatásainkkal (pl. értékbecslés, energetikai tanúsítvány, jogi háttér) is segítjük Önt a vásárlásban.
Az otthon érték. Az ingatlan üzlet.
Helyiségek
| Helyiség | Alapterület | Padlóburkolat |
|---|---|---|
| Szoba | 13.00 m2 | Laminált padló |
| Szoba | 11.00 m2 | Laminált padló |
| Szoba | 12.00 m2 | Laminált padló |
| Szoba | 11.00 m2 | Laminált padló |
| Háztartási helyiség | 6.00 m2 | Járólap |
| Fürdő | 5.00 m2 | Járólap |
| Nappali | 22.00 m2 | Laminált padló |
| Amerikai konyha | 26.00 m2 | Járólap |
| Fürdő | 6.00 m2 | Járólap |
| Gardrób | 5.00 m2 | Laminált padló |
| Kazánház | 2.00 m2 | Járólap |
| Előtér | 11.00 m2 | Járólap |
| Garázs | 20.00 m2 | Kőburkolat |
| Terasz | 16.00 m2 | Járólap |
Alaprajz










Magyar 
