Debrecen, Eladó Ikerház (#180775)
Eladó egy új építésű ikerház Debrecen Juliatelep frekventált részén.
Az Openhouse Debrecen Hadházi úti Ingatlaniroda kínálatában eladó a #180775 hivatkozási számú debreceni ikerház.
Eladó egy új építésű ikerház Debrecen Júliatelep frekventált részén.
-
Az ikerház családi házas övezetében, új építésű házak között található.
-
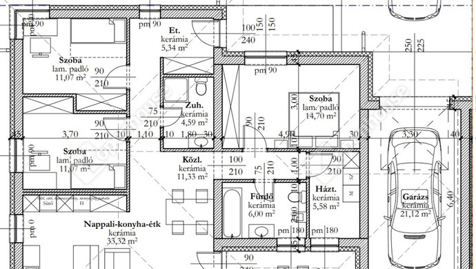
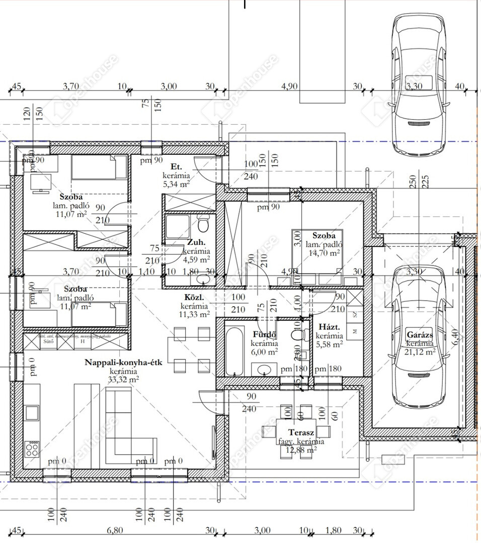
A z ikerház 105 nm nettó lakrésszel rendelkezik.
-
Az 540 m²-es saját telekrész rendezett, térkövezett kocsibeállóval és kialakított közlekedőfelületekkel várja új tulajdonosát.
-
A telek teljesen elszeparált, így az ikerház mindkét egysége önálló, intim használatot biztosít. A házak garázzsal kapcsolódnak egymással.
-
A kertkapcsolat ideális lehetőséget nyújt pihenésre, kertészkedésre vagy családi programok szervezésére.
-
A ház modern, esztétikus külső megjelenéssel és korszerű műszaki tartalommal épül.
-
A bejáraton belépve egy tágas előtér fogadja a lakókat.
-
A földszintes kialakítás kényelmes közlekedést biztosít a ház minden helyisége között.
-
A központi térben egy világos, amerikai konyhás nappali kap helyet, amely a családi élet központja lehet.
-
A három külön nyíló szoba ideális háló-, gyerek- vagy dolgozószobaként is funkcionálhat.
-
A fürdőszoba modern kialakítású, a WC külön helyiségben található.
-
A garázs közvetlenül kapcsolódik a házhoz, így kényelmes és biztonságos megoldást nyújt.
-
A fűtést és hűtést energiatakarékos hőszivattyús fan-coil rendszer biztosítja, alacsony rezsivel.
-
A hat légkamrás, háromrétegű üvegezésű műanyag nyílászárók kiváló hő- és hangszigetelést nyújtanak.
-
A szobák laminált parkettával, a többi helyiség minőségi járólappal kerül átadásra.
-
A belső terek burkolatai, beltéri ajtói és szaniterei a vevő igényei szerint választhatók.
-
Az ingatlan 2026 végén kerül átadásra, modern trendeket követő kivitelezéssel.
-
A házra CSOK és 3%-os hitel is igénybe vehető, így kiváló lehetőség pároknak és gyermekes családoknak.
-
A vételár tartalmazza a térkövezést és a kerítés építését is, így a ház teljesen kész állapotban kerül átadásra.
Ha felkeltette érdeklődését ez az eladó debreceni ikerház, vagy bármely más ikerház és bővebb információt szeretne, keressen bizalommal.
Hivatkozási szám: #180775
Az Openhouse Debrecen Hadházi úti Ingatlaniroda tagjaként várom Önt az országos hálózatunk teljes kínálatával.
A ikerház vásárláshoz hitelt igényelne? Ingyenes hitelközvetítéssel segít Önnek bankfüggetlen hitelszakértőnk.
További szolgáltatásainkkal (pl. értékbecslés, energetikai tanúsítvány, jogi háttér) is segítjük Önt a vásárlásban.
Az otthon érték. Az ingatlan üzlet.
Helyiségek
| Helyiség | Alapterület | Padlóburkolat |
|---|---|---|
| Szoba | 11.00 m2 | Laminált padló |
| Szoba | 11.00 m2 | Laminált padló |
| Amerikai konyha | 34.00 m2 | Járólap |
| Szoba | 14.00 m2 | Laminált padló |
| Háztartási helyiség | 6.00 m2 | Járólap |
| Fürdő | 6.00 m2 | Járólap |
| Zuhanyzó | 5.00 m2 | Járólap |
| Közlekedő | 13.00 m2 | Járólap |
| Szélfogó | 5.00 m2 | Járólap |
Alaprajz









Magyar 
